リブリ・アージュドール 203号室(2階/1LDK)の賃貸物件(賃貸マンション)
東京都足立区にあるリブリ・アージュドール 203号室は宅配ボックス、クローゼット、エアコン、インターネット可、オンライン相談可などが特徴です。最寄り駅の日暮里・舎人ライナー江北駅から徒歩4分です。リブリ・アージュドール 203号室の詳細はハウスコム 北千住店までお気軽にお問い合わせください!
情報更新日:
次回更新予定日:
※次回更新予定日について:お店側では順次空室確認を行っていますが、次回更新予定日までに空室確認が行えない場合には、この物件情報は自動的に削除されます。
リブリ・アージュドール 203号室の賃貸物件部屋概要
家賃 |
10.6万円
初期費用を |
|---|---|
共益費 |
4,000円
入居可能時期 |
敷金/礼金 |
- / 1.25ヶ月 |
保証金/ |
- / - |
最寄駅 |
|
所在地 |
東京都足立区江北 |
部屋番号 |
203号室 |
間取り |
1LDK(洋5.6・LDK11) |
専有面積 |
40.99㎡ |
築年数 |
2013年5月(築13年) |
階数 |
2階部分(地上3階建) |
方位・位置 |
南 / その他 |
物件種別 |
賃貸マンション |
構造 |
鉄骨造 |
駐車場 |
空無し |
小学校学区 |
江北小学校 |
中学校学区 |
江北桜中学校 |
他の空き部屋 |
ー |
- 学区データについて
- ※学区データは必ずしも正確とは限りません。詳細に関しては最寄店舗または各自治体の教育委員会に必ずご確認ください。
リブリ・アージュドール 203号室の特徴
-
一人暮らしに人気の設備

-
カップルに人気の設備

-
家族に人気の設備

-
夫婦に人気の設備

-
三世代で人気の設備

-
外で子どもと遊びたい

-
雨の日でも洗濯したい

-
洋室で暮らしたい

-
料理が好き

-
推し活グッズを飾りたい

-
ガーデニングが好き

契約条件
この物件は、2人入居もご契約できます。 また、ご契約時に保証人は不要です。 敷金が無料なため、初期費用が比較的安くなる傾向にあります。
セキュリティ
この物件の建物には、オートロックや宅配ボックスが設置されており、来客時には居室内のテレビモニターにて訪問者の顔を確認することができます。
室内設備
システムキッチンには、ガスコンロが備え付けられています。 お風呂とトイレは別です。お風呂には、追い焚き機能が備わっています。 トイレは、温水洗浄便座機能付きになります。 女性に嬉しい設備の独立した洗面化粧台があります。 洗濯に便利な設備として、室内洗濯機置場があります。浴室乾燥機も設置されているので、梅雨時の生乾き臭も比較的防ぐことができます。
居室状況
お部屋の床は、フローリングとなっており、エアコンが設置されています。 照明器具が備え付けられており、入居後すぐ生活が始められます。 収納スペースとして、基本的な居室にクローゼットを設置、玄関にはシューズボックスがあります。
建物設備共用部分
居室外の専有スペースとして、洗濯物を干すなどの用途として利用できるバルコニーがあります。 建物の共用スペースに、急な外出や不在がちのご家庭の荷物受け取りに便利な宅配ボックスが設置されています。 駐輪場が利用できます。
周辺施設
この物件の学区は、江北小学校区・江北桜中学校区です。
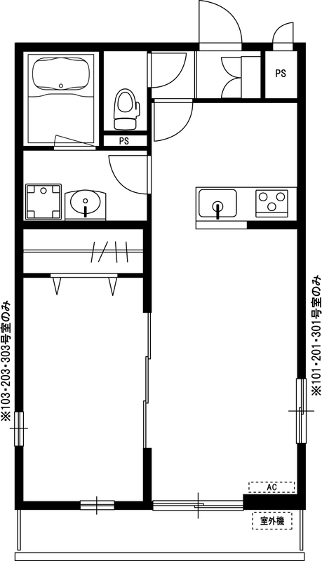
リブリ・アージュドール 203号室の間取り
間取り:1LDK
間取詳細:1LDK(洋5.6・LDK11)
専有面積:40.99㎡
方位:南
部屋位置:その他
リブリ・アージュドール 203号室の設備
キッチン
システムキッチン
カウンターキッチン
ガスコンロ
バス・トイレ
バス・トイレ別
追い焚き
浴室乾燥機
温水洗浄便座
独立洗面台
玄関
TVモニタ付インターホン
オートロック
宅配ボックス
収納
クローゼット
シューズボックス
バルコニー
バルコニー
ルーフバルコニー
室内設備
エアコン
フローリング
室内洗濯機置場
照明器具付
位置・立地
2階以上
南向き
インフラ
インターネット可
都市ガス
建物設備
駐輪場
入居条件
2人入居可
オンライン相談可
オンライン内見可
保証人不要
ライフステージ
一人暮らしに人気の設備
カップルに人気の設備
家族に人気の設備
夫婦に人気の設備
三世代で人気の設備
こだわり
外で子どもと遊びたい
雨の日でも洗濯したい
洋室で暮らしたい
趣味
料理が好き
推し活グッズを飾りたい
ガーデニングが好き
リブリ・アージュドール 203号室の賃貸契約情報
毎月支払う |
家賃10.6万円/月共益費4,000円/月 |
|---|---|
初期費用 |
敷金-礼金1.25ヶ月 (13.25万円)保証金-敷引き償却金- |
更新料 |
- |
鍵交換費用 |
- |
室内清掃費用 |
- |
リブリクラブ月額会費 |
2,200円 |
リブリクラブ入会費 |
7,700円 |
鍵交換代 |
24,200円 |
駐車場料金 |
空無し |
損保・ |
借家賠付きの火災保険にご加入いただきます。 |
保証会社 |
加入要 保証会社利用料:基本料:月額支払合計の100% 、月額料:月額支払合計の1.1%、口振手数料:330円/月 |
契約期間 |
定期借家 2年 |
入居可能日 |
2026年01月下旬 |
フリーレント期間 |
- |
取引形態 |
一般媒介 |
備考 |
短期解約違約金有 |
リブリ・アージュドール 203号室の建物情報
建物名称 |
リブリ・アージュドール |
|---|---|
最寄駅 |
|
所在地 |
東京都足立区江北 |
階層 |
2階部分(地上3階建) |
構造 |
鉄骨造 |
築年数 |
2013年5月(築13年) |
駐車場 |
空無し |
小学校学区 |
江北小学校 |
中学校学区 |
江北桜中学校 |
- 学区データについて
- ※学区データは必ずしも正確とは限りません。詳細に関しては最寄店舗または各自治体の教育委員会に必ずご確認ください。
無料この物件に問い合わせ
- リブリ・アージュドール 203号室

-
10.6万円
(共益費
4,000円)
- 敷
- -
- 礼
- 1.25ヶ月
- 保
- -
- 償
- -
リブリ・アージュドール 203号室の物件のお問い合わせ先・取り扱い店舗
ハウスコム 北千住店
- アクセス
-
東京メトロ 日比谷線「北千住駅」東口徒歩1分
- 住所
- 〒120-0026 東京都足立区千住旭町3−11 NSビル 1階
- 営業時間
- 10:00~18:00
- 定休日
- なし
- 営業エリア
- 足立区、荒川区、台東区、墨田区、葛飾区、八潮市、草加市、三郷市
- 取引態様
- 賃貸仲介業




















