Alivis野田阪神 ***号室(4階/3LDK)の賃貸物件(賃貸マンション)
大阪府大阪市福島区にあるAlivis野田阪神 ***号室は追い焚き、バルコニー、室内洗濯機置場、CATV、ペット可・相談などが特徴です。最寄り駅のJR東西線海老江駅から徒歩6分です。Alivis野田阪神 ***号室の詳細はハウスコム FC新大阪北店までお気軽にお問い合わせください!
情報更新日:
次回更新予定日:
※次回更新予定日について:お店側では順次空室確認を行っていますが、次回更新予定日までに空室確認が行えない場合には、この物件情報は自動的に削除されます。
Alivis野田阪神 ***号室の賃貸物件部屋概要
家賃 |
22.3万円
初期費用を |
|---|---|
共益費 |
10,000円
入居可能時期 |
敷金/礼金 |
1ヶ月 / 1ヶ月 |
保証金/ |
- / - |
最寄駅 |
|
所在地 |
大阪府大阪市福島区海老江 |
部屋番号 |
***号室 |
間取り |
3LDK(LDK14.8・洋5.3・洋5.3・洋3.8) |
専有面積 |
62.33㎡ |
築年数 |
新築 |
階数 |
4階部分(地上11階建) |
方位・位置 |
北西 / その他 |
物件種別 |
賃貸マンション |
構造 |
RC |
駐車場 |
近隣 33,000円 |
小学校学区 |
海老江東小学校 |
中学校学区 |
八阪中学校 |
他の空き部屋 |
1001号室 ***号室 1002号室 ***号室 1003号室 ***号室 ***号室 1005号室 1101号室 ***号室 1102号室 ***号室 1103号室 ***号室 1105号室 ***号室 ***号室 201号室 ***号室 202号室 ***号室 203号室 205号室 ***号室 301号室 ***号室 ***号室 302号室 ***号室 303号室 ***号室 305号室 401号室 ***号室 ***号室 402号室 403号室 ***号室 405号室 ***号室 501号室 502号室 ***号室 ***号室 503号室 ***号室 505号室 ***号室 602号室 ***号室 603号室 ***号室 605号室 ***号室 702号室 ***号室 ***号室 703号室 705号室 ***号室 ***号室 801号室 ***号室 802号室 ***号室 803号室 805号室 ***号室 901号室 ***号室 902号室 ***号室 903号室 ***号室 ***号室 905号室 |
- 学区データについて
- ※学区データは必ずしも正確とは限りません。詳細に関しては最寄店舗または各自治体の教育委員会に必ずご確認ください。
Alivis野田阪神 ***号室の特徴
-
一人暮らしに人気の設備

-
カップルに人気の設備

-
家族に人気の設備

-
夫婦に人気の設備

-
三世代で人気の設備

-
セキュリティ対策重視

-
収納重視

-
タイパ重視

-
雨の日でも洗濯したい

-
洋室で暮らしたい

-
持ち物をスッキリ隠す収納部屋

-
自炊が多めなあなたに

契約条件
この物件は、2人入居もご契約できます。 ペットの飼育もご相談ください。 お支払いは、初期費用がクレジットカードにて決済できます。
セキュリティ
この物件の建物には、オートロックや防犯カメラや宅配ボックスが設置されており、来客時には居室内のテレビモニターにて訪問者の顔を確認することができます。
室内設備
システムキッチンには、ガスコンロが設置されており、キッチン設備として食洗機が備え付けられています。 お風呂とトイレは別です。お風呂には、追い焚き機能が備わっています。 トイレは、温水洗浄便座機能付きになります。 女性に嬉しい設備のシャワーの付いている洗面化粧台があります。 洗濯に便利な設備として、室内洗濯機置場があります。浴室乾燥機も設置されているので、梅雨時の生乾き臭も比較的防ぐことができます。
居室状況
お部屋の床は、全居室フローリングとなっており、エアコンが設置されています。 収納スペースとして、基本的な居室にクローゼットを設置、玄関にはシューズボックスがあります。
建物設備共用部分
居室外の専有スペースとして、洗濯物を干すなどの用途として利用できるバルコニーがあります。 建物の共用スペースに、日々の出入に便利なエレベーターや、いざという時の防犯カメラや、急な外出や不在がちのご家庭の荷物受け取りに便利な宅配ボックスや、居室内を常に清潔に保てる24時間利用可能なゴミ捨て置き場が設置されています。 駐輪場、バイク置き場が利用できます。
周辺施設
この物件の学区は、海老江東小学校区・八阪中学校区です。近くには、徒歩28分(2185m)でドラッグストアがあります。
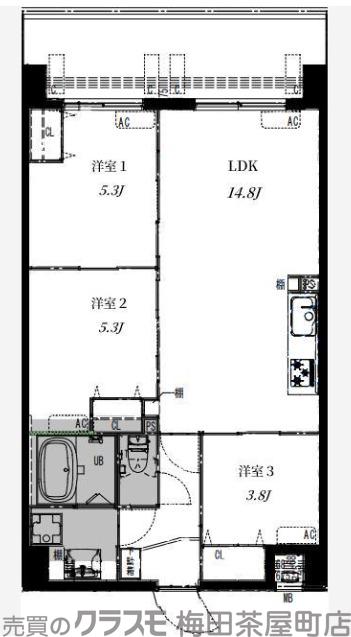
Alivis野田阪神 ***号室の間取り
間取り:3LDK
間取詳細:3LDK(LDK14.8・洋5.3・洋5.3・洋3.8)
専有面積:62.33㎡
方位:北西
部屋位置:その他
Alivis野田阪神 ***号室の設備
キッチン
システムキッチン
ガスコンロ
食洗機
バス・トイレ
バス・トイレ別
追い焚き
浴室乾燥機
温水洗浄便座
独立洗面台
シャワー付洗面化粧台
玄関
TVモニタ付インターホン
オートロック
宅配ボックス
収納
クローゼット
シューズボックス
全居室収納
バルコニー
バルコニー
室内設備
エアコン
フローリング
全居室フローリング
室内洗濯機置場
位置・立地
2階以上
インフラ
インターネット可
CATV
都市ガス
建物設備
エレベーター
防犯カメラ
24時間ゴミ出しOK
24時間換気システム
駐輪場
バイク置き場
入居条件
ペット可・相談
2人入居可
オンライン相談可
オンライン内見可
即入居可
ライフステージ
一人暮らしに人気の設備
カップルに人気の設備
家族に人気の設備
夫婦に人気の設備
三世代で人気の設備
こだわり
セキュリティ対策重視
収納重視
タイパ重視
雨の日でも洗濯したい
洋室で暮らしたい
持ち物をスッキリ隠す収納部屋
自炊が多めなあなたに
お得な条件
初期費用カード決済可
Alivis野田阪神 ***号室の賃貸契約情報
毎月支払う |
家賃22.3万円/月共益費10,000円/月 |
|---|---|
初期費用 |
敷金1ヶ月 (22.3万円)礼金1ヶ月 (22.3万円)保証金-敷引き償却金- |
更新料 |
1ヶ月 |
鍵交換費用 |
- |
室内清掃費用 |
- |
エアコン清掃費 |
16,500円 |
駐車場料金 |
近隣 33,000円 |
損保・ |
借家賠付きの火災保険にご加入いただきます。 |
保証会社 |
加入要 保証会社:オリコフォレントインシュア 保証会社利用料:初回保証料30%・更新料1.2万円/年・支払手数料330円 |
契約期間 |
2年 |
入居可能日 |
即入居可 |
フリーレント期間 |
- |
取引形態 |
仲介 |
備考 |
当社HPなら全室室内写真付です。ネットには掲載できない非公開のマル秘物件も多数取り揃えてます。気に入ったお部屋が有れば、どこの不動産屋さんよりも、初期費用お安く交渉します。当社では全力でお客様のお部屋探しをサポート致します。全物件家具付対応プランもご用意しておりますのでお気軽にご相談下さい。ネットで気になった物件全て、ご予約やお問合せをされていなくても、当日すぐにご案内可能です。 |
Alivis野田阪神 ***号室の建物情報
建物名称 |
Alivis野田阪神 |
|---|---|
最寄駅 |
|
所在地 |
大阪府大阪市福島区海老江 |
階層 |
4階部分(地上11階建) |
構造 |
RC |
築年数 |
新築 |
駐車場 |
近隣 33,000円 |
小学校学区 |
海老江東小学校 |
中学校学区 |
八阪中学校 |
- 学区データについて
- ※学区データは必ずしも正確とは限りません。詳細に関しては最寄店舗または各自治体の教育委員会に必ずご確認ください。
無料この物件に問い合わせ
- Alivis野田阪神 ***号室

-
22.3万円
(共益費
10,000円)
- 敷
- 1ヶ月
- 礼
- 1ヶ月
- 保
- -
- 償
- -
Alivis野田阪神 ***号室の物件のお問い合わせ先・取り扱い店舗
ハウスコム FC新大阪北店
- アクセス
-
大阪メトロ 御堂筋線「東三国駅」徒歩1分
大阪メトロ 御堂筋線「新大阪駅」徒歩15分
東海道本線(JR西日本)「東淀川駅」徒歩10分
- 住所
- 〒532-0002 大阪府大阪市淀川区東三国5丁目2-20 岸本ビル1階
- 営業時間
- 10:00~19:00
- 定休日
- なし(年末年始)
- 営業エリア
- 大阪府内(北区・淀川区・吹田市・豊中市・箕面市・茨木市・高槻市) ・尼崎市
- 取引態様
- 賃貸仲介業・FC店





























