CREST TAPP名古屋山王 301号室(3階/1DK)の賃貸物件(賃貸マンション)
愛知県名古屋市中川区にあるCREST TAPP名古屋山王 301号室は温水洗浄便座、オートロック、エアコン、都市ガス、分譲賃貸などが特徴です。最寄り駅の名鉄名古屋本線山王駅から徒歩9分です。CREST TAPP名古屋山王 301号室の詳細はハウスコム 中村公園店までお気軽にお問い合わせください!
情報更新日:
次回更新予定日:
※次回更新予定日について:お店側では順次空室確認を行っていますが、次回更新予定日までに空室確認が行えない場合には、この物件情報は自動的に削除されます。
CREST TAPP名古屋山王 301号室の賃貸物件部屋概要
家賃 |
5.49万円
初期費用を |
|---|---|
共益費 |
20,000円
入居可能時期 |
敷金/礼金 |
- / - |
保証金/ |
- / - |
最寄駅 |
|
所在地 |
愛知県名古屋市中川区西日置 |
部屋番号 |
301号室 |
間取り |
1DK |
専有面積 |
26.38㎡ |
築年数 |
新築 |
階数 |
3階部分(地上15階建) |
方位・位置 |
北 / 角部屋 |
物件種別 |
賃貸マンション |
構造 |
RC |
駐車場 |
- |
小学校学区 |
広見小学校 |
中学校学区 |
山王中学校 |
他の空き部屋 |
1001号室 1002号室 1003号室 1004号室 1005号室 1006号室 1101号室 1102号室 1103号室 1104号室 1105号室 1106号室 1201号室 1202号室 1203号室 1204号室 1205号室 1206号室 1301号室 1302号室 1303号室 1304号室 1305号室 1306号室 1401号室 1402号室 1403号室 1404号室 1405号室 1406号室 1501号室 1502号室 1503号室 1504号室 1505号室 1506号室 202号室 203号室 204号室 205号室 206号室 302号室 303号室 304号室 305号室 306号室 401号室 402号室 403号室 404号室 405号室 406号室 501号室 502号室 503号室 504号室 505号室 506号室 601号室 602号室 603号室 604号室 605号室 606号室 701号室 702号室 703号室 704号室 705号室 706号室 801号室 802号室 803号室 804号室 805号室 806号室 901号室 902号室 903号室 904号室 905号室 906号室 |
- 学区データについて
- ※学区データは必ずしも正確とは限りません。詳細に関しては最寄店舗または各自治体の教育委員会に必ずご確認ください。
CREST TAPP名古屋山王 301号室の特徴
-
一人暮らしに人気の設備

-
カップルに人気の設備

-
家族に人気の設備

-
夫婦に人気の設備

-
三世代で人気の設備

-
セキュリティ対策重視

-
外で子どもと遊びたい

-
雨の日でも洗濯したい

-
寝るためだけの部屋

-
オークション・通販が好き

-
ガーデニングが好き

契約条件
ペットの飼育もご相談ください。 敷金と礼金が無料なため、初期費用が比較的安くなる傾向にあります。
セキュリティ
この物件の建物には、オートロックや防犯カメラや宅配ボックスが設置されており、来客時には居室内のテレビモニターにて訪問者の顔を確認することができます。
室内設備
2つ以上のガスコンロが備え付けられています。 トイレは、温水洗浄便座機能付きになります。 洗濯に便利な設備として、浴室乾燥機も設置されているので、梅雨時の生乾き臭も比較的防ぐことができます。
居室状況
エアコンが設置されています。 インターネットも無料で入居後すぐ生活が始められます。 収納スペースとして、玄関にはシューズボックスがあります。
建物設備共用部分
居室外の専有スペースとして、洗濯物を干すなどの用途として利用できるバルコニーがあります。 建物の共用スペースに、日々の出入に便利なエレベーターや、いざという時の防犯カメラや、急な外出や不在がちのご家庭の荷物受け取りに便利な宅配ボックスが設置されています。
周辺施設
この物件の学区は、広見小学校区・山王中学校区です。
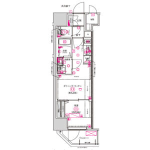
CREST TAPP名古屋山王 301号室の間取り
間取り:1DK
間取詳細:1DK
専有面積:26.38㎡
方位:北
部屋位置:角部屋
CREST TAPP名古屋山王 301号室の設備
キッチン
ガスコンロ
ガスコンロ二口以上
バス・トイレ
バス・トイレ別
浴室乾燥機
温水洗浄便座
玄関
TVモニタ付インターホン
オートロック
宅配ボックス
収納
シューズボックス
バルコニー
バルコニー
ルーフバルコニー
室内設備
エアコン
位置・立地
2階以上
角部屋
インフラ
インターネット可
CATV
都市ガス
建物設備
エレベーター
防犯カメラ
分譲賃貸
入居条件
ペット可・相談
ライフステージ
一人暮らしに人気の設備
カップルに人気の設備
家族に人気の設備
夫婦に人気の設備
三世代で人気の設備
こだわり
セキュリティ対策重視
外で子どもと遊びたい
雨の日でも洗濯したい
寝るためだけの部屋
趣味
オークション・通販が好き
ガーデニングが好き
お得な条件
インターネット無料
CREST TAPP名古屋山王 301号室の賃貸契約情報
毎月支払う |
家賃5.49万円/月共益費20,000円/月 |
|---|---|
初期費用 |
敷金-礼金-保証金-敷引き償却金- |
更新料 |
- |
鍵交換費用 |
- |
室内清掃費用 |
38,500円 |
初期費用:契約事務手数料 |
11,000円 |
ランニング費用:更新事務手数料(更新時)、24H駆けつけサービス(月額) |
11,990円 |
その他費用:エアコンクリーニング(退去時) |
16,500円 |
駐車場料金 |
- |
損保・ |
借家賠付きの火災保険にご加入いただきます。 |
保証会社 |
加入要 保証会社:エルズサポート 保証会社利用料:初回保証料30%~ 年10,000円 |
契約期間 |
2年 |
入居可能日 |
2026年03月上旬 |
フリーレント期間 |
- |
取引形態 |
一般媒介 |
備考 |
- |
CREST TAPP名古屋山王 301号室の建物情報
建物名称 |
CREST TAPP名古屋山王 |
|---|---|
最寄駅 |
|
所在地 |
愛知県名古屋市中川区西日置 |
階層 |
3階部分(地上15階建) |
構造 |
RC |
築年数 |
新築 |
駐車場 |
- |
小学校学区 |
広見小学校 |
中学校学区 |
山王中学校 |
- 学区データについて
- ※学区データは必ずしも正確とは限りません。詳細に関しては最寄店舗または各自治体の教育委員会に必ずご確認ください。
無料この物件に問い合わせ
- CREST TAPP名古屋山王 301号室

-
5.49万円
(共益費
20,000円)
- 敷
- -
- 礼
- -
- 保
- -
- 償
- -
CREST TAPP名古屋山王 301号室の物件のお問い合わせ先・取り扱い店舗
ハウスコム 中村公園店
- アクセス
-
名古屋市営地下鉄 東山線「中村公園駅」徒歩1分
- 住所
- 〒453-0811 愛知県名古屋市中村区太閤通9丁目9 横田ビル 1階
- 営業時間
- 10:00~18:00
- 定休日
- なし
- 営業エリア
- 中村区 中川区 西区 中区 港区 海部郡 あま市 清須市
- 取引態様
- 賃貸仲介業









