エステムコート駒込六義園 204号室(2階/1K)の賃貸物件(賃貸マンション)
東京都豊島区にあるエステムコート駒込六義園 204号室はガスコンロ、浴室乾燥機、TVモニタ付インターホン、室内洗濯機置場、エレベーターなどが特徴です。最寄り駅の山手線駒込駅から徒歩3分です。エステムコート駒込六義園 204号室の詳細はハウスコム 川口店までお気軽にお問い合わせください!
情報更新日:
次回更新予定日:
※次回更新予定日について:お店側では順次空室確認を行っていますが、次回更新予定日までに空室確認が行えない場合には、この物件情報は自動的に削除されます。
エステムコート駒込六義園 204号室の賃貸物件部屋概要
家賃 |
9.952万円
初期費用を |
|---|---|
共益費 |
15,480円
入居可能時期 |
敷金/礼金 |
1ヶ月 / 1ヶ月 |
保証金/ |
- / - |
最寄駅 |
|
所在地 |
東京都豊島区駒込 |
部屋番号 |
204号室 |
間取り |
1K |
専有面積 |
21.27㎡ |
築年数 |
2010年7月(築16年) |
階数 |
2階部分(地上8階建) |
方位・位置 |
北東 / その他 |
物件種別 |
賃貸マンション |
構造 |
RC |
駐車場 |
- |
小学校学区 |
駒込小学校 |
中学校学区 |
駒込中学校 |
他の空き部屋 |
***号室 |
- 学区データについて
- ※学区データは必ずしも正確とは限りません。詳細に関しては最寄店舗または各自治体の教育委員会に必ずご確認ください。
エステムコート駒込六義園 204号室の特徴
-
一人暮らしに人気の設備

-
カップルに人気の設備

-
家族に人気の設備

-
夫婦に人気の設備

-
三世代で人気の設備

-
セキュリティ対策重視

-
外で子どもと遊びたい

-
雨の日でも洗濯したい

-
洋室で暮らしたい

-
ガーデニングが好き

契約条件
この物件は、2人入居もご契約できます。 また、ご契約時に保証人は不要です。
セキュリティ
この物件の建物には、オートロックや防犯カメラや宅配ボックスが設置されており、来客時には居室内のテレビモニターにて訪問者の顔を確認することができます。
室内設備
システムキッチンには、2つ以上のガスコンロが備え付けられています。 トイレは、温水洗浄便座機能付きになります。 洗濯に便利な設備として、室内洗濯機置場があります。浴室乾燥機も設置されているので、梅雨時の生乾き臭も比較的防ぐことができます。
居室状況
お部屋の床は、フローリングとなっており、エアコンが設置されています。 収納スペースとして、玄関にはシューズボックスがあります。
建物設備共用部分
居室外の専有スペースとして、洗濯物を干すなどの用途として利用できるバルコニーがあります。 建物の共用スペースに、日々の出入に便利なエレベーターや、いざという時の防犯カメラや、急な外出や不在がちのご家庭の荷物受け取りに便利な宅配ボックスが設置されています。 駐輪場、バイク置き場が利用できます。
周辺施設
この物件の学区は、駒込小学校区・駒込中学校区です。
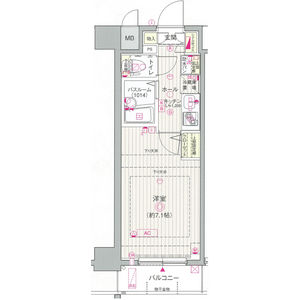
エステムコート駒込六義園 204号室の間取り
間取り:1K
間取詳細:1K
専有面積:21.27㎡
方位:北東
部屋位置:その他
エステムコート駒込六義園 204号室の設備
キッチン
システムキッチン
ガスコンロ
ガスコンロ二口以上
バス・トイレ
バス・トイレ別
浴室乾燥機
温水洗浄便座
玄関
TVモニタ付インターホン
オートロック
宅配ボックス
収納
シューズボックス
バルコニー
バルコニー
ルーフバルコニー
室内設備
エアコン
フローリング
室内洗濯機置場
デザイナーズ
位置・立地
2階以上
インフラ
インターネット可
CATV
BS
CS
都市ガス
建物設備
エレベーター
防犯カメラ
駐輪場
バイク置き場
分譲賃貸
入居条件
2人入居可
保証人不要
ライフステージ
一人暮らしに人気の設備
カップルに人気の設備
家族に人気の設備
夫婦に人気の設備
三世代で人気の設備
こだわり
セキュリティ対策重視
外で子どもと遊びたい
雨の日でも洗濯したい
洋室で暮らしたい
趣味
ガーデニングが好き
エステムコート駒込六義園 204号室の賃貸契約情報
毎月支払う |
家賃9.952万円/月共益費15,480円/月 |
|---|---|
初期費用 |
敷金1ヶ月 (9.952万円)礼金1ヶ月 (9.952万円)保証金-敷引き償却金- |
更新料 |
99,520円 |
鍵交換費用 |
38,500円 |
室内清掃費用 |
57,750円 |
初期費用:契約事務手数料、エステム安心クラブ入会金 |
16,500円 |
ランニング費用:エステム安心クラブ(月額) |
990円 |
その他費用:エアコンクリーニング代(退去時) |
13,200円 |
駐車場料金 |
- |
損保・ |
借家賠付きの火災保険にご加入いただきます。 |
保証会社 |
加入要 保証会社:オリコ 保証会社利用料:初回保証料:総賃料の50% 月額更新料:総賃料の1.5% 初回保証料は決済金預かりです |
契約期間 |
2年 |
入居可能日 |
相談 |
フリーレント期間 |
- |
取引形態 |
一般媒介 |
備考 |
- |
エステムコート駒込六義園 204号室の建物情報
建物名称 |
エステムコート駒込六義園 |
|---|---|
最寄駅 |
|
所在地 |
東京都豊島区駒込 |
階層 |
2階部分(地上8階建) |
構造 |
RC |
築年数 |
2010年7月(築16年) |
駐車場 |
- |
小学校学区 |
駒込小学校 |
中学校学区 |
駒込中学校 |
- 学区データについて
- ※学区データは必ずしも正確とは限りません。詳細に関しては最寄店舗または各自治体の教育委員会に必ずご確認ください。
無料この物件に問い合わせ
- エステムコート駒込六義園 204号室

-
9.952万円
(共益費
15,480円)
- 敷
- 1ヶ月
- 礼
- 1ヶ月
- 保
- -
- 償
- -
エステムコート駒込六義園 204号室の物件のお問い合わせ先・取り扱い店舗
ハウスコム 川口店
- アクセス
-
京浜東北・根岸線「川口駅」東口徒歩1分
- 住所
- 〒332-0017 埼玉県川口市栄町3丁目5−1 高梨ビル 3F
- 営業時間
- 10:00~18:00
- 定休日
- なし(年末年始休業)
- 営業エリア
- 川口市・戸田市・蕨市・さいたま市・東京都北区
- 取引態様
- 賃貸仲介業


















