エスリード中之島ザ・コア ***号室(4階/1K)の賃貸物件(賃貸マンション)
大阪府大阪市西区にあるエスリード中之島ザ・コア ***号室はシステムキッチン、ガスコンロ二口以上、温水洗浄便座、室内洗濯機置場、都市ガスなどが特徴です。最寄り駅の大阪メトロ 中央線九条駅から徒歩11分です。エスリード中之島ザ・コア ***号室の詳細はハウスコム FC弁天町店までお気軽にお問い合わせください!
情報更新日:
次回更新予定日:
※次回更新予定日について:お店側では順次空室確認を行っていますが、次回更新予定日までに空室確認が行えない場合には、この物件情報は自動的に削除されます。
エスリード中之島ザ・コア ***号室の賃貸物件部屋概要
家賃 |
5.98万円
初期費用を |
|---|---|
共益費 |
8,000円
入居可能時期 |
敷金/礼金 |
- / 67,800円 |
保証金/ |
- / - |
最寄駅 |
|
所在地 |
大阪府大阪市西区川口 |
部屋番号 |
***号室 |
間取り |
1K(洋6.7・K2.5) |
専有面積 |
22.42㎡ |
築年数 |
2020年5月(築6年) |
階数 |
4階部分(地上9階建) |
方位・位置 |
ー / 角部屋 |
物件種別 |
賃貸マンション |
構造 |
RC |
駐車場 |
- |
小学校学区 |
本田小学校 |
中学校学区 |
花乃井中学校 |
他の空き部屋 |
413号室 ***号室 |
- 学区データについて
- ※学区データは必ずしも正確とは限りません。詳細に関しては最寄店舗または各自治体の教育委員会に必ずご確認ください。
この物件にお問い合わせ
エスリード中之島ザ・コア ***号室の特徴
契約条件
ペットの飼育もご相談ください。 敷金が無料なため、初期費用が比較的安くなる傾向にあります。
セキュリティ
この物件の建物には、オートロックや防犯カメラや宅配ボックスが設置されており、来客時には居室内のテレビモニターにて訪問者の顔を確認することができます。
室内設備
システムキッチンには、2つ以上のガスコンロが備え付けられています。 トイレは、温水洗浄便座機能付きになります。 女性に嬉しい設備の独立した洗面化粧台があります。 洗濯に便利な設備として、室内洗濯機置場があります。浴室乾燥機も設置されているので、梅雨時の生乾き臭も比較的防ぐことができます。
居室状況
お部屋の床は、フローリングとなっており、エアコンが設置されています。 収納スペースとして、基本的な居室にクローゼットを設置、玄関にはシューズボックスがあります。
建物設備共用部分
居室外の専有スペースとして、洗濯物を干すなどの用途として利用できるバルコニーがあります。 建物の共用スペースに、日々の出入に便利なエレベーターや、いざという時の防犯カメラや、急な外出や不在がちのご家庭の荷物受け取りに便利な宅配ボックスや、居室内を常に清潔に保てる24時間利用可能なゴミ捨て置き場が設置されています。 駐輪場が利用できます。
周辺施設
この物件の学区は、本田小学校区・花乃井中学校区です。近くには、徒歩13分(1040m)でザ・ダイソー 大阪ナインモール九条店があります。
この物件にお問い合わせ
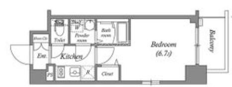
エスリード中之島ザ・コア ***号室の間取り
間取り:1K
間取詳細:1K(洋6.7・K2.5)
専有面積:22.42㎡
方位:ー
部屋位置:角部屋
エスリード中之島ザ・コア ***号室の設備
キッチン
システムキッチン
ガスコンロ
ガスコンロ二口以上
バス・トイレ
バス・トイレ別
浴室乾燥機
温水洗浄便座
独立洗面台
玄関
TVモニタ付インターホン
オートロック
宅配ボックス
収納
クローゼット
シューズボックス
バルコニー
バルコニー
室内設備
エアコン
フローリング
室内洗濯機置場
位置・立地
2階以上
角部屋
インフラ
インターネット可
CATV
BS
CS
都市ガス
建物設備
エレベーター
防犯カメラ
24時間ゴミ出しOK
駐輪場
入居条件
ペット可・相談
即入居可
ライフステージ
一人暮らしに人気の設備
カップルに人気の設備
家族に人気の設備
夫婦に人気の設備
三世代で人気の設備
こだわり
セキュリティ対策重視
タイパ重視
雨の日でも洗濯したい
洋室で暮らしたい
この物件にお問い合わせ
エスリード中之島ザ・コア ***号室の賃貸契約情報
毎月支払う |
家賃5.98万円/月共益費8,000円/月 |
|---|---|
初期費用 |
敷金-礼金67,800円保証金-敷引き償却金- |
更新料 |
- |
鍵交換費用 |
- |
室内清掃費用 |
- |
駐車場料金 |
- |
損保・ |
借家賠付きの火災保険にご加入いただきます。 |
保証会社 |
|
契約期間 |
1年 |
入居可能日 |
即入居可 |
フリーレント期間 |
- |
取引形態 |
仲介 |
備考 |
- |
エスリード中之島ザ・コア ***号室の建物情報
建物名称 |
エスリード中之島ザ・コア |
|---|---|
最寄駅 |
|
所在地 |
大阪府大阪市西区川口 |
階層 |
4階部分(地上9階建) |
構造 |
RC |
築年数 |
2020年5月(築6年) |
駐車場 |
- |
小学校学区 |
本田小学校 |
中学校学区 |
花乃井中学校 |
- 学区データについて
- ※学区データは必ずしも正確とは限りません。詳細に関しては最寄店舗または各自治体の教育委員会に必ずご確認ください。
無料この物件に問い合わせ
- エスリード中之島ザ・コア ***号室

-
5.98万円
(共益費
8,000円)
- 敷
- -
- 礼
- 67,800円
- 保
- -
- 償
- -
エスリード中之島ザ・コア ***号室の物件のお問い合わせ先・取り扱い店舗
ハウスコム FC弁天町店
- アクセス
-
大阪メトロ 中央線「弁天町駅」徒歩5分
大阪環状線「弁天町駅」徒歩5分
- 住所
- 〒552-0007 大阪府大阪市港区弁天4丁目12-6
- 営業時間
- 10:00~19:00
- 定休日
- 水曜日(年末年始:2025年12月28日(日)~2026年1月3日(土))
- 営業エリア
- 港区・西区・此花区
- 取引態様
- 賃貸仲介業・FC店






























