SQM(エスキューエム) 103号室(1階/1R)の賃貸物件(賃貸アパート)
東京都江東区にあるSQM(エスキューエム) 103号室はバス・トイレ別、独立洗面台、TVモニタ付インターホン、フローリング、インターネット可などが特徴です。最寄り駅の都営新宿線菊川駅から徒歩5分です。SQM(エスキューエム) 103号室の詳細はハウスコム 押上店までお気軽にお問い合わせください!
情報更新日:
次回更新予定日:
※次回更新予定日について:お店側では順次空室確認を行っていますが、次回更新予定日までに空室確認が行えない場合には、この物件情報は自動的に削除されます。
SQM(エスキューエム) 103号室の賃貸物件部屋概要
家賃 |
7.7万円
初期費用を |
|---|---|
共益費 |
3,000円
入居可能時期 |
敷金/礼金 |
- / - |
保証金/ |
- / - |
最寄駅 |
|
所在地 |
東京都江東区森下 |
部屋番号 |
103号室 |
間取り |
1R |
専有面積 |
17.66㎡ |
築年数 |
2017年12月(築9年) |
階数 |
1階部分(地上3階建) |
方位・位置 |
東 / その他 |
物件種別 |
賃貸アパート |
構造 |
木造 |
駐車場 |
- |
小学校学区 |
深川小学校 |
中学校学区 |
深川第一中学校 |
他の空き部屋 |
ー |
- 学区データについて
- ※学区データは必ずしも正確とは限りません。詳細に関しては最寄店舗または各自治体の教育委員会に必ずご確認ください。
SQM(エスキューエム) 103号室の特徴
契約条件
ご契約時に保証人は不要です。 敷金と礼金が無料なため、初期費用が比較的安くなる傾向にあります。
セキュリティ
来客時には居室内のテレビモニターにて訪問者の顔を確認することができます。
室内設備
システムキッチンには、ガスコンロが備え付けられています。 お風呂とトイレは別です。お風呂には、追い焚き機能が備わっています。 トイレは、温水洗浄便座機能付きになります。 女性に嬉しい設備の独立した洗面化粧台があります。
居室状況
お部屋の床は、フローリングとなっており、エアコンが設置されています。 インターネットも無料で入居後すぐ生活が始められます。 収納スペースとして、基本的な居室にクローゼットを設置、玄関にはシューズボックスがあります。
周辺施設
この物件の学区は、深川小学校区・深川第一中学校区です。
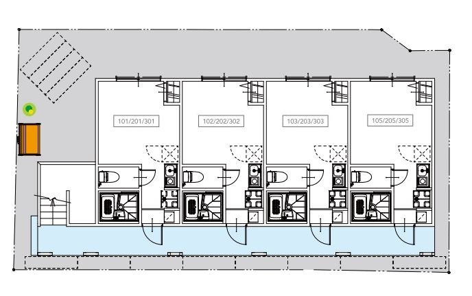
SQM(エスキューエム) 103号室の間取り
間取り:1R
間取詳細:1R
専有面積:17.66㎡
方位:東
部屋位置:その他
SQM(エスキューエム) 103号室の設備
キッチン
システムキッチン
ガスコンロ
バス・トイレ
バス・トイレ別
追い焚き
温水洗浄便座
独立洗面台
玄関
TVモニタ付インターホン
収納
クローゼット
シューズボックス
室内設備
エアコン
フローリング
デザイナーズ
位置・立地
1階
インフラ
インターネット可
プロパンガス
入居条件
保証人不要
ライフステージ
一人暮らしに人気の設備
カップルに人気の設備
家族に人気の設備
夫婦に人気の設備
三世代で人気の設備
こだわり
洋室で暮らしたい
お得な条件
インターネット無料
SQM(エスキューエム) 103号室の賃貸契約情報
毎月支払う |
家賃7.7万円/月共益費3,000円/月 |
|---|---|
初期費用 |
敷金-礼金-保証金-敷引き償却金- |
更新料 |
77,000円 |
鍵交換費用 |
27,500円 |
室内清掃費用 |
- |
退去時清掃費用(※入居時徴収) |
55,000円 |
駐車場料金 |
- |
損保・ |
借家賠付きの火災保険にご加入いただきます。 |
保証会社 |
加入要 保証会社:オリコ 保証会社利用料:初回:100% |
契約期間 |
2年 |
入居可能日 |
2026年02月下旬 |
フリーレント期間 |
- |
取引形態 |
一般媒介 |
備考 |
- |
SQM(エスキューエム) 103号室の建物情報
建物名称 |
SQM(エスキューエム) |
|---|---|
最寄駅 |
|
所在地 |
東京都江東区森下 |
階層 |
1階部分(地上3階建) |
構造 |
木造 |
築年数 |
2017年12月(築9年) |
駐車場 |
- |
小学校学区 |
深川小学校 |
中学校学区 |
深川第一中学校 |
- 学区データについて
- ※学区データは必ずしも正確とは限りません。詳細に関しては最寄店舗または各自治体の教育委員会に必ずご確認ください。
無料この物件に問い合わせ
- SQM(エスキューエム) 103号室

-
7.7万円
(共益費
3,000円)
- 敷
- -
- 礼
- -
- 保
- -
- 償
- -
SQM(エスキューエム) 103号室の物件のお問い合わせ先・取り扱い店舗
ハウスコム 押上店
- アクセス
-
東京メトロ 半蔵門線「押上駅」B1出口徒歩1分
- 住所
- 〒130-0002 東京都墨田区業平4丁目16−2 三橋ビル 1F
- 営業時間
- 10:00~18:00
- 定休日
- 水曜日
- 営業エリア
- 墨田区・江東区・中央区・台東区・江戸川区・葛飾区・足立区・荒川区
- 取引態様
- 賃貸仲介業






















