シャンテ西六郷 201号室(3階/1R)の賃貸物件(賃貸アパート)
東京都大田区にあるシャンテ西六郷 201号室はシステムキッチン、バス・トイレ別、フローリング、最上階、即入居可などが特徴です。最寄り駅の京急本線六郷土手駅から徒歩7分です。シャンテ西六郷 201号室の詳細はハウスコム 蒲田店までお気軽にお問い合わせください!
情報更新日:
次回更新予定日:
※次回更新予定日について:お店側では順次空室確認を行っていますが、次回更新予定日までに空室確認が行えない場合には、この物件情報は自動的に削除されます。
シャンテ西六郷 201号室の賃貸物件部屋概要
家賃 |
7万円
初期費用を |
|---|---|
共益費 |
10,000円
入居可能時期 |
敷金/礼金 |
- / - |
保証金/ |
- / - |
最寄駅 |
|
所在地 |
東京都大田区西六郷 |
部屋番号 |
201号室 |
間取り |
1R |
専有面積 |
13.31㎡ |
築年数 |
2017年3月(築9年) |
階数 |
3階部分(地上3階建) |
方位・位置 |
北西 / その他 |
物件種別 |
賃貸アパート |
構造 |
木造 |
駐車場 |
無 |
小学校学区 |
高畑小学校 |
中学校学区 |
六郷中学校 |
他の空き部屋 |
304号室 |
- 学区データについて
- ※学区データは必ずしも正確とは限りません。詳細に関しては最寄店舗または各自治体の教育委員会に必ずご確認ください。
シャンテ西六郷 201号室の特徴
契約条件
敷金と礼金が無料なため、初期費用が比較的安くなる傾向にあります。
セキュリティ
この物件の建物には、オートロックが設置されており、来客時には居室内のテレビモニターにて訪問者の顔を確認することができます。
室内設備
システムキッチンには、ガスコンロが備え付けられています。 洗濯に便利な設備として、室内洗濯機置場があります。
居室状況
居室には、ロフトが設置されており大規模な収納スペースやセパレートされた寝室として活用できます。 お部屋の床は、フローリングとなっており、エアコンが設置されています。
周辺施設
この物件の学区は、高畑小学校区・六郷中学校区です。
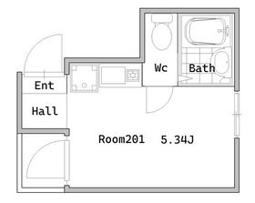
シャンテ西六郷 201号室の間取り
間取り:1R
間取詳細:1R
専有面積:13.31㎡
方位:北西
部屋位置:その他
シャンテ西六郷 201号室の設備
キッチン
システムキッチン
ガスコンロ
バス・トイレ
バス・トイレ別
玄関
TVモニタ付インターホン
オートロック
室内設備
エアコン
フローリング
室内洗濯機置場
ロフト付
位置・立地
2階以上
最上階
入居条件
即入居可
ライフステージ
一人暮らしに人気の設備
カップルに人気の設備
家族に人気の設備
夫婦に人気の設備
三世代で人気の設備
トレンド
ミニマリスト
こだわり
雨の日でも洗濯したい
洋室で暮らしたい
シャンテ西六郷 201号室の賃貸契約情報
毎月支払う |
家賃7万円/月共益費10,000円/月 |
|---|---|
初期費用 |
敷金-礼金-保証金-敷引き償却金- |
更新料 |
70,000円 |
鍵交換費用 |
- |
室内清掃費用 |
- |
駐車場料金 |
無 |
損保・ |
借家賠付きの火災保険にご加入いただきます。 |
保証会社 |
加入要 保証会社利用料:エルズサポート:初回賃料総額50%、月額1.2%、口座振替手数料440円 |
契約期間 |
2年 |
入居可能日 |
即入居可 |
フリーレント期間 |
- |
取引形態 |
一般媒介 |
備考 |
- |
シャンテ西六郷 201号室の建物情報
建物名称 |
シャンテ西六郷 |
|---|---|
最寄駅 |
|
所在地 |
東京都大田区西六郷 |
階層 |
3階部分(地上3階建) |
構造 |
木造 |
築年数 |
2017年3月(築9年) |
駐車場 |
無 |
小学校学区 |
高畑小学校 |
中学校学区 |
六郷中学校 |
- 学区データについて
- ※学区データは必ずしも正確とは限りません。詳細に関しては最寄店舗または各自治体の教育委員会に必ずご確認ください。
無料この物件に問い合わせ
- シャンテ西六郷 201号室

-
7万円
(共益費
10,000円)
- 敷
- -
- 礼
- -
- 保
- -
- 償
- -
シャンテ西六郷 201号室の物件のお問い合わせ先・取り扱い店舗
ハウスコム 蒲田店
- アクセス
-
京浜東北・根岸線「蒲田駅」西口徒歩1分
- 住所
- 〒144-0051 東京都大田区西蒲田7丁目5−8 コパンビル 1階
- 営業時間
- 10:00~18:00
- 定休日
- なし
- 営業エリア
- 大田区、品川区、川崎市
- 取引態様
- 賃貸仲介業























