レジデンス鉄博 302号室(3階/1K)の賃貸物件(賃貸アパート)
埼玉県さいたま市北区にあるレジデンス鉄博 302号室は独立洗面台、宅配ボックス、2階以上、オンライン相談可、オンライン内見可などが特徴です。最寄り駅のニューシャトル(埼玉新都市交通伊奈線)鉄道博物館(大成)駅から徒歩8分です。レジデンス鉄博 302号室の詳細はハウスコム 上尾店までお気軽にお問い合わせください!
情報更新日:
次回更新予定日:
※次回更新予定日について:お店側では順次空室確認を行っていますが、次回更新予定日までに空室確認が行えない場合には、この物件情報は自動的に削除されます。
レジデンス鉄博 302号室の賃貸物件部屋概要
家賃 |
6.8万円
初期費用を |
|---|---|
共益費 |
3,000円
入居可能時期 |
敷金/礼金 |
- / - |
保証金/ |
- / - |
最寄駅 |
|
所在地 |
埼玉県さいたま市北区東大成町 |
部屋番号 |
302号室 |
間取り |
1K(洋6) |
専有面積 |
20.03㎡ |
築年数 |
2024年11月(築2年) |
階数 |
3階部分(地上3階建) |
方位・位置 |
ー / その他 |
物件種別 |
賃貸アパート |
構造 |
木造 |
駐車場 |
- |
小学校学区 |
東大成小学校 |
中学校学区 |
植竹中学校 |
他の空き部屋 |
103号室 305号室 |
- 学区データについて
- ※学区データは必ずしも正確とは限りません。詳細に関しては最寄店舗または各自治体の教育委員会に必ずご確認ください。
レジデンス鉄博 302号室の特徴
契約条件
ご契約時に保証人は不要です。 敷金と礼金が無料なため、初期費用が比較的安くなる傾向にあります。
セキュリティ
この物件の建物には、オートロックや宅配ボックスが設置されており、来客時には居室内のテレビモニターにて訪問者の顔を確認することができます。
室内設備
システムキッチンには、2つ以上のガスコンロが備え付けられています。 トイレは、温水洗浄便座機能付きになります。 女性に嬉しい設備のシャワーの付いている洗面化粧台があります。 洗濯に便利な設備として、室内洗濯機置場があります。浴室乾燥機も設置されているので、梅雨時の生乾き臭も比較的防ぐことができます。
居室状況
お部屋の床は、フローリングとなっており、エアコンが設置されています。 収納スペースとして、基本的な居室にクローゼットを設置、玄関にはシューズボックスがあります。
建物設備共用部分
居室外の専有スペースとして、洗濯物を干すなどの用途として利用できるバルコニーがあります。 建物の共用スペースに、急な外出や不在がちのご家庭の荷物受け取りに便利な宅配ボックスが設置されています。
周辺施設
この物件の学区は、東大成小学校区・植竹中学校区です。
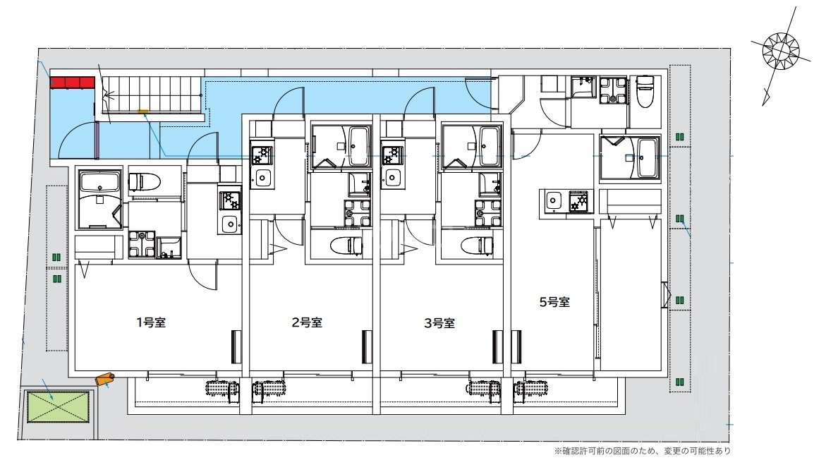
レジデンス鉄博 302号室の間取り
間取り:1K
間取詳細:1K(洋6)
専有面積:20.03㎡
方位:ー
部屋位置:その他
レジデンス鉄博 302号室の設備
キッチン
システムキッチン
ガスコンロ
ガスコンロ二口以上
バス・トイレ
バス・トイレ別
浴室乾燥機
温水洗浄便座
独立洗面台
シャワー付洗面化粧台
玄関
TVモニタ付インターホン
オートロック
宅配ボックス
収納
クローゼット
シューズボックス
バルコニー
バルコニー
ルーフバルコニー
室内設備
エアコン
フローリング
室内洗濯機置場
位置・立地
2階以上
最上階
インフラ
インターネット可
都市ガス
入居条件
オンライン相談可
オンライン内見可
保証人不要
ライフステージ
一人暮らしに人気の設備
カップルに人気の設備
家族に人気の設備
夫婦に人気の設備
三世代で人気の設備
こだわり
外で子どもと遊びたい
雨の日でも洗濯したい
洋室で暮らしたい
趣味
ガーデニングが好き
お得な条件
フリーレント
レジデンス鉄博 302号室の賃貸契約情報
毎月支払う |
家賃6.8万円/月共益費3,000円/月 |
|---|---|
初期費用 |
敷金-礼金-保証金-敷引き償却金- |
更新料 |
68,000円 |
鍵交換費用 |
22,000円 |
室内清掃費用 |
55,000円 |
入居者アプリ設定費 |
16,500円 |
駐車場料金 |
- |
損保・ |
借家賠付きの火災保険にご加入いただきます。 |
保証会社 |
加入要 保証会社利用料:月額賃料合計(その他費用含む)×100% |
契約期間 |
2年 |
入居可能日 |
2026年02月下旬 |
フリーレント期間 |
1ヶ月 |
取引形態 |
一般媒介 |
備考 |
- |
レジデンス鉄博 302号室の建物情報
建物名称 |
レジデンス鉄博 |
|---|---|
最寄駅 |
|
所在地 |
埼玉県さいたま市北区東大成町 |
階層 |
3階部分(地上3階建) |
構造 |
木造 |
築年数 |
2024年11月(築2年) |
駐車場 |
- |
小学校学区 |
東大成小学校 |
中学校学区 |
植竹中学校 |
- 学区データについて
- ※学区データは必ずしも正確とは限りません。詳細に関しては最寄店舗または各自治体の教育委員会に必ずご確認ください。
無料この物件に問い合わせ
- レジデンス鉄博 302号室

-
6.8万円
(共益費
3,000円)
- 敷
- -
- 礼
- -
- 保
- -
- 償
- -
レジデンス鉄博 302号室の物件のお問い合わせ先・取り扱い店舗
ハウスコム 上尾店
- アクセス
-
高崎線「上尾駅」西口徒歩1分
- 住所
- 〒362-0042 埼玉県上尾市谷津2丁目1−50−32 アルファビル 1階
- 営業時間
- 10:00~18:00
- 定休日
- なし(年末年始は休業)
- 営業エリア
- 上尾市,伊奈町,桶川市、北本市、鴻巣市、羽生市、加須市
- 取引態様
- 賃貸仲介業






































