プレール・ドゥーク東京EASTⅤ 706号室(7階/1LDK)の賃貸物件(賃貸マンション)
東京都台東区にあるプレール・ドゥーク東京EASTⅤ 706号室はオートロック、ルーフバルコニー、室内洗濯機置場、2階以上、BSなどが特徴です。最寄り駅の東京メトロ 日比谷線三ノ輪駅から徒歩5分です。プレール・ドゥーク東京EASTⅤ 706号室の詳細はハウスコム 事業戦略室までお気軽にお問い合わせください!
情報更新日:
次回更新予定日:
※次回更新予定日について:お店側では順次空室確認を行っていますが、次回更新予定日までに空室確認が行えない場合には、この物件情報は自動的に削除されます。
プレール・ドゥーク東京EASTⅤ 706号室の賃貸物件部屋概要
家賃 |
14.5万円
初期費用を |
|---|---|
共益費 |
8,000円
入居可能時期 |
敷金/礼金 |
- / 145,000円 |
保証金/ |
- / - |
最寄駅 |
|
所在地 |
東京都台東区三ノ輪 |
部屋番号 |
706号室 |
間取り |
1LDK(洋5.5・LDK14.7) |
専有面積 |
43.95㎡ |
築年数 |
2010年3月(築16年) |
階数 |
7階部分(地上13階建) |
方位・位置 |
北東 / 角部屋 |
物件種別 |
賃貸マンション |
構造 |
RC |
駐車場 |
無 |
小学校学区 |
東泉小学校 |
中学校学区 |
柏葉中学校 |
他の空き部屋 |
204号室 |
- 学区データについて
- ※学区データは必ずしも正確とは限りません。詳細に関しては最寄店舗または各自治体の教育委員会に必ずご確認ください。
プレール・ドゥーク東京EASTⅤ 706号室の特徴
-
一人暮らしに人気の設備

-
カップルに人気の設備

-
家族に人気の設備

-
夫婦に人気の設備

-
三世代で人気の設備

-
セキュリティ対策重視

-
外で子どもと遊びたい

-
雨の日でも洗濯したい

-
洋室で暮らしたい

-
ガーデニングが好き

契約条件
ペットの飼育もご相談ください。 敷金が無料なため、初期費用が比較的安くなる傾向にあります。
セキュリティ
この物件の建物には、オートロックや防犯カメラが設置されており、来客時には居室内のテレビモニターにて訪問者の顔を確認することができます。
室内設備
システムキッチンが備え付けられています。 トイレは、温水洗浄便座機能付きになります。 洗濯に便利な設備として、室内洗濯機置場があります。浴室乾燥機も設置されているので、梅雨時の生乾き臭も比較的防ぐことができます。
居室状況
お部屋の床は、フローリングとなっており、エアコンが設置されています。
建物設備共用部分
居室外の専有スペースとして、洗濯物を干すなどの用途として利用できるバルコニーがあります。 建物の共用スペースに、いざという時の防犯カメラが設置されています。
周辺施設
この物件の学区は、東泉小学校区・柏葉中学校区です。
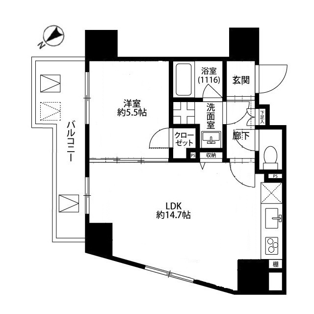
プレール・ドゥーク東京EASTⅤ 706号室の間取り
間取り:1LDK
間取詳細:1LDK(洋5.5・LDK14.7)
専有面積:43.95㎡
方位:北東
部屋位置:角部屋
プレール・ドゥーク東京EASTⅤ 706号室の設備
キッチン
システムキッチン
バス・トイレ
バス・トイレ別
浴室乾燥機
温水洗浄便座
玄関
TVモニタ付インターホン
オートロック
バルコニー
バルコニー
ルーフバルコニー
室内設備
エアコン
フローリング
室内洗濯機置場
位置・立地
2階以上
角部屋
インフラ
インターネット可
BS
CS
建物設備
防犯カメラ
入居条件
ペット可・相談
ライフステージ
一人暮らしに人気の設備
カップルに人気の設備
家族に人気の設備
夫婦に人気の設備
三世代で人気の設備
こだわり
セキュリティ対策重視
外で子どもと遊びたい
雨の日でも洗濯したい
洋室で暮らしたい
趣味
ガーデニングが好き
プレール・ドゥーク東京EASTⅤ 706号室の賃貸契約情報
毎月支払う |
家賃14.5万円/月共益費8,000円/月 |
|---|---|
初期費用 |
敷金-礼金145,000円保証金-敷引き償却金- |
更新料 |
- |
鍵交換費用 |
- |
室内清掃費用 |
- |
駐車場料金 |
無 |
損保・ |
借家賠付きの火災保険にご加入いただきます。 |
保証会社 |
加入要 保証会社利用料:株式会社木下グループ 初回保証料月額総費用の80%、利用手数料550円、継続保証料20,000円(2 |
契約期間 |
- |
入居可能日 |
2026年01月下旬 |
フリーレント期間 |
- |
取引形態 |
一般媒介 |
備考 |
- |
プレール・ドゥーク東京EASTⅤ 706号室の建物情報
建物名称 |
プレール・ドゥーク東京EASTⅤ |
|---|---|
最寄駅 |
|
所在地 |
東京都台東区三ノ輪 |
階層 |
7階部分(地上13階建) |
構造 |
RC |
築年数 |
2010年3月(築16年) |
駐車場 |
無 |
小学校学区 |
東泉小学校 |
中学校学区 |
柏葉中学校 |
- 学区データについて
- ※学区データは必ずしも正確とは限りません。詳細に関しては最寄店舗または各自治体の教育委員会に必ずご確認ください。
無料この物件に問い合わせ
- プレール・ドゥーク東京EASTⅤ 706号室

-
14.5万円
(共益費
8,000円)
- 敷
- -
- 礼
- 145,000円
- 保
- -
- 償
- -
プレール・ドゥーク東京EASTⅤ 706号室の物件のお問い合わせ先・取り扱い店舗
ハウスコム 事業戦略室
- アクセス
-
山手線「品川駅」港南口徒歩3分
- 住所
- 〒108-0075 東京都港区港南2-16-1 品川イーストワンタワー9階
- 営業時間
- 10:00~17:00
- 定休日
- 土曜日・日曜日(祝日定休)
- 営業エリア
- 北区、荒川区、豊島区、文京区、台東区、中央区、新宿区、千代田区、渋谷区、港区、品川区
- 取引態様
- 賃貸仲介業













