リーブルファイン草加新栄 203号室(2階/1LDK)の賃貸物件(賃貸アパート)
埼玉県草加市にあるリーブルファイン草加新栄 203号室はガスコンロ二口以上、独立洗面台、TVモニタ付インターホン、2階以上、保証人不要などが特徴です。最寄り駅の埼玉高速鉄道戸塚安行駅から徒歩19分です。リーブルファイン草加新栄 203号室の詳細はハウスコム 東川口店までお気軽にお問い合わせください!
情報更新日:
次回更新予定日:
※次回更新予定日について:お店側では順次空室確認を行っていますが、次回更新予定日までに空室確認が行えない場合には、この物件情報は自動的に削除されます。
リーブルファイン草加新栄 203号室の賃貸物件部屋概要
家賃 |
8.5万円
初期費用を |
|---|---|
共益費 |
3,000円
入居可能時期 |
敷金/礼金 |
1ヶ月 / 1ヶ月 |
保証金/ |
- / - |
最寄駅 |
|
所在地 |
埼玉県草加市新栄 |
部屋番号 |
203号室 |
間取り |
1LDK(洋3.7・LDK10.2) |
専有面積 |
42.86㎡ |
築年数 |
新築 |
階数 |
2階部分(地上2階建) |
方位・位置 |
ー / その他 |
物件種別 |
賃貸アパート |
構造 |
木造 |
駐車場 |
- |
小学校学区 |
新栄小学校 |
中学校学区 |
新栄中学校 |
他の空き部屋 |
ー |
- 学区データについて
- ※学区データは必ずしも正確とは限りません。詳細に関しては最寄店舗または各自治体の教育委員会に必ずご確認ください。
リーブルファイン草加新栄 203号室の特徴
契約条件
この物件は、2人入居もご契約できます。 また、ご契約時に保証人は不要です。
セキュリティ
この物件の建物には、宅配ボックスが設置されており、来客時には居室内のテレビモニターにて訪問者の顔を確認することができます。
室内設備
2つ以上のガスコンロが備え付けられています。 お風呂とトイレは別です。お風呂には、追い焚き機能が備わっています。 トイレは、温水洗浄便座機能付きになります。 女性に嬉しい設備のシャワーの付いている洗面化粧台があります。 洗濯に便利な設備として、室内洗濯機置場があります。浴室乾燥機も設置されているので、梅雨時の生乾き臭も比較的防ぐことができます。
居室状況
お部屋の床は、フローリングとなっており、エアコンが設置されています。 インターネットも無料で入居後すぐ生活が始められます。
建物設備共用部分
建物の共用スペースに、急な外出や不在がちのご家庭の荷物受け取りに便利な宅配ボックスが設置されています。
周辺施設
この物件の学区は、新栄小学校区・新栄中学校区です。
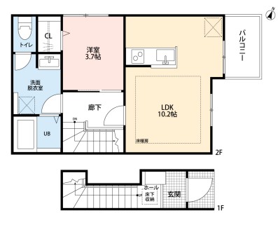
リーブルファイン草加新栄 203号室の間取り
間取り:1LDK
間取詳細:1LDK(洋3.7・LDK10.2)
専有面積:42.86㎡
方位:ー
部屋位置:その他
リーブルファイン草加新栄 203号室の設備
キッチン
ガスコンロ
ガスコンロ二口以上
バス・トイレ
バス・トイレ別
追い焚き
浴室乾燥機
温水洗浄便座
独立洗面台
シャワー付洗面化粧台
玄関
TVモニタ付インターホン
宅配ボックス
室内設備
エアコン
フローリング
室内洗濯機置場
位置・立地
2階以上
最上階
インフラ
CATV
都市ガス
入居条件
2人入居可
オンライン相談可
オンライン内見可
保証人不要
ライフステージ
一人暮らしに人気の設備
カップルに人気の設備
家族に人気の設備
夫婦に人気の設備
三世代で人気の設備
こだわり
雨の日でも洗濯したい
洋室で暮らしたい
趣味
オークション・通販が好き
お得な条件
インターネット無料
リーブルファイン草加新栄 203号室の賃貸契約情報
毎月支払う |
家賃8.5万円/月共益費3,000円/月 |
|---|---|
初期費用 |
敷金1ヶ月 (8.5万円)礼金1ヶ月 (8.5万円)保証金-敷引き償却金- |
更新料 |
85,000円 |
鍵交換費用 |
18,700円 |
室内清掃費用 |
- |
はじめCLUB OFF |
1,100円 |
更新事務手数料 |
22,000円 |
駐車場料金 |
- |
損保・ |
借家賠付きの火災保険にご加入いただきます。 |
保証会社 |
加入要 保証会社利用料:初回保証料 総賃料50% |
契約期間 |
2年 |
入居可能日 |
即入居可 |
フリーレント期間 |
- |
取引形態 |
一般媒介 |
備考 |
家財保険24000円 鍵設置代16500円 |
リーブルファイン草加新栄 203号室の建物情報
建物名称 |
リーブルファイン草加新栄 |
|---|---|
最寄駅 |
|
所在地 |
埼玉県草加市新栄 |
階層 |
2階部分(地上2階建) |
構造 |
木造 |
築年数 |
新築 |
駐車場 |
- |
小学校学区 |
新栄小学校 |
中学校学区 |
新栄中学校 |
- 学区データについて
- ※学区データは必ずしも正確とは限りません。詳細に関しては最寄店舗または各自治体の教育委員会に必ずご確認ください。
無料この物件に問い合わせ
- リーブルファイン草加新栄 203号室

-
8.5万円
(共益費
3,000円)
- 敷
- 1ヶ月
- 礼
- 1ヶ月
- 保
- -
- 償
- -
リーブルファイン草加新栄 203号室の物件のお問い合わせ先・取り扱い店舗
ハウスコム 東川口店
- アクセス
-
武蔵野線「東川口駅」南口徒歩3分
- 住所
- 〒333-0811 埼玉県川口市戸塚2丁目21−34 アルトピアーノ 1階
- 営業時間
- 10:00~18:00
- 定休日
- 水曜日
- 営業エリア
- 川口市内・さいたま市内・越谷市、草加市
- 取引態様
- 賃貸仲介業





































