ザ・パークハビオSOHO祐天寺 705号室(7階/1DK)の賃貸物件(賃貸マンション)
東京都目黒区にあるザ・パークハビオSOHO祐天寺 705号室は追い焚き、オートロック、宅配ボックス、フローリング、最上階などが特徴です。最寄り駅の東急東横線祐天寺駅から徒歩2分です。ザ・パークハビオSOHO祐天寺 705号室の詳細はハウスコム 五反田店までお気軽にお問い合わせください!
情報更新日:
次回更新予定日:
※次回更新予定日について:お店側では順次空室確認を行っていますが、次回更新予定日までに空室確認が行えない場合には、この物件情報は自動的に削除されます。
ザ・パークハビオSOHO祐天寺 705号室の賃貸物件部屋概要
家賃 |
17.5万円
初期費用を |
|---|---|
共益費 |
20,000円
入居可能時期 |
敷金/礼金 |
175,000円 / 175,000円 |
保証金/ |
- / - |
最寄駅 |
|
所在地 |
東京都目黒区祐天寺 |
部屋番号 |
705号室 |
間取り |
1DK(洋4.3・D4.5) |
専有面積 |
26.97㎡ |
築年数 |
2023年5月(築3年) |
階数 |
7階部分(地上7階建) |
方位・位置 |
西 / その他 |
物件種別 |
賃貸マンション |
構造 |
RC |
駐車場 |
44,000円 |
小学校学区 |
上目黒小学校 |
中学校学区 |
目黒中央中学校 |
他の空き部屋 |
201号室 301号室 |
- 学区データについて
- ※学区データは必ずしも正確とは限りません。詳細に関しては最寄店舗または各自治体の教育委員会に必ずご確認ください。
ザ・パークハビオSOHO祐天寺 705号室の特徴
契約条件
ペットの飼育や楽器演奏もご相談ください。
セキュリティ
この物件の建物には、オートロックや防犯カメラや宅配ボックスが設置されており、来客時には居室内のテレビモニターにて訪問者の顔を確認することができます。
室内設備
お風呂とトイレは別です。お風呂には、追い焚き機能が備わっています。 トイレは、温水洗浄便座機能付きになります。 洗濯に便利な設備として、室内洗濯機置場があります。浴室乾燥機も設置されているので、梅雨時の生乾き臭も比較的防ぐことができます。
居室状況
お部屋の床は、フローリングとなっています。照明器具が備え付けられており、入居後すぐ生活が始められます。
建物設備共用部分
建物の共用スペースに、日々の出入に便利なエレベーターや、いざという時の防犯カメラや、急な外出や不在がちのご家庭の荷物受け取りに便利な宅配ボックスが設置されています。
周辺施設
この物件の学区は、上目黒小学校区・目黒中央中学校区です。
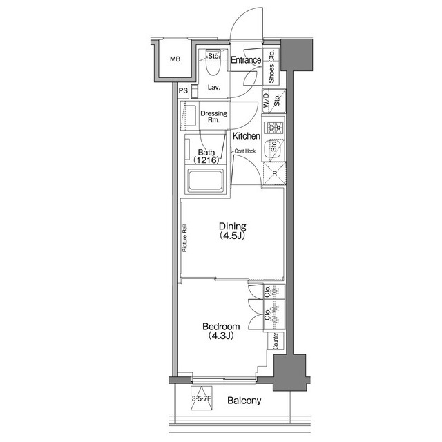
ザ・パークハビオSOHO祐天寺 705号室の間取り
間取り:1DK
間取詳細:1DK(洋4.3・D4.5)
専有面積:26.97㎡
方位:西
部屋位置:その他
ザ・パークハビオSOHO祐天寺 705号室の設備
バス・トイレ
バス・トイレ別
追い焚き
浴室乾燥機
温水洗浄便座
玄関
TVモニタ付インターホン
オートロック
宅配ボックス
室内設備
フローリング
室内洗濯機置場
照明器具付
位置・立地
2階以上
最上階
インフラ
インターネット可
建物設備
エレベーター
防犯カメラ
入居条件
ペット可・相談
楽器可・相談
ライフステージ
一人暮らしに人気の設備
カップルに人気の設備
家族に人気の設備
夫婦に人気の設備
三世代で人気の設備
こだわり
セキュリティ対策重視
雨の日でも洗濯したい
洋室で暮らしたい
ザ・パークハビオSOHO祐天寺 705号室の賃貸契約情報
毎月支払う |
家賃17.5万円/月共益費20,000円/月 |
|---|---|
初期費用 |
敷金175,000円礼金175,000円保証金-敷引き償却金- |
更新料 |
- |
鍵交換費用 |
- |
室内清掃費用 |
- |
駐車場料金 |
44,000円 |
損保・ |
借家賠付きの火災保険にご加入いただきます。 |
保証会社 |
加入要 保証会社利用料:日本セーフティー 初年度保証料:賃料等合計額の50%(最低保証料2万円)2年目以降:1年毎1万円 |
契約期間 |
- |
入居可能日 |
2026年01月下旬 |
フリーレント期間 |
- |
取引形態 |
一般媒介 |
備考 |
- |
ザ・パークハビオSOHO祐天寺 705号室の建物情報
建物名称 |
ザ・パークハビオSOHO祐天寺 |
|---|---|
最寄駅 |
|
所在地 |
東京都目黒区祐天寺 |
階層 |
7階部分(地上7階建) |
構造 |
RC |
築年数 |
2023年5月(築3年) |
駐車場 |
44,000円 |
小学校学区 |
上目黒小学校 |
中学校学区 |
目黒中央中学校 |
- 学区データについて
- ※学区データは必ずしも正確とは限りません。詳細に関しては最寄店舗または各自治体の教育委員会に必ずご確認ください。
無料この物件に問い合わせ
- ザ・パークハビオSOHO祐天寺 705号室

-
17.5万円
(共益費
20,000円)
- 敷
- 175,000円
- 礼
- 175,000円
- 保
- -
- 償
- -
ザ・パークハビオSOHO祐天寺 705号室の物件のお問い合わせ先・取り扱い店舗
ハウスコム 五反田店
- アクセス
-
山手線「五反田駅」東口徒歩1分
都営浅草線「五反田駅」A6出口より徒歩1分
- 住所
- 〒141-0022 東京都品川区東五反田1丁目12−12 落合ビル 2F
- 営業時間
- 10:00~18:00
- 定休日
- なし(年末年始は休業)
- 営業エリア
- 品川区,大田区,港区,目黒区
- 取引態様
- 賃貸仲介業



















