ラフィーネ阿佐谷 205号室(2階/2LDK)の賃貸物件(賃貸マンション)
東京都杉並区にあるラフィーネ阿佐谷 205号室は独立洗面台、宅配ボックス、ルーフバルコニー、フローリング、インターネット可などが特徴です。最寄り駅の中央本線(JR東日本)阿佐ケ谷駅から徒歩5分です。ラフィーネ阿佐谷 205号室の詳細はハウスコム 三鷹店までお気軽にお問い合わせください!
情報更新日:
次回更新予定日:
※次回更新予定日について:お店側では順次空室確認を行っていますが、次回更新予定日までに空室確認が行えない場合には、この物件情報は自動的に削除されます。
ラフィーネ阿佐谷 205号室の賃貸物件部屋概要
家賃 |
18.2万円
初期費用を |
|---|---|
共益費 |
12,000円
入居可能時期 |
敷金/礼金 |
1ヶ月 / 1.2ヶ月 |
保証金/ |
- / - |
最寄駅 |
|
所在地 |
東京都杉並区阿佐谷北 |
部屋番号 |
205号室 |
間取り |
2LDK |
専有面積 |
55.91㎡ |
築年数 |
1997年3月(築29年) |
階数 |
2階部分(地上10階建) |
方位・位置 |
東 / その他 |
物件種別 |
賃貸マンション |
構造 |
SRC |
駐車場 |
無 |
小学校学区 |
杉並第一小学校 |
中学校学区 |
杉森中学校 |
他の空き部屋 |
***号室 |
- 学区データについて
- ※学区データは必ずしも正確とは限りません。詳細に関しては最寄店舗または各自治体の教育委員会に必ずご確認ください。
ラフィーネ阿佐谷 205号室の特徴
契約条件
楽器演奏もご相談ください。
セキュリティ
この物件の建物には、オートロックや宅配ボックスが設置されております。
室内設備
システムキッチンが備え付けられています。 お風呂とトイレは別です。お風呂には、追い焚き機能が備わっています。 女性に嬉しい設備の独立した洗面化粧台があります。 洗濯に便利な設備として、室内洗濯機置場があります。
居室状況
お部屋の床は、フローリングとなっており、エアコンが設置されています。
建物設備共用部分
居室外の専有スペースとして、洗濯物を干すなどの用途として利用できるバルコニーがあります。 建物の共用スペースに、日々の出入に便利なエレベーターや、急な外出や不在がちのご家庭の荷物受け取りに便利な宅配ボックスが設置されています。
周辺施設
この物件の学区は、杉並第一小学校区・杉森中学校区です。
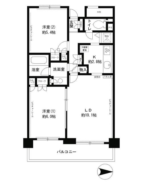
ラフィーネ阿佐谷 205号室の間取り
間取り:2LDK
間取詳細:2LDK
専有面積:55.91㎡
方位:東
部屋位置:その他
ラフィーネ阿佐谷 205号室の設備
キッチン
システムキッチン
バス・トイレ
バス・トイレ別
追い焚き
独立洗面台
玄関
オートロック
宅配ボックス
バルコニー
バルコニー
ルーフバルコニー
室内設備
エアコン
フローリング
室内洗濯機置場
位置・立地
2階以上
インフラ
インターネット可
CATV
BS
建物設備
エレベーター
入居条件
楽器可・相談
ライフステージ
一人暮らしに人気の設備
カップルに人気の設備
家族に人気の設備
夫婦に人気の設備
三世代で人気の設備
こだわり
外で子どもと遊びたい
雨の日でも洗濯したい
洋室で暮らしたい
趣味
ガーデニングが好き
ラフィーネ阿佐谷 205号室の賃貸契約情報
毎月支払う |
家賃18.2万円/月共益費12,000円/月 |
|---|---|
初期費用 |
敷金1ヶ月 (18.2万円)礼金1.2ヶ月 (21.84万円)保証金-敷引き償却金- |
更新料 |
182,000円 |
鍵交換費用 |
- |
室内清掃費用 |
- |
室内清掃費 |
104,551円 |
鍵交換費 |
33,000円 |
駐車場料金 |
無 |
損保・ |
借家賠付きの火災保険にご加入いただきます。 |
保証会社 |
加入要 保証会社利用料:保証会社名:クレディセゾン・レジデントアシスタンス株式会社/初回保証委託料(最低15000円):月額賃料等の50%、 2年目以降:10000円/年 |
契約期間 |
2年 |
入居可能日 |
2026年03月下旬 |
フリーレント期間 |
- |
取引形態 |
一般媒介 |
備考 |
- |
ラフィーネ阿佐谷 205号室の建物情報
建物名称 |
ラフィーネ阿佐谷 |
|---|---|
最寄駅 |
|
所在地 |
東京都杉並区阿佐谷北 |
階層 |
2階部分(地上10階建) |
構造 |
SRC |
築年数 |
1997年3月(築29年) |
駐車場 |
無 |
小学校学区 |
杉並第一小学校 |
中学校学区 |
杉森中学校 |
- 学区データについて
- ※学区データは必ずしも正確とは限りません。詳細に関しては最寄店舗または各自治体の教育委員会に必ずご確認ください。
無料この物件に問い合わせ
- ラフィーネ阿佐谷 205号室

-
18.2万円
(共益費
12,000円)
- 敷
- 1ヶ月
- 礼
- 1.2ヶ月
- 保
- -
- 償
- -
ラフィーネ阿佐谷 205号室の物件のお問い合わせ先・取り扱い店舗
ハウスコム 三鷹店
- アクセス
-
中央本線(JR東日本)「三鷹駅」南口徒歩1分
- 住所
- 〒181-0013 東京都三鷹市下連雀3丁目45−2 麻沼ビル 1階
- 営業時間
- 10:00~18:00
- 定休日
- なし
- 営業エリア
- 三鷹市、武蔵野市、小金井市、杉並区、調布市、西東京市、練馬区、世田谷区
- 取引態様
- 賃貸仲介業






















