(仮称)リブリ・葛飾区西亀有二丁目 202号室(2階/1LDK)の賃貸物件(賃貸アパート)
東京都葛飾区にある(仮称)リブリ・葛飾区西亀有二丁目 202号室は独立洗面台、クローゼット、ルーフバルコニー、フローリング、保証人不要などが特徴です。最寄り駅の東京メトロ 千代田線綾瀬駅から徒歩17分です。(仮称)リブリ・葛飾区西亀有二丁目 202号室の詳細はハウスコム 綾瀬店までお気軽にお問い合わせください!
情報更新日:
次回更新予定日:
※次回更新予定日について:お店側では順次空室確認を行っていますが、次回更新予定日までに空室確認が行えない場合には、この物件情報は自動的に削除されます。
(仮称)リブリ・葛飾区西亀有二丁目 202号室の賃貸物件部屋概要
家賃 |
11.6万円
初期費用を |
|---|---|
共益費 |
3,000円
入居可能時期 |
敷金/礼金 |
- / 1ヶ月 |
保証金/ |
- / - |
最寄駅 |
|
所在地 |
東京都葛飾区西亀有 |
部屋番号 |
202号室 |
間取り |
1LDK |
専有面積 |
30.43㎡ |
築年数 |
新築 |
階数 |
2階部分(地上3階建) |
方位・位置 |
西 / その他 |
物件種別 |
賃貸アパート |
構造 |
鉄骨造 |
駐車場 |
無 |
小学校学区 |
西亀有小学校 |
中学校学区 |
青葉中学校 |
他の空き部屋 |
101号室 102号室 103号室 105号室 201号室 203号室 205号室 301号室 302号室 303号室 305号室 |
- 学区データについて
- ※学区データは必ずしも正確とは限りません。詳細に関しては最寄店舗または各自治体の教育委員会に必ずご確認ください。
(仮称)リブリ・葛飾区西亀有二丁目 202号室の特徴
-
一人暮らしに人気の設備

-
カップルに人気の設備

-
家族に人気の設備

-
夫婦に人気の設備

-
三世代で人気の設備

-
セキュリティ対策重視

-
外で子どもと遊びたい

-
雨の日でも洗濯したい

-
洋室で暮らしたい

-
ガーデニングが好き

契約条件
ご契約時に保証人は不要です。 敷金が無料なため、初期費用が比較的安くなる傾向にあります。
セキュリティ
この物件の建物には、オートロックや防犯カメラや宅配ボックスが設置されており、来客時には居室内のテレビモニターにて訪問者の顔を確認することができます。
室内設備
システムキッチンには、IHコンロが備え付けられています。 お風呂とトイレは別です。お風呂には、追い焚き機能が備わっています。 トイレは、温水洗浄便座機能付きになります。 女性に嬉しい設備のシャワーの付いている洗面化粧台があります。 洗濯に便利な設備として、室内洗濯機置場があります。浴室乾燥機も設置されているので、梅雨時の生乾き臭も比較的防ぐことができます。
居室状況
お部屋の床は、フローリングとなっており、エアコンが設置されています。 収納スペースとして、基本的な居室にクローゼットを設置、玄関にはシューズボックスがあります。
建物設備共用部分
居室外の専有スペースとして、洗濯物を干すなどの用途として利用できるバルコニーがあります。 建物の共用スペースに、いざという時の防犯カメラや、急な外出や不在がちのご家庭の荷物受け取りに便利な宅配ボックスが設置されています。 駐輪場が利用できます。
周辺施設
この物件の学区は、西亀有小学校区・青葉中学校区です。
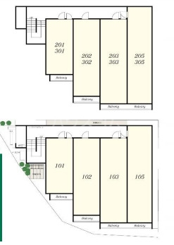
(仮称)リブリ・葛飾区西亀有二丁目 202号室の間取り
間取り:1LDK
間取詳細:1LDK
専有面積:30.43㎡
方位:西
部屋位置:その他
(仮称)リブリ・葛飾区西亀有二丁目 202号室の設備
キッチン
システムキッチン
IHコンロ
バス・トイレ
バス・トイレ別
追い焚き
浴室乾燥機
温水洗浄便座
独立洗面台
シャワー付洗面化粧台
玄関
TVモニタ付インターホン
オートロック
宅配ボックス
収納
クローゼット
シューズボックス
バルコニー
バルコニー
ルーフバルコニー
室内設備
エアコン
フローリング
室内洗濯機置場
位置・立地
2階以上
インフラ
インターネット可
BS
都市ガス
建物設備
防犯カメラ
駐輪場
入居条件
オンライン相談可
オンライン内見可
保証人不要
ライフステージ
一人暮らしに人気の設備
カップルに人気の設備
家族に人気の設備
夫婦に人気の設備
三世代で人気の設備
こだわり
セキュリティ対策重視
外で子どもと遊びたい
雨の日でも洗濯したい
洋室で暮らしたい
趣味
ガーデニングが好き
(仮称)リブリ・葛飾区西亀有二丁目 202号室の賃貸契約情報
毎月支払う |
家賃11.6万円/月共益費3,000円/月 |
|---|---|
初期費用 |
敷金-礼金1ヶ月 (11.6万円)保証金-敷引き償却金- |
更新料 |
116,000円 |
鍵交換費用 |
24,200円 |
室内清掃費用 |
60,500円 |
リブリクラブ |
7,700円 |
駐車場料金 |
無 |
損保・ |
借家賠付きの火災保険にご加入いただきます。 |
保証会社 |
加入要 保証会社利用料:初回保証料:100% 月額保証料:1.1% |
契約期間 |
定期借家 2年 |
入居可能日 |
2026年02月下旬 |
フリーレント期間 |
- |
取引形態 |
一般媒介 |
備考 |
- |
(仮称)リブリ・葛飾区西亀有二丁目 202号室の建物情報
建物名称 |
(仮称)リブリ・葛飾区西亀有二丁目 |
|---|---|
最寄駅 |
|
所在地 |
東京都葛飾区西亀有 |
階層 |
2階部分(地上3階建) |
構造 |
鉄骨造 |
築年数 |
新築 |
駐車場 |
無 |
小学校学区 |
西亀有小学校 |
中学校学区 |
青葉中学校 |
- 学区データについて
- ※学区データは必ずしも正確とは限りません。詳細に関しては最寄店舗または各自治体の教育委員会に必ずご確認ください。
無料この物件に問い合わせ
- (仮称)リブリ・葛飾区西亀有二丁目 202号室

-
11.6万円
(共益費
3,000円)
- 敷
- -
- 礼
- 1ヶ月
- 保
- -
- 償
- -
(仮称)リブリ・葛飾区西亀有二丁目 202号室の物件のお問い合わせ先・取り扱い店舗
ハウスコム 綾瀬店
- アクセス
-
東京メトロ 千代田線「綾瀬駅」西口徒歩1分
常磐線各駅停車(千代田線直通)「綾瀬駅」西口徒歩1分
- 住所
- 〒120-0005 東京都足立区綾瀬4丁目7−5 石崎ビル 1階
- 営業時間
- 10:00~18:00
- 定休日
- 水曜日
- 営業エリア
- 足立区・葛飾区・八潮市・三郷市・松戸市
- 取引態様
- 賃貸仲介業






