桑名ビル 301号室(3階/1LDK)の賃貸物件(賃貸マンション)
東京都目黒区にある桑名ビル 301号室はTVモニタ付インターホン、エアコン、室内洗濯機置場、最上階、都市ガスなどが特徴です。最寄り駅の東急目黒線洗足駅から徒歩1分です。桑名ビル 301号室の詳細はハウスコム 自由が丘店までお気軽にお問い合わせください!
情報更新日:
次回更新予定日:
※次回更新予定日について:お店側では順次空室確認を行っていますが、次回更新予定日までに空室確認が行えない場合には、この物件情報は自動的に削除されます。
桑名ビル 301号室の賃貸物件部屋概要
家賃 |
11.8万円
初期費用を |
|---|---|
共益費 |
6,000円
入居可能時期 |
敷金/礼金 |
1ヶ月 / 1ヶ月 |
保証金/ |
- / - |
最寄駅 |
|
所在地 |
東京都目黒区洗足 |
部屋番号 |
301号室 |
間取り |
1LDK |
専有面積 |
51.00㎡ |
築年数 |
1981年2月(築45年) |
階数 |
3階部分(地上3階地下1階建) |
方位・位置 |
ー / その他 |
物件種別 |
賃貸マンション |
構造 |
RC |
駐車場 |
- |
小学校学区 |
原町小学校 |
中学校学区 |
第九中学校 |
他の空き部屋 |
ー |
- 学区データについて
- ※学区データは必ずしも正確とは限りません。詳細に関しては最寄店舗または各自治体の教育委員会に必ずご確認ください。
桑名ビル 301号室の特徴
セキュリティ
来客時には居室内のテレビモニターにて訪問者の顔を確認することができます。
室内設備
洗濯に便利な設備として、室内洗濯機置場があります。
居室状況
お部屋の床は、フローリングとなっており、エアコンが設置されています。 収納スペースとして、基本的な居室にクローゼットがあります。
周辺施設
この物件の学区は、原町小学校区・第九中学校区です。
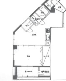
桑名ビル 301号室の間取り
間取り:1LDK
間取詳細:1LDK
専有面積:51.00㎡
方位:ー
部屋位置:その他
桑名ビル 301号室の設備
バス・トイレ
バス・トイレ別
玄関
TVモニタ付インターホン
収納
クローゼット
室内設備
エアコン
フローリング
室内洗濯機置場
位置・立地
2階以上
最上階
インフラ
都市ガス
ライフステージ
一人暮らしに人気の設備
カップルに人気の設備
家族に人気の設備
夫婦に人気の設備
三世代で人気の設備
こだわり
雨の日でも洗濯したい
洋室で暮らしたい
桑名ビル 301号室の賃貸契約情報
毎月支払う |
家賃11.8万円/月共益費6,000円/月 |
|---|---|
初期費用 |
敷金1ヶ月 (11.8万円)礼金1ヶ月 (11.8万円)保証金-敷引き償却金- |
更新料 |
118,000円 |
鍵交換費用 |
22,000円 |
室内清掃費用 |
- |
室内クリーニング費(退去時) |
55,000円 |
駐車場料金 |
- |
損保・ |
借家賠付きの火災保険にご加入いただきます。 |
保証会社 |
加入要 保証会社利用料:初回保証料:月額総賃料の50%~ 更新保証委託料:1万円/年 保証会社によって保証料の増減あり |
契約期間 |
定期借家 2年 |
入居可能日 |
2026年02月下旬 |
フリーレント期間 |
- |
取引形態 |
一般媒介 |
備考 |
- |
桑名ビル 301号室の建物情報
建物名称 |
桑名ビル |
|---|---|
最寄駅 |
|
所在地 |
東京都目黒区洗足 |
階層 |
3階部分(地上3階地下1階建) |
構造 |
RC |
築年数 |
1981年2月(築45年) |
駐車場 |
- |
小学校学区 |
原町小学校 |
中学校学区 |
第九中学校 |
- 学区データについて
- ※学区データは必ずしも正確とは限りません。詳細に関しては最寄店舗または各自治体の教育委員会に必ずご確認ください。
無料この物件に問い合わせ
- 桑名ビル 301号室

-
11.8万円
(共益費
6,000円)
- 敷
- 1ヶ月
- 礼
- 1ヶ月
- 保
- -
- 償
- -
桑名ビル 301号室の物件のお問い合わせ先・取り扱い店舗
ハウスコム 自由が丘店
水曜日営業
土日営業
年中無休(年末年始などを除く)
- アクセス
-
東急東横線「自由が丘駅」徒歩3分
東急大井町線「自由が丘駅」徒歩3分
- 住所
- 〒152-0035 東京都目黒区自由が丘1丁目14ー14 原田ビル1階
- 営業時間
- 10:00~18:00
- 定休日
- なし
- 営業エリア
- 世田谷区,大田区,目黒区
- 取引態様
- 賃貸仲介業
お問い合わせNo. HC4-5322186-301-0096








