ルミーク雪谷 101号室(2LDK)の賃貸物件(賃貸マンション)
東京都大田区にあるルミーク雪谷 101号室は食洗機、バス・トイレ別、浴室乾燥機、24時間ゴミ出しOK、バイク置き場などが特徴です。最寄り駅の東急池上線洗足池駅から徒歩6分です。ルミーク雪谷 101号室の詳細はハウスコム 蒲田店までお気軽にお問い合わせください!
情報更新日:
次回更新予定日:
※次回更新予定日について:お店側では順次空室確認を行っていますが、次回更新予定日までに空室確認が行えない場合には、この物件情報は自動的に削除されます。
ルミーク雪谷 101号室の賃貸物件部屋概要
家賃 |
53.5万円
初期費用を |
|---|---|
共益費 |
20,000円
入居可能時期 |
敷金/礼金 |
- / - |
保証金/ |
- / - |
最寄駅 |
|
所在地 |
東京都大田区東雪谷 |
部屋番号 |
101号室 |
間取り |
2LDK |
専有面積 |
110.72㎡ |
築年数 |
2025年6月 |
階数 |
地上4階地下1階建 |
方位・位置 |
ー / その他 |
物件種別 |
賃貸マンション |
構造 |
RC |
駐車場 |
空無し |
小学校学区 |
小池小学校 |
中学校学区 |
石川台中学校 |
他の空き部屋 |
301号室 403号室 |
- 学区データについて
- ※学区データは必ずしも正確とは限りません。詳細に関しては最寄店舗または各自治体の教育委員会に必ずご確認ください。
ルミーク雪谷 101号室の特徴
契約条件
この物件は、2人入居もご契約できます。 ペットの飼育もご相談ください。 敷金と礼金が無料なため、初期費用が比較的安くなる傾向にあります。
セキュリティ
この物件の建物には、オートロックや防犯カメラや宅配ボックスが設置されており、来客時には居室内のテレビモニターにて訪問者の顔を確認することができます。
室内設備
システムキッチンには、キッチン設備として食洗機が備え付けられています。 お風呂とトイレは別です。お風呂には、追い焚き機能が備わっています。 トイレは、温水洗浄便座機能付きになります。 洗濯に便利な設備として、室内洗濯機置場があります。浴室乾燥機も設置されているので、梅雨時の生乾き臭も比較的防ぐことができます。
居室状況
お部屋の床は、フローリングとなっており、エアコンが設置されています。 収納スペースとして、通常よりも収納力の高いウォークインクローゼットがあります。
建物設備共用部分
建物の共用スペースに、日々の出入に便利なエレベーターや、いざという時の防犯カメラや、急な外出や不在がちのご家庭の荷物受け取りに便利な宅配ボックスや、居室内を常に清潔に保てる24時間利用可能なゴミ捨て置き場が設置されています。 駐輪場、バイク置き場が利用できます。
周辺施設
この物件の学区は、小池小学校区・石川台中学校区です。
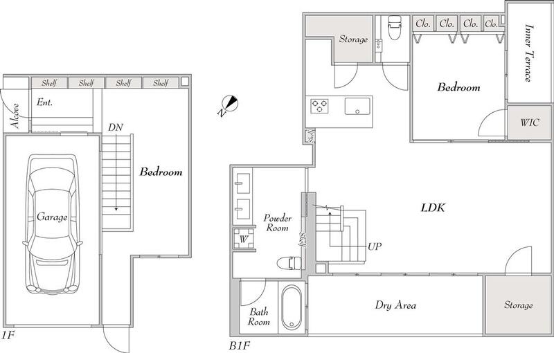
ルミーク雪谷 101号室の間取り
間取り:2LDK
間取詳細:2LDK
専有面積:110.72㎡
方位:ー
部屋位置:その他
ルミーク雪谷 101号室の設備
キッチン
システムキッチン
食洗機
バス・トイレ
バス・トイレ別
追い焚き
浴室乾燥機
温水洗浄便座
玄関
TVモニタ付インターホン
オートロック
宅配ボックス
収納
ウォークインクローゼット
室内設備
エアコン
フローリング
室内洗濯機置場
インフラ
都市ガス
建物設備
エレベーター
防犯カメラ
24時間ゴミ出しOK
駐輪場
バイク置き場
メゾネット
入居条件
ペット可・相談
2人入居可
即入居可
ライフステージ
一人暮らしに人気の設備
カップルに人気の設備
家族に人気の設備
夫婦に人気の設備
三世代で人気の設備
こだわり
タイパ重視
雨の日でも洗濯したい
洋室で暮らしたい
趣味
服やおしゃれが好き
ルミーク雪谷 101号室の賃貸契約情報
毎月支払う |
家賃53.5万円/月共益費20,000円/月 |
|---|---|
初期費用 |
敷金-礼金-保証金-敷引き償却金- |
更新料 |
535,000円 |
鍵交換費用 |
- |
室内清掃費用 |
- |
駐車場料金 |
空無し |
損保・ |
借家賠付きの火災保険にご加入いただきます。 |
保証会社 |
|
契約期間 |
2年 |
入居可能日 |
即入居可 |
フリーレント期間 |
- |
取引形態 |
一般媒介 |
備考 |
- |
ルミーク雪谷 101号室の建物情報
建物名称 |
ルミーク雪谷 |
|---|---|
最寄駅 |
|
所在地 |
東京都大田区東雪谷 |
階層 |
地上4階地下1階建 |
構造 |
RC |
築年数 |
2025年6月 |
駐車場 |
空無し |
小学校学区 |
小池小学校 |
中学校学区 |
石川台中学校 |
- 学区データについて
- ※学区データは必ずしも正確とは限りません。詳細に関しては最寄店舗または各自治体の教育委員会に必ずご確認ください。
無料この物件に問い合わせ
- ルミーク雪谷 101号室

-
53.5万円
(共益費
20,000円)
- 敷
- -
- 礼
- -
- 保
- -
- 償
- -
ルミーク雪谷 101号室の物件のお問い合わせ先・取り扱い店舗
ハウスコム 蒲田店
- アクセス
-
京浜東北・根岸線「蒲田駅」西口徒歩1分
- 住所
- 〒144-0051 東京都大田区西蒲田7丁目5−8 コパンビル 1階
- 営業時間
- 10:00~18:00
- 定休日
- なし
- 営業エリア
- 大田区、品川区、川崎市
- 取引態様
- 賃貸仲介業































