スカイコート小竹向原 304号室(3階/1K)の賃貸物件(賃貸マンション)
東京都板橋区にあるスカイコート小竹向原 304号室は浴室乾燥機、フローリング、エレベーター、24時間ゴミ出しOK、オンライン相談可などが特徴です。最寄り駅の東京メトロ 副都心線小竹向原駅から徒歩7分です。スカイコート小竹向原 304号室の詳細はハウスコム 池袋西口店までお気軽にお問い合わせください!
情報更新日:
次回更新予定日:
※次回更新予定日について:お店側では順次空室確認を行っていますが、次回更新予定日までに空室確認が行えない場合には、この物件情報は自動的に削除されます。
スカイコート小竹向原 304号室の賃貸物件部屋概要
家賃 |
9.2万円
初期費用を |
|---|---|
共益費 |
8,800円
入居可能時期 |
敷金/礼金 |
1ヶ月 / 1ヶ月 |
保証金/ |
- / - |
最寄駅 |
|
所在地 |
東京都板橋区小茂根 |
部屋番号 |
304号室 |
間取り |
1K(洋0) |
専有面積 |
26.27㎡ |
築年数 |
2013年6月(築13年) |
階数 |
3階部分(地上5階建) |
方位・位置 |
南 / その他 |
物件種別 |
賃貸マンション |
構造 |
RC |
駐車場 |
- |
小学校学区 |
上板橋第二小学校 |
中学校学区 |
上板橋第二中学校 |
他の空き部屋 |
501号室 |
- 学区データについて
- ※学区データは必ずしも正確とは限りません。詳細に関しては最寄店舗または各自治体の教育委員会に必ずご確認ください。
スカイコート小竹向原 304号室の特徴
-
一人暮らしに人気の設備

-
カップルに人気の設備

-
家族に人気の設備

-
夫婦に人気の設備

-
三世代で人気の設備

-
セキュリティ対策重視

-
タイパ重視

-
外で子どもと遊びたい

-
雨の日でも洗濯したい

-
洋室で暮らしたい

-
ガーデニングが好き

契約条件
この物件は、外国籍の方もご相談の上、ご契約できます。 また、ご契約時に保証人は不要です。
セキュリティ
この物件の建物には、オートロックや防犯カメラや宅配ボックスが設置されており、来客時には居室内のテレビモニターにて訪問者の顔を確認することができます。
室内設備
システムキッチンには、2つ以上のガスコンロが備え付けられています。 トイレは、温水洗浄便座機能付きになります。 女性に嬉しい設備の独立した洗面化粧台があります。 洗濯に便利な設備として、室内洗濯機置場があります。浴室乾燥機も設置されているので、梅雨時の生乾き臭も比較的防ぐことができます。
居室状況
お部屋の床は、フローリングとなっており、エアコンが設置されています。 収納スペースとして、基本的な居室にクローゼットがあります。
建物設備共用部分
居室外の専有スペースとして、洗濯物を干すなどの用途として利用できるバルコニーがあります。 建物の共用スペースに、日々の出入に便利なエレベーターや、いざという時の防犯カメラや、急な外出や不在がちのご家庭の荷物受け取りに便利な宅配ボックスや、居室内を常に清潔に保てる24時間利用可能なゴミ捨て置き場が設置されています。
周辺施設
この物件の学区は、上板橋第二小学校区・上板橋第二中学校区です。
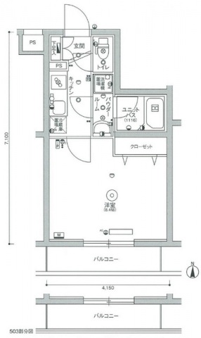
スカイコート小竹向原 304号室の間取り
間取り:1K
間取詳細:1K(洋0)
専有面積:26.27㎡
方位:南
部屋位置:その他
スカイコート小竹向原 304号室の設備
キッチン
システムキッチン
ガスコンロ
ガスコンロ二口以上
バス・トイレ
バス・トイレ別
浴室乾燥機
温水洗浄便座
独立洗面台
玄関
TVモニタ付インターホン
オートロック
宅配ボックス
収納
クローゼット
バルコニー
バルコニー
ルーフバルコニー
室内設備
エアコン
フローリング
室内洗濯機置場
位置・立地
2階以上
南向き
インフラ
インターネット可
CATV
BS
CS
都市ガス
建物設備
エレベーター
防犯カメラ
24時間ゴミ出しOK
入居条件
外国人可・相談
LGBTフレンドリー
オンライン相談可
オンライン内見可
保証人不要
ライフステージ
一人暮らしに人気の設備
カップルに人気の設備
家族に人気の設備
夫婦に人気の設備
三世代で人気の設備
こだわり
セキュリティ対策重視
タイパ重視
外で子どもと遊びたい
雨の日でも洗濯したい
洋室で暮らしたい
趣味
ガーデニングが好き
スカイコート小竹向原 304号室の賃貸契約情報
毎月支払う |
家賃9.2万円/月共益費8,800円/月 |
|---|---|
初期費用 |
敷金1ヶ月 (9.2万円)礼金1ヶ月 (9.2万円)保証金-敷引き償却金- |
更新料 |
92,000円 |
鍵交換費用 |
29,700円 |
室内清掃費用 |
- |
消火剤 |
5,500円 |
駐車場料金 |
- |
損保・ |
借家賠付きの火災保険にご加入いただきます。 |
保証会社 |
加入要 保証会社利用料:〔初回保証委託料〕(家賃+管理費+生活安心パック)×50%〔月々〕総賃料×1.4% |
契約期間 |
2年 |
入居可能日 |
2026年01月下旬 |
フリーレント期間 |
- |
取引形態 |
一般媒介 |
備考 |
1年未満に退去の場合、短期解約違約金(賃料管理費の1ヶ月分)がかかります。退去時に解約事務手数料12000円税がかかります。 |
スカイコート小竹向原 304号室の建物情報
建物名称 |
スカイコート小竹向原 |
|---|---|
最寄駅 |
|
所在地 |
東京都板橋区小茂根 |
階層 |
3階部分(地上5階建) |
構造 |
RC |
築年数 |
2013年6月(築13年) |
駐車場 |
- |
小学校学区 |
上板橋第二小学校 |
中学校学区 |
上板橋第二中学校 |
- 学区データについて
- ※学区データは必ずしも正確とは限りません。詳細に関しては最寄店舗または各自治体の教育委員会に必ずご確認ください。
無料この物件に問い合わせ
- スカイコート小竹向原 304号室

-
9.2万円
(共益費
8,800円)
- 敷
- 1ヶ月
- 礼
- 1ヶ月
- 保
- -
- 償
- -
スカイコート小竹向原 304号室の物件のお問い合わせ先・取り扱い店舗
ハウスコム 池袋西口店
- アクセス
-
山手線「池袋駅」西口徒歩1分
東京メトロ 丸ノ内線「池袋駅」D11出口徒歩1分
- 住所
- 〒171-0021 東京都豊島区西池袋1丁目19−6 松長ビル 2階
- 営業時間
- 10:00~18:00
- 定休日
- なし
- 営業エリア
- 豊島区 板橋区 新宿区 練馬区 文京区
- 取引態様
- 賃貸仲介業

























