コンフォート津田沼弐番館 0610号室(6階/3LDK)の賃貸物件(賃貸マンション)
千葉県習志野市にあるコンフォート津田沼弐番館 0610号室はTVモニタ付インターホン、オートロック、クローゼット、エアコン、照明器具付などが特徴です。最寄り駅の総武線・中央線各駅停車津田沼駅から徒歩3分です。コンフォート津田沼弐番館 0610号室の詳細はハウスコム 船橋店までお気軽にお問い合わせください!
情報更新日:
次回更新予定日:
※次回更新予定日について:お店側では順次空室確認を行っていますが、次回更新予定日までに空室確認が行えない場合には、この物件情報は自動的に削除されます。
コンフォート津田沼弐番館 0610号室の賃貸物件部屋概要
家賃 |
19.1万円
初期費用を |
|---|---|
共益費 |
6,000円
入居可能時期 |
敷金/礼金 |
191,000円 / 191,000円 |
保証金/ |
- / - |
最寄駅 |
|
所在地 |
千葉県習志野市谷津 |
部屋番号 |
0610号室 |
間取り |
3LDK |
専有面積 |
66.80㎡ |
築年数 |
1998年7月(築28年) |
階数 |
6階部分(地上9階建) |
方位・位置 |
ー / その他 |
物件種別 |
賃貸マンション |
構造 |
SRC |
駐車場 |
15,400円 |
小学校学区 |
谷津小学校 |
中学校学区 |
第一中学校 |
他の空き部屋 |
0213号室 ***号室 |
- 学区データについて
- ※学区データは必ずしも正確とは限りません。詳細に関しては最寄店舗または各自治体の教育委員会に必ずご確認ください。
コンフォート津田沼弐番館 0610号室の特徴
-
一人暮らしに人気の設備

-
カップルに人気の設備

-
家族に人気の設備

-
夫婦に人気の設備

-
三世代で人気の設備

-
外で子どもと遊びたい

-
雨の日でも洗濯したい

-
洋室で暮らしたい

-
自炊が多めなあなたに

-
服やおしゃれが好き

-
オークション・通販が好き

-
ガーデニングが好き

セキュリティ
この物件の建物には、オートロックや宅配ボックスが設置されており、来客時には居室内のテレビモニターにて訪問者の顔を確認することができます。
室内設備
システムキッチンには、ガスコンロが設置されており、キッチン設備として食洗機が備え付けられています。 トイレは、温水洗浄便座機能付きになります。 女性に嬉しい設備の独立した洗面化粧台があります。 洗濯に便利な設備として、浴室乾燥機も設置されているので、梅雨時の生乾き臭も比較的防ぐことができます。
居室状況
お部屋の床は、フローリングとなっており、エアコンが設置されています。 照明器具が備え付けられており、インターネットも無料で入居後すぐ生活が始められます。 収納スペースとして、基本的な居室にクローゼットを設置、通常よりも収納力の高いウォークインクローゼット、玄関にはシューズボックスがあります。
建物設備共用部分
居室外の専有スペースとして、洗濯物を干すなどの用途として利用できるバルコニーがあります。 建物の共用スペースに、日々の出入に便利なエレベーターや、急な外出や不在がちのご家庭の荷物受け取りに便利な宅配ボックスが設置されています。 駐輪場が利用できます。
周辺施設
この物件の学区は、谷津小学校区・第一中学校区です。
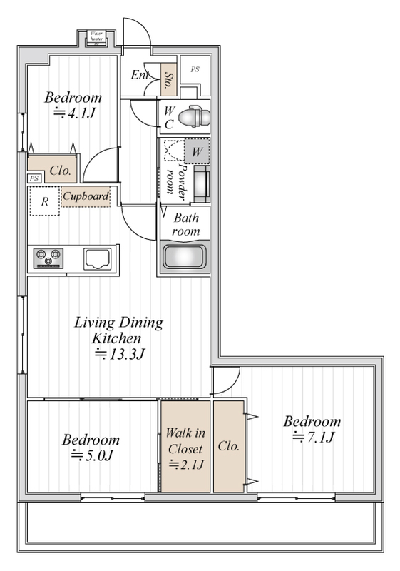
コンフォート津田沼弐番館 0610号室の間取り
間取り:3LDK
間取詳細:3LDK
専有面積:66.80㎡
方位:ー
部屋位置:その他
コンフォート津田沼弐番館 0610号室の設備
キッチン
システムキッチン
ガスコンロ
食洗機
バス・トイレ
浴室乾燥機
温水洗浄便座
独立洗面台
玄関
TVモニタ付インターホン
オートロック
宅配ボックス
収納
クローゼット
ウォークインクローゼット
シューズボックス
バルコニー
バルコニー
ルーフバルコニー
室内設備
エアコン
フローリング
照明器具付
位置・立地
2階以上
インフラ
CATV
都市ガス
建物設備
エレベーター
駐輪場
ライフステージ
一人暮らしに人気の設備
カップルに人気の設備
家族に人気の設備
夫婦に人気の設備
三世代で人気の設備
こだわり
外で子どもと遊びたい
雨の日でも洗濯したい
洋室で暮らしたい
自炊が多めなあなたに
趣味
服やおしゃれが好き
オークション・通販が好き
ガーデニングが好き
お得な条件
インターネット無料
コンフォート津田沼弐番館 0610号室の賃貸契約情報
毎月支払う |
家賃19.1万円/月共益費6,000円/月 |
|---|---|
初期費用 |
敷金191,000円礼金191,000円保証金-敷引き償却金- |
更新料 |
- |
鍵交換費用 |
27,500円 |
室内清掃費用 |
- |
火災保険料 |
24,000円 |
駐車場料金 |
15,400円 |
損保・ |
借家賠付きの火災保険にご加入いただきます。 |
保証会社 |
|
契約期間 |
定期借家 5年 |
入居可能日 |
2026年02月上旬 |
フリーレント期間 |
- |
取引形態 |
一般媒介 |
備考 |
- |
コンフォート津田沼弐番館 0610号室の建物情報
建物名称 |
コンフォート津田沼弐番館 |
|---|---|
最寄駅 |
|
所在地 |
千葉県習志野市谷津 |
階層 |
6階部分(地上9階建) |
構造 |
SRC |
築年数 |
1998年7月(築28年) |
駐車場 |
15,400円 |
小学校学区 |
谷津小学校 |
中学校学区 |
第一中学校 |
- 学区データについて
- ※学区データは必ずしも正確とは限りません。詳細に関しては最寄店舗または各自治体の教育委員会に必ずご確認ください。
無料この物件に問い合わせ
- コンフォート津田沼弐番館 0610号室

-
19.1万円
(共益費
6,000円)
- 敷
- 191,000円
- 礼
- 191,000円
- 保
- -
- 償
- -
コンフォート津田沼弐番館 0610号室の物件のお問い合わせ先・取り扱い店舗
ハウスコム 船橋店
- アクセス
-
総武本線「船橋駅」北口徒歩2分
総武線・中央線各駅停車「船橋駅」北口徒歩2分
- 住所
- 〒273-0005 千葉県船橋市本町6丁目1−1 ニッコービル 2階
- 営業時間
- 10:00~18:00
- 定休日
- なし(年末年始は休業)
- 営業エリア
- 船橋市、鎌ヶ谷市、八千代市,千葉市花見川区,市川市,習志野市
- 取引態様
- 賃貸仲介業


