レオパレスエスポワール 201号室(2階/1K)の賃貸物件(賃貸アパート)
東京都三鷹市にあるレオパレスエスポワール 201号室はバス・トイレ別、宅配ボックス、2階以上、最上階、即入居可などが特徴です。最寄り駅の中央本線(JR東日本)武蔵境駅からバスで10分、西野から徒歩5分です。レオパレスエスポワール 201号室の詳細はハウスコム 武蔵小金井店までお気軽にお問い合わせください!
情報更新日:
次回更新予定日:
※次回更新予定日について:お店側では順次空室確認を行っていますが、次回更新予定日までに空室確認が行えない場合には、この物件情報は自動的に削除されます。
レオパレスエスポワール 201号室の賃貸物件部屋概要
家賃 |
8.3万円
初期費用を |
|---|---|
共益費 |
5,000円
入居可能時期 |
敷金/礼金 |
- / 83,000円 |
保証金/ |
- / - |
最寄駅 |
|
所在地 |
東京都三鷹市深大寺 |
部屋番号 |
201号室 |
間取り |
1K |
専有面積 |
22.35㎡ |
築年数 |
2004年5月(築22年) |
階数 |
2階部分(地上2階建) |
方位・位置 |
ー / その他 |
物件種別 |
賃貸アパート |
構造 |
軽量鉄骨 |
駐車場 |
無 |
小学校学区 |
第二小学校 |
中学校学区 |
第二中学校 |
他の空き部屋 |
101号室 105号室 |
- 学区データについて
- ※学区データは必ずしも正確とは限りません。詳細に関しては最寄店舗または各自治体の教育委員会に必ずご確認ください。
レオパレスエスポワール 201号室の特徴
契約条件
敷金が無料なため、初期費用が比較的安くなる傾向にあります。
セキュリティ
この物件の建物には、宅配ボックスが設置されております。
室内設備
電気コンロが備え付けられています。 洗濯に便利な設備として、室内洗濯機置場があります。
居室状況
エアコンが設置されています。
建物設備共用部分
建物の共用スペースに、急な外出や不在がちのご家庭の荷物受け取りに便利な宅配ボックスが設置されています。
周辺施設
この物件の学区は、第二小学校区・第二中学校区です。
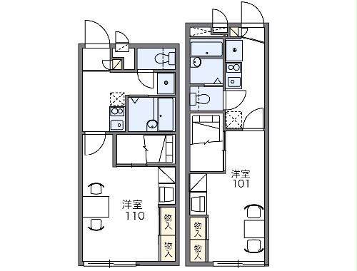
レオパレスエスポワール 201号室の間取り
間取り:1K
間取詳細:1K
専有面積:22.35㎡
方位:ー
部屋位置:その他
レオパレスエスポワール 201号室の設備
キッチン
電気コンロ
バス・トイレ
バス・トイレ別
玄関
宅配ボックス
室内設備
エアコン
室内洗濯機置場
位置・立地
2階以上
最上階
インフラ
インターネット可
CATV
入居条件
即入居可
ライフステージ
一人暮らしに人気の設備
カップルに人気の設備
家族に人気の設備
夫婦に人気の設備
三世代で人気の設備
こだわり
雨の日でも洗濯したい
レオパレスエスポワール 201号室の賃貸契約情報
毎月支払う |
家賃8.3万円/月共益費5,000円/月 |
|---|---|
初期費用 |
敷金-礼金83,000円保証金-敷引き償却金- |
更新料 |
- |
鍵交換費用 |
16,500円 |
室内清掃費用 |
41,800円 |
抗菌施工(任意) |
23,760円 |
駐車場料金 |
無 |
損保・ |
借家賠付きの火災保険にご加入いただきます。 |
保証会社 |
加入要 保証会社利用料:保証料:76190円(契約内容により100~120%で変動有)※記載金額は120%の場合 |
契約期間 |
- |
入居可能日 |
即入居可 |
フリーレント期間 |
- |
取引形態 |
一般媒介 |
備考 |
室内清掃費用 41800円 初期:抗菌施工(任意) 23760円 保証会社利用必須 保証料:76190円(契約内容により100~120%で変動有)記載金額は120%の場合 |
レオパレスエスポワール 201号室の建物情報
建物名称 |
レオパレスエスポワール |
|---|---|
最寄駅 |
|
所在地 |
東京都三鷹市深大寺 |
階層 |
2階部分(地上2階建) |
構造 |
軽量鉄骨 |
築年数 |
2004年5月(築22年) |
駐車場 |
無 |
小学校学区 |
第二小学校 |
中学校学区 |
第二中学校 |
1/7 外観
- 学区データについて
- ※学区データは必ずしも正確とは限りません。詳細に関しては最寄店舗または各自治体の教育委員会に必ずご確認ください。
無料この物件に問い合わせ
- レオパレスエスポワール 201号室

-
8.3万円
(共益費
5,000円)
- 敷
- -
- 礼
- 83,000円
- 保
- -
- 償
- -
レオパレスエスポワール 201号室の物件のお問い合わせ先・取り扱い店舗
ハウスコム 武蔵小金井店
駅徒歩1分以内
駅徒歩3分以内
駅徒歩5分以内
- アクセス
-
中央本線(JR東日本)「武蔵小金井駅」南口徒歩1分
- 住所
- 〒184-0004 東京都小金井市本町6丁目14−45 OSビル 1階
- 営業時間
- 10:00~18:00
- 定休日
- なし
- 営業エリア
- 小金井市、国分寺市、小平市、武蔵野市、三鷹市、府中市、西東京市、国立市
- 取引態様
- 賃貸仲介業
お問い合わせNo. HC5-2076278-201-0143
























