プリンス本町 306号室(3階/1R)の賃貸物件(賃貸マンション)
東京都東村山市にあるプリンス本町 306号室はIHコンロ、バス・トイレ別、ルーフバルコニー、エアコン、2階以上などが特徴です。最寄り駅の西武新宿線東村山駅から徒歩6分です。プリンス本町 306号室の詳細はハウスコム 所沢店までお気軽にお問い合わせください!
情報更新日:
次回更新予定日:
※次回更新予定日について:お店側では順次空室確認を行っていますが、次回更新予定日までに空室確認が行えない場合には、この物件情報は自動的に削除されます。
プリンス本町 306号室の賃貸物件部屋概要
家賃 |
5.2万円
初期費用を |
|---|---|
共益費 |
2,000円
入居可能時期 |
敷金/礼金 |
1ヶ月 / - |
保証金/ |
- / - |
最寄駅 |
|
所在地 |
東京都東村山市本町 |
部屋番号 |
306号室 |
間取り |
1R |
専有面積 |
25.87㎡ |
築年数 |
1987年4月(築39年) |
階数 |
3階部分(地上4階建) |
方位・位置 |
南 / その他 |
物件種別 |
賃貸マンション |
構造 |
RC |
駐車場 |
無 |
小学校学区 |
久米川小学校 |
中学校学区 |
東村山第二中学校 |
他の空き部屋 |
ー |
- 学区データについて
- ※学区データは必ずしも正確とは限りません。詳細に関しては最寄店舗または各自治体の教育委員会に必ずご確認ください。
プリンス本町 306号室の特徴
契約条件
礼金が無料なため、初期費用が比較的安くなる傾向にあります。
室内設備
IHコンロが備え付けられています。 洗濯に便利な設備として、室内洗濯機置場があります。
居室状況
エアコンが設置されています。
建物設備共用部分
居室外の専有スペースとして、洗濯物を干すなどの用途として利用できるバルコニーがあります。 駐輪場が利用できます。
周辺施設
この物件の学区は、久米川小学校区・東村山第二中学校区です。
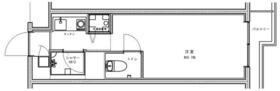
プリンス本町 306号室の間取り
間取り:1R
間取詳細:1R
専有面積:25.87㎡
方位:南
部屋位置:その他
プリンス本町 306号室の設備
キッチン
IHコンロ
バス・トイレ
バス・トイレ別
バルコニー
バルコニー
ルーフバルコニー
室内設備
エアコン
室内洗濯機置場
リノベーション済
位置・立地
2階以上
南向き
インフラ
CATV
建物設備
駐輪場
入居条件
即入居可
ライフステージ
一人暮らしに人気の設備
カップルに人気の設備
家族に人気の設備
夫婦に人気の設備
三世代で人気の設備
こだわり
外で子どもと遊びたい
雨の日でも洗濯したい
コスパ重視のリフォーム部屋
趣味
ガーデニングが好き
プリンス本町 306号室の賃貸契約情報
毎月支払う |
家賃5.2万円/月共益費2,000円/月 |
|---|---|
初期費用 |
敷金1ヶ月 (5.2万円)礼金-保証金-敷引き償却金- |
更新料 |
52,000円 |
鍵交換費用 |
19,800円 |
室内清掃費用 |
- |
駐車場料金 |
無 |
損保・ |
借家賠付きの火災保険にご加入いただきます。 |
保証会社 |
加入要 保証会社利用料:初回50%より 年間保証料10,000円より |
契約期間 |
2年 |
入居可能日 |
即入居可 |
フリーレント期間 |
- |
取引形態 |
一般媒介 |
備考 |
- |
プリンス本町 306号室の建物情報
建物名称 |
プリンス本町 |
|---|---|
最寄駅 |
|
所在地 |
東京都東村山市本町 |
階層 |
3階部分(地上4階建) |
構造 |
RC |
築年数 |
1987年4月(築39年) |
駐車場 |
無 |
小学校学区 |
久米川小学校 |
中学校学区 |
東村山第二中学校 |
- 学区データについて
- ※学区データは必ずしも正確とは限りません。詳細に関しては最寄店舗または各自治体の教育委員会に必ずご確認ください。
無料この物件に問い合わせ
- プリンス本町 306号室

-
5.2万円
(共益費
2,000円)
- 敷
- 1ヶ月
- 礼
- -
- 保
- -
- 償
- -
プリンス本町 306号室の物件のお問い合わせ先・取り扱い店舗
ハウスコム 所沢店
駅徒歩3分以内
駅徒歩5分以内
水曜日営業
- アクセス
-
西武池袋線・豊島線「所沢駅」東口徒歩2分
- 住所
- 〒359-0037 埼玉県所沢市くすのき台1丁目10−6 毛利ビル 2階
- 営業時間
- 10:00~18:00
- 定休日
- なし
- 営業エリア
- 所沢市,入間市,狭山市,飯能市,日高市,東村山市,清瀬市,東大和市,新座市,西東京市,その他隣接近郊エリア
- 取引態様
- 賃貸仲介業
お問い合わせNo. HC4-5324075-306-0021





















