アイル グランデ川口 305号室(3階/1K)の賃貸物件(賃貸マンション)
埼玉県川口市にあるアイル グランデ川口 305号室はガスコンロ、浴室乾燥機、温水洗浄便座、TVモニタ付インターホン、即入居可などが特徴です。最寄り駅の京浜東北・根岸線川口駅から徒歩11分です。アイル グランデ川口 305号室の詳細はハウスコム 川口店までお気軽にお問い合わせください!
情報更新日:
次回更新予定日:
※次回更新予定日について:お店側では順次空室確認を行っていますが、次回更新予定日までに空室確認が行えない場合には、この物件情報は自動的に削除されます。
アイル グランデ川口 305号室の賃貸物件部屋概要
家賃 |
9万円
初期費用を |
|---|---|
共益費 |
19,000円
入居可能時期 |
敷金/礼金 |
- / 1ヶ月 |
保証金/ |
1ヶ月 / - |
最寄駅 |
|
所在地 |
埼玉県川口市飯塚 |
部屋番号 |
305号室 |
間取り |
1K(洋8.1) |
専有面積 |
25.37㎡ |
築年数 |
2025年6月 |
階数 |
3階部分(地上5階建) |
方位・位置 |
北西 / その他 |
物件種別 |
賃貸マンション |
構造 |
RC |
駐車場 |
- |
小学校学区 |
飯塚小学校 |
中学校学区 |
西中学校 |
他の空き部屋 |
107号室 108号室 209号室 210号室 211号室 215号室 310号室 311号室 312号室 313号室 314号室 |
- 学区データについて
- ※学区データは必ずしも正確とは限りません。詳細に関しては最寄店舗または各自治体の教育委員会に必ずご確認ください。
アイル グランデ川口 305号室の特徴
-
一人暮らしに人気の設備

-
カップルに人気の設備

-
家族に人気の設備

-
夫婦に人気の設備

-
三世代で人気の設備

-
セキュリティ対策重視

-
外で子どもと遊びたい

-
雨の日でも洗濯したい

-
洋室で暮らしたい

-
オークション・通販が好き

-
ガーデニングが好き

契約条件
ペットの飼育もご相談ください。 敷金が無料なため、初期費用が比較的安くなる傾向にあります。
セキュリティ
この物件の建物には、オートロックや防犯カメラや宅配ボックスが設置されており、来客時には居室内のテレビモニターにて訪問者の顔を確認することができます。
室内設備
システムキッチンには、2つ以上のガスコンロが備え付けられています。 トイレは、温水洗浄便座機能付きになります。 女性に嬉しい設備の独立した洗面化粧台があります。 洗濯に便利な設備として、室内洗濯機置場があります。浴室乾燥機も設置されているので、梅雨時の生乾き臭も比較的防ぐことができます。
居室状況
お部屋の床は、フローリングとなっており、エアコンが設置されています。 インターネットも無料で入居後すぐ生活が始められます。 収納スペースとして、玄関にはシューズボックスがあります。
建物設備共用部分
居室外の専有スペースとして、洗濯物を干すなどの用途として利用できるバルコニーがあります。 建物の共用スペースに、日々の出入に便利なエレベーターや、いざという時の防犯カメラや、急な外出や不在がちのご家庭の荷物受け取りに便利な宅配ボックスが設置されています。
周辺施設
この物件の学区は、飯塚小学校区・西中学校区です。
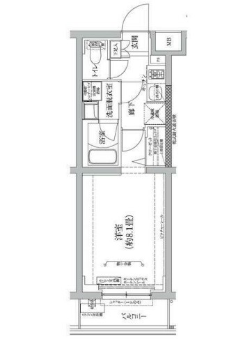
アイル グランデ川口 305号室の間取り
間取り:1K
間取詳細:1K(洋8.1)
専有面積:25.37㎡
方位:北西
部屋位置:その他
アイル グランデ川口 305号室の設備
キッチン
システムキッチン
ガスコンロ
ガスコンロ二口以上
バス・トイレ
バス・トイレ別
浴室乾燥機
温水洗浄便座
独立洗面台
玄関
TVモニタ付インターホン
オートロック
宅配ボックス
収納
シューズボックス
バルコニー
バルコニー
ルーフバルコニー
室内設備
エアコン
フローリング
室内洗濯機置場
位置・立地
2階以上
インフラ
インターネット可
BS
CS
都市ガス
建物設備
エレベーター
防犯カメラ
入居条件
ペット可・相談
即入居可
ライフステージ
一人暮らしに人気の設備
カップルに人気の設備
家族に人気の設備
夫婦に人気の設備
三世代で人気の設備
こだわり
セキュリティ対策重視
外で子どもと遊びたい
雨の日でも洗濯したい
洋室で暮らしたい
趣味
オークション・通販が好き
ガーデニングが好き
お得な条件
インターネット無料
アイル グランデ川口 305号室の賃貸契約情報
毎月支払う |
家賃9万円/月共益費19,000円/月 |
|---|---|
初期費用 |
敷金-礼金1ヶ月 (9万円)保証金1ヶ月敷引き償却金- |
更新料 |
135,000円 |
鍵交換費用 |
- |
室内清掃費用 |
- |
24Hサポート |
17,000円 |
駐車場料金 |
- |
損保・ |
借家賠付きの火災保険にご加入いただきます。 |
保証会社 |
加入要 保証会社利用料:初回50%年10,000円or初回50%月々800円 |
契約期間 |
2年 |
入居可能日 |
即入居可 |
フリーレント期間 |
- |
取引形態 |
一般媒介 |
備考 |
ペット飼育時保証金1.5ヶ月増 ペット飼育時敷金積み増し料金(償却)有り 短期解約違約金:2年未満解約時総賃料1ヶ月分・1年未満解約時総賃料2ヶ月分 |
アイル グランデ川口 305号室の建物情報
建物名称 |
アイル グランデ川口 |
|---|---|
最寄駅 |
|
所在地 |
埼玉県川口市飯塚 |
階層 |
3階部分(地上5階建) |
構造 |
RC |
築年数 |
2025年6月 |
駐車場 |
- |
小学校学区 |
飯塚小学校 |
中学校学区 |
西中学校 |
- 学区データについて
- ※学区データは必ずしも正確とは限りません。詳細に関しては最寄店舗または各自治体の教育委員会に必ずご確認ください。
無料この物件に問い合わせ
- アイル グランデ川口 305号室

-
9万円
(共益費
19,000円)
- 敷
- -
- 礼
- 1ヶ月
- 保
- 1ヶ月
- 償
- -
アイル グランデ川口 305号室の物件のお問い合わせ先・取り扱い店舗
ハウスコム 川口店
- アクセス
-
京浜東北・根岸線「川口駅」東口徒歩1分
- 住所
- 〒332-0017 埼玉県川口市栄町3丁目5−1 高梨ビル 3F
- 営業時間
- 10:00~18:00
- 定休日
- なし(年末年始休業)
- 営業エリア
- 川口市・戸田市・蕨市・さいたま市・東京都北区
- 取引態様
- 賃貸仲介業


















