Le Parc 相模原 207号室(2階/1K)の賃貸物件(賃貸アパート)
神奈川県相模原市南区にあるLe Parc 相模原 207号室はバス・トイレ別、独立洗面台、TVモニタ付インターホン、ルーフバルコニー、2階以上などが特徴です。最寄り駅の小田急江ノ島線東林間駅から徒歩11分です。Le Parc 相模原 207号室の詳細はハウスコム 相模大野店までお気軽にお問い合わせください!
情報更新日:
次回更新予定日:
※次回更新予定日について:お店側では順次空室確認を行っていますが、次回更新予定日までに空室確認が行えない場合には、この物件情報は自動的に削除されます。
Le Parc 相模原 207号室の賃貸物件部屋概要
家賃 |
6.6万円
初期費用を |
|---|---|
共益費 |
3,000円
入居可能時期 |
敷金/礼金 |
- / 0.5ヶ月 |
保証金/ |
- / - |
最寄駅 |
|
所在地 |
神奈川県相模原市南区東林間 |
部屋番号 |
207号室 |
間取り |
1K(洋8.4・K1.8) |
専有面積 |
26.08㎡ |
築年数 |
2017年9月(築9年) |
階数 |
2階部分(地上3階建) |
方位・位置 |
南東 / 角部屋 |
物件種別 |
賃貸アパート |
構造 |
鉄骨造 |
駐車場 |
- |
小学校学区 |
東林小学校 |
中学校学区 |
東林中学校 |
他の空き部屋 |
ー |
- 学区データについて
- ※学区データは必ずしも正確とは限りません。詳細に関しては最寄店舗または各自治体の教育委員会に必ずご確認ください。
Le Parc 相模原 207号室の特徴
契約条件
ご契約時に保証人は不要です。 敷金が無料なため、初期費用が比較的安くなる傾向にあります。
セキュリティ
来客時には居室内のテレビモニターにて訪問者の顔を確認することができます。
室内設備
システムキッチンには、2つ以上のガスコンロが備え付けられています。 トイレは、温水洗浄便座機能付きになります。 女性に嬉しい設備のシャワーの付いている洗面化粧台があります。 洗濯に便利な設備として、室内洗濯機置場があります。浴室乾燥機も設置されているので、梅雨時の生乾き臭も比較的防ぐことができます。
居室状況
お部屋の床は、フローリングとなっており、エアコンが設置されています。 収納スペースとして、基本的な居室にクローゼットを設置、玄関にはシューズボックスがあります。
建物設備共用部分
居室外の専有スペースとして、洗濯物を干すなどの用途として利用できるバルコニーがあります。 駐輪場が利用できます。
周辺施設
この物件の学区は、東林小学校区・東林中学校区です。
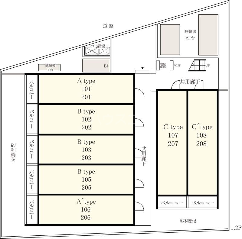
Le Parc 相模原 207号室の間取り
間取り:1K
間取詳細:1K(洋8.4・K1.8)
専有面積:26.08㎡
方位:南東
部屋位置:角部屋
Le Parc 相模原 207号室の設備
キッチン
システムキッチン
ガスコンロ
ガスコンロ二口以上
バス・トイレ
バス・トイレ別
浴室乾燥機
温水洗浄便座
独立洗面台
シャワー付洗面化粧台
玄関
TVモニタ付インターホン
収納
クローゼット
シューズボックス
バルコニー
バルコニー
ルーフバルコニー
室内設備
エアコン
フローリング
室内洗濯機置場
位置・立地
2階以上
角部屋
インフラ
インターネット可
都市ガス
建物設備
駐輪場
入居条件
オンライン相談可
保証人不要
ライフステージ
一人暮らしに人気の設備
カップルに人気の設備
家族に人気の設備
夫婦に人気の設備
三世代で人気の設備
こだわり
外で子どもと遊びたい
雨の日でも洗濯したい
洋室で暮らしたい
趣味
ガーデニングが好き
Le Parc 相模原 207号室の賃貸契約情報
毎月支払う |
家賃6.6万円/月共益費3,000円/月 |
|---|---|
初期費用 |
敷金-礼金0.5ヶ月 (3.3万円)保証金-敷引き償却金- |
更新料 |
66,000円 |
鍵交換費用 |
- |
室内清掃費用 |
- |
駐車場料金 |
- |
損保・ |
借家賠付きの火災保険にご加入いただきます。 |
保証会社 |
加入要 保証会社利用料:初回保証料 賃料合計の50% 月額:賃料合計の1.1% 口座振替手数料330円/月 |
契約期間 |
2年 |
入居可能日 |
2026年02月中旬 |
フリーレント期間 |
- |
取引形態 |
一般媒介 |
備考 |
リブリクラブ入会費7700円/2年、火災保険19000円/2年、鍵交換費用24200円、室内消毒費用16500円、室内清掃費35200円、1年未満での解約は違約金賃料・管理費の1ヶ月分要、法人契約時は礼金2ヶ月 |
Le Parc 相模原 207号室の建物情報
建物名称 |
Le Parc 相模原 |
|---|---|
最寄駅 |
|
所在地 |
神奈川県相模原市南区東林間 |
階層 |
2階部分(地上3階建) |
構造 |
鉄骨造 |
築年数 |
2017年9月(築9年) |
駐車場 |
- |
小学校学区 |
東林小学校 |
中学校学区 |
東林中学校 |
- 学区データについて
- ※学区データは必ずしも正確とは限りません。詳細に関しては最寄店舗または各自治体の教育委員会に必ずご確認ください。
無料この物件に問い合わせ
- Le Parc 相模原 207号室

-
6.6万円
(共益費
3,000円)
- 敷
- -
- 礼
- 0.5ヶ月
- 保
- -
- 償
- -
Le Parc 相模原 207号室の物件のお問い合わせ先・取り扱い店舗
ハウスコム 相模大野店
- アクセス
-
小田急小田原線「相模大野駅」北口徒歩1分
- 住所
- 〒252-0303 神奈川県相模原市南区相模大野3丁目12−6 アポロ相模大野ビル 1F
- 営業時間
- 10:00~18:00
- 定休日
- なし
- 営業エリア
- 相模原市、大和市、座間市、町田市、海老名市、厚木市
- 取引態様
- 賃貸仲介業






































