エクセリア高円寺 212号室(2階/1K)の賃貸物件(賃貸マンション)
東京都杉並区にあるエクセリア高円寺 212号室はバス・トイレ別、温水洗浄便座、オートロック、都市ガス、エレベーターなどが特徴です。最寄り駅の中央本線(JR東日本)高円寺駅から徒歩7分です。エクセリア高円寺 212号室の詳細はハウスコム 三鷹店までお気軽にお問い合わせください!
情報更新日:
次回更新予定日:
※次回更新予定日について:お店側では順次空室確認を行っていますが、次回更新予定日までに空室確認が行えない場合には、この物件情報は自動的に削除されます。
エクセリア高円寺 212号室の賃貸物件部屋概要
家賃 |
7.8万円
初期費用を |
|---|---|
共益費 |
8,000円
入居可能時期 |
敷金/礼金 |
1ヶ月 / 1ヶ月 |
保証金/ |
- / - |
最寄駅 |
|
所在地 |
東京都杉並区高円寺北 |
部屋番号 |
212号室 |
間取り |
1K(洋6.7) |
専有面積 |
18.88㎡ |
築年数 |
1997年3月(築29年) |
階数 |
2階部分(地上8階建) |
方位・位置 |
西 / その他 |
物件種別 |
賃貸マンション |
構造 |
SRC |
駐車場 |
- |
小学校学区 |
高円寺学園 |
中学校学区 |
高円寺中学校 |
他の空き部屋 |
ー |
- 学区データについて
- ※学区データは必ずしも正確とは限りません。詳細に関しては最寄店舗または各自治体の教育委員会に必ずご確認ください。
エクセリア高円寺 212号室の特徴
契約条件
ご契約時に保証人は不要です。
セキュリティ
この物件の建物には、オートロックや防犯カメラや宅配ボックスが設置されております。
室内設備
システムキッチンには、IHコンロが備え付けられています。 トイレは、温水洗浄便座機能付きになります。 洗濯に便利な設備として、室内洗濯機置場があります。
居室状況
お部屋の床は、フローリングとなっており、エアコンが設置されています。 照明器具が備え付けられており、入居後すぐ生活が始められます。 収納スペースとして、基本的な居室にクローゼットを設置、玄関にはシューズボックスがあります。
建物設備共用部分
居室外の専有スペースとして、洗濯物を干すなどの用途として利用できるバルコニーがあります。 建物の共用スペースに、日々の出入に便利なエレベーターや、いざという時の防犯カメラや、急な外出や不在がちのご家庭の荷物受け取りに便利な宅配ボックスや、居室内を常に清潔に保てる24時間利用可能なゴミ捨て置き場が設置されています。 駐輪場が利用できます。
周辺施設
この物件の学区は、高円寺学園区・高円寺中学校区です。
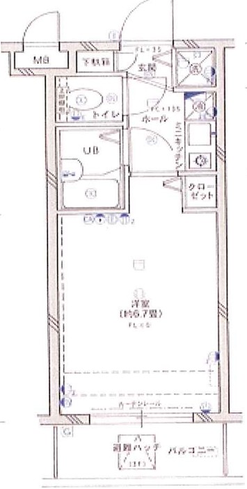
エクセリア高円寺 212号室の間取り
間取り:1K
間取詳細:1K(洋6.7)
専有面積:18.88㎡
方位:西
部屋位置:その他
エクセリア高円寺 212号室の設備
キッチン
システムキッチン
IHコンロ
バス・トイレ
バス・トイレ別
温水洗浄便座
玄関
オートロック
宅配ボックス
収納
クローゼット
シューズボックス
バルコニー
バルコニー
ルーフバルコニー
室内設備
エアコン
フローリング
室内洗濯機置場
照明器具付
位置・立地
2階以上
インフラ
CATV
BS
CS
都市ガス
建物設備
エレベーター
防犯カメラ
24時間ゴミ出しOK
駐輪場
分譲賃貸
入居条件
オンライン内見可
保証人不要
ライフステージ
一人暮らしに人気の設備
カップルに人気の設備
家族に人気の設備
夫婦に人気の設備
三世代で人気の設備
こだわり
外で子どもと遊びたい
雨の日でも洗濯したい
洋室で暮らしたい
趣味
ガーデニングが好き
エクセリア高円寺 212号室の賃貸契約情報
毎月支払う |
家賃7.8万円/月共益費8,000円/月 |
|---|---|
初期費用 |
敷金1ヶ月 (7.8万円)礼金1ヶ月 (7.8万円)保証金-敷引き償却金- |
更新料 |
78,000円 |
鍵交換費用 |
19,800円 |
室内清掃費用 |
- |
書類作成代 |
12,100円 |
駐車場料金 |
- |
損保・ |
借家賠付きの火災保険にご加入いただきます。 |
保証会社 |
加入要 保証会社利用料:初回保証料賃料総額50% 月1240円 |
契約期間 |
2年 |
入居可能日 |
2026年11月中旬 |
フリーレント期間 |
- |
取引形態 |
一般媒介 |
備考 |
鍵交換22000円 火災保険加入要2年18000円 駐輪場:有料 |
エクセリア高円寺 212号室の建物情報
建物名称 |
エクセリア高円寺 |
|---|---|
最寄駅 |
|
所在地 |
東京都杉並区高円寺北 |
階層 |
2階部分(地上8階建) |
構造 |
SRC |
築年数 |
1997年3月(築29年) |
駐車場 |
- |
小学校学区 |
高円寺学園 |
中学校学区 |
高円寺中学校 |
- 学区データについて
- ※学区データは必ずしも正確とは限りません。詳細に関しては最寄店舗または各自治体の教育委員会に必ずご確認ください。
無料この物件に問い合わせ
- エクセリア高円寺 212号室

-
7.8万円
(共益費
8,000円)
- 敷
- 1ヶ月
- 礼
- 1ヶ月
- 保
- -
- 償
- -
エクセリア高円寺 212号室の物件のお問い合わせ先・取り扱い店舗
ハウスコム 三鷹店
- アクセス
-
中央本線(JR東日本)「三鷹駅」南口徒歩1分
- 住所
- 〒181-0013 東京都三鷹市下連雀3丁目45−2 麻沼ビル 1階
- 営業時間
- 10:00~18:00
- 定休日
- なし
- 営業エリア
- 三鷹市、武蔵野市、小金井市、杉並区、調布市、西東京市、練馬区、世田谷区
- 取引態様
- 賃貸仲介業



















