アバンテリム大森北 0303号室(3階/1K)の賃貸物件(賃貸マンション)
東京都大田区にあるアバンテリム大森北 0303号室は独立洗面台、オートロック、エアコン、2階以上、オンライン相談可などが特徴です。最寄り駅の京急本線平和島駅から徒歩7分です。アバンテリム大森北 0303号室の詳細はハウスコム 大森店までお気軽にお問い合わせください!
情報更新日:
次回更新予定日:
※次回更新予定日について:お店側では順次空室確認を行っていますが、次回更新予定日までに空室確認が行えない場合には、この物件情報は自動的に削除されます。
アバンテリム大森北 0303号室の賃貸物件部屋概要
家賃 |
11.3万円
初期費用を |
|---|---|
共益費 |
12,000円
入居可能時期 |
敷金/礼金 |
- / - |
保証金/ |
- / - |
最寄駅 |
|
所在地 |
東京都大田区大森北 |
部屋番号 |
0303号室 |
間取り |
1K(洋7.2・K2) |
専有面積 |
25.11㎡ |
築年数 |
新築 |
階数 |
3階部分(地上4階建) |
方位・位置 |
東 / その他 |
物件種別 |
賃貸マンション |
構造 |
RC |
駐車場 |
- |
小学校学区 |
開桜小学校 |
中学校学区 |
大森第二中学校 |
他の空き部屋 |
0101号室 0102号室 0202号室 0203号室 0301号室 0302号室 0401号室 0402号室 0403号室 101号室 |
- 学区データについて
- ※学区データは必ずしも正確とは限りません。詳細に関しては最寄店舗または各自治体の教育委員会に必ずご確認ください。
アバンテリム大森北 0303号室の特徴
契約条件
ご契約時に保証人は不要です。 敷金と礼金が無料なため、初期費用が比較的安くなる傾向にあります。
セキュリティ
この物件の建物には、オートロックや宅配ボックスが設置されております。
室内設備
システムキッチンには、IHコンロが備え付けられています。 トイレは、温水洗浄便座機能付きになります。 女性に嬉しい設備の独立した洗面化粧台があります。 洗濯に便利な設備として、室内洗濯機置場があります。浴室乾燥機も設置されているので、梅雨時の生乾き臭も比較的防ぐことができます。
居室状況
お部屋の床は、フローリングとなっており、エアコンが設置されています。 インターネットも無料で入居後すぐ生活が始められます。 収納スペースとして、基本的な居室にクローゼットを設置、通常よりも収納力の高いウォークインクローゼットがあります。
建物設備共用部分
建物の共用スペースに、急な外出や不在がちのご家庭の荷物受け取りに便利な宅配ボックスが設置されています。
周辺施設
この物件の学区は、開桜小学校区・大森第二中学校区です。
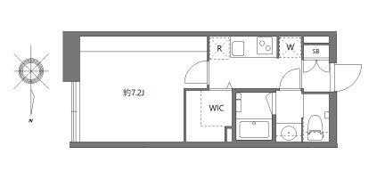
アバンテリム大森北 0303号室の間取り
間取り:1K
間取詳細:1K(洋7.2・K2)
専有面積:25.11㎡
方位:東
部屋位置:その他
アバンテリム大森北 0303号室の設備
キッチン
システムキッチン
IHコンロ
バス・トイレ
バス・トイレ別
浴室乾燥機
温水洗浄便座
独立洗面台
玄関
オートロック
宅配ボックス
収納
クローゼット
ウォークインクローゼット
室内設備
エアコン
フローリング
室内洗濯機置場
位置・立地
2階以上
インフラ
インターネット可
都市ガス
入居条件
オンライン相談可
オンライン内見可
保証人不要
ライフステージ
一人暮らしに人気の設備
カップルに人気の設備
家族に人気の設備
夫婦に人気の設備
三世代で人気の設備
こだわり
雨の日でも洗濯したい
洋室で暮らしたい
趣味
服やおしゃれが好き
オークション・通販が好き
お得な条件
インターネット無料
アバンテリム大森北 0303号室の賃貸契約情報
毎月支払う |
家賃11.3万円/月共益費12,000円/月 |
|---|---|
初期費用 |
敷金-礼金-保証金-敷引き償却金- |
更新料 |
113,000円 |
鍵交換費用 |
- |
室内清掃費用 |
- |
プレミアデスク(2年/税込) |
22,000円 |
契約時ルームクリーニング費用(税込) |
60,500円 |
駐車場料金 |
- |
損保・ |
借家賠付きの火災保険にご加入いただきます。 |
保証会社 |
加入要 保証会社:エポスカード 保証会社利用料:【ルームID】月額総賃料の50%/月次保証料、月額総賃料の1.5%/1年毎10,000円 【アーク賃貸保証】月額総賃料の40%/次年度以降10,000円 |
契約期間 |
2年 |
入居可能日 |
2026年03月 |
フリーレント期間 |
- |
取引形態 |
一般媒介 |
備考 |
- |
アバンテリム大森北 0303号室の建物情報
建物名称 |
アバンテリム大森北 |
|---|---|
最寄駅 |
|
所在地 |
東京都大田区大森北 |
階層 |
3階部分(地上4階建) |
構造 |
RC |
築年数 |
新築 |
駐車場 |
- |
小学校学区 |
開桜小学校 |
中学校学区 |
大森第二中学校 |
- 学区データについて
- ※学区データは必ずしも正確とは限りません。詳細に関しては最寄店舗または各自治体の教育委員会に必ずご確認ください。
無料この物件に問い合わせ
- アバンテリム大森北 0303号室

-
11.3万円
(共益費
12,000円)
- 敷
- -
- 礼
- -
- 保
- -
- 償
- -
アバンテリム大森北 0303号室の物件のお問い合わせ先・取り扱い店舗
ハウスコム 大森店
- アクセス
-
京浜東北・根岸線「大森駅」徒歩1分
- 住所
- 〒143-0023 東京都大田区山王2丁目2−4
- 営業時間
- 10:00~18:00
- 定休日
- 水曜日
- 営業エリア
- 大田区、品川区、港区
- 取引態様
- 賃貸仲介業















