デルフィーノ 203号室(2階/1K)の賃貸物件(賃貸マンション)
東京都豊島区にあるデルフィーノ 203号室はガスコンロ、追い焚き、ウォークインクローゼット、フローリング、2階以上などが特徴です。最寄り駅の山手線大塚駅から徒歩9分です。デルフィーノ 203号室の詳細はハウスコム 高田馬場店までお気軽にお問い合わせください!
情報更新日:
次回更新予定日:
※次回更新予定日について:お店側では順次空室確認を行っていますが、次回更新予定日までに空室確認が行えない場合には、この物件情報は自動的に削除されます。
デルフィーノ 203号室の賃貸物件部屋概要
家賃 |
9.6万円
初期費用を |
|---|---|
共益費 |
4,000円
入居可能時期 |
敷金/礼金 |
1ヶ月 / 1ヶ月 |
保証金/ |
- / - |
最寄駅 |
|
所在地 |
東京都豊島区東池袋 |
部屋番号 |
203号室 |
間取り |
1K(洋7.5) |
専有面積 |
27.07㎡ |
築年数 |
2011年3月(築15年) |
階数 |
2階部分(地上3階建) |
方位・位置 |
南西 / 角部屋 |
物件種別 |
賃貸マンション |
構造 |
鉄骨造 |
駐車場 |
空無し |
小学校学区 |
朋有小学校 |
中学校学区 |
西巣鴨中学校 |
他の空き部屋 |
ー |
- 学区データについて
- ※学区データは必ずしも正確とは限りません。詳細に関しては最寄店舗または各自治体の教育委員会に必ずご確認ください。
デルフィーノ 203号室の特徴
セキュリティ
この物件の建物には、オートロックや宅配ボックスが設置されており、来客時には居室内のテレビモニターにて訪問者の顔を確認することができます。
室内設備
システムキッチンには、2つ以上のガスコンロが備え付けられています。 お風呂とトイレは別です。お風呂には、追い焚き機能が備わっています。 トイレは、温水洗浄便座機能付きになります。 女性に嬉しい設備の独立した洗面化粧台があります。 洗濯に便利な設備として、室内洗濯機置場があります。浴室乾燥機も設置されているので、梅雨時の生乾き臭も比較的防ぐことができます。
居室状況
お部屋の床は、フローリングとなっており、エアコンが設置されています。 収納スペースとして、通常よりも収納力の高いウォークインクローゼット、玄関にはシューズボックスがあります。
建物設備共用部分
建物の共用スペースに、急な外出や不在がちのご家庭の荷物受け取りに便利な宅配ボックスが設置されています。
周辺施設
この物件の学区は、朋有小学校区・西巣鴨中学校区です。
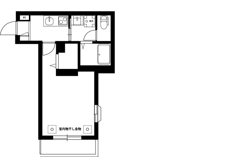
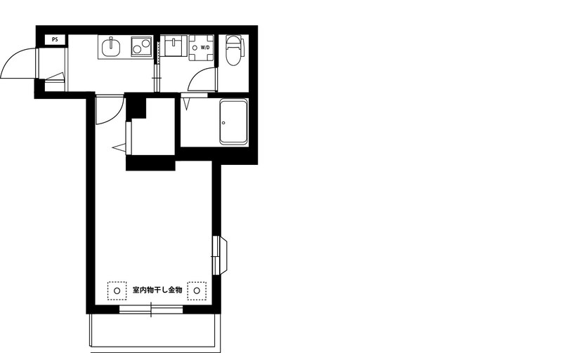
デルフィーノ 203号室の間取り
間取り:1K
間取詳細:1K(洋7.5)
専有面積:27.07㎡
方位:南西
部屋位置:角部屋
デルフィーノ 203号室の設備
キッチン
システムキッチン
ガスコンロ
ガスコンロ二口以上
バス・トイレ
バス・トイレ別
追い焚き
浴室乾燥機
温水洗浄便座
独立洗面台
玄関
TVモニタ付インターホン
オートロック
宅配ボックス
収納
ウォークインクローゼット
シューズボックス
室内設備
エアコン
フローリング
室内洗濯機置場
位置・立地
2階以上
角部屋
インフラ
CATV
都市ガス
ライフステージ
一人暮らしに人気の設備
カップルに人気の設備
家族に人気の設備
夫婦に人気の設備
三世代で人気の設備
こだわり
雨の日でも洗濯したい
洋室で暮らしたい
趣味
服やおしゃれが好き
デルフィーノ 203号室の賃貸契約情報
毎月支払う |
家賃9.6万円/月共益費4,000円/月 |
|---|---|
初期費用 |
敷金1ヶ月 (9.6万円)礼金1ヶ月 (9.6万円)保証金-敷引き償却金- |
更新料 |
96,000円 |
鍵交換費用 |
24,200円 |
室内清掃費用 |
- |
室内消毒代 |
16,500円 |
リブリクラブ会員費(2年間) |
7,700円 |
退去時ルームクリーニング費 |
35,200円 |
駐車場料金 |
空無し |
損保・ |
借家賠付きの火災保険にご加入いただきます。 |
保証会社 |
加入要 保証会社利用料:株式会社スマートクレジット 保証人代行会社名:株式会社スマートクレジット(プランS)基本料:月額支払合計の50% 、月額料:月額支払合計の1.1%、口振手数料:330円/月 |
契約期間 |
2年 |
入居可能日 |
2026年02月中旬 |
フリーレント期間 |
- |
取引形態 |
一般媒介 |
備考 |
- |
デルフィーノ 203号室の建物情報
建物名称 |
デルフィーノ |
|---|---|
最寄駅 |
|
所在地 |
東京都豊島区東池袋 |
階層 |
2階部分(地上3階建) |
構造 |
鉄骨造 |
築年数 |
2011年3月(築15年) |
駐車場 |
空無し |
小学校学区 |
朋有小学校 |
中学校学区 |
西巣鴨中学校 |
- 学区データについて
- ※学区データは必ずしも正確とは限りません。詳細に関しては最寄店舗または各自治体の教育委員会に必ずご確認ください。
無料この物件に問い合わせ
- デルフィーノ 203号室

-
9.6万円
(共益費
4,000円)
- 敷
- 1ヶ月
- 礼
- 1ヶ月
- 保
- -
- 償
- -
デルフィーノ 203号室の物件のお問い合わせ先・取り扱い店舗
ハウスコム 高田馬場店
- アクセス
-
山手線「高田馬場駅」徒歩5分
- 住所
- 〒169-0075 東京都新宿区高田馬場1-17-18 マルシメビル1階
- 営業時間
- 10:00~18:00
- 定休日
- 水曜日
- 営業エリア
- 新宿区 豊島区 杉並区 中野区 文京区
- 取引態様
- 賃貸仲介業





























