メルヴェイユ B 201号室(2階/2LDK)の賃貸物件(賃貸アパート)
群馬県太田市にあるメルヴェイユ B 201号室は追い焚き、独立洗面台、室内洗濯機置場、南向き、プロパンガスなどが特徴です。最寄り駅の東武スカイツリーライン・伊勢崎線・大師線木崎駅から2.64kmです。メルヴェイユ B 201号室の詳細はハウスコム 熊谷店までお気軽にお問い合わせください!
情報更新日:
次回更新予定日:
※次回更新予定日について:お店側では順次空室確認を行っていますが、次回更新予定日までに空室確認が行えない場合には、この物件情報は自動的に削除されます。
メルヴェイユ B 201号室の賃貸物件部屋概要
家賃 |
6.3万円
初期費用を |
|---|---|
共益費 |
4,000円
入居可能時期 |
敷金/礼金 |
- / 1ヶ月 |
保証金/ |
- / - |
最寄駅 |
|
所在地 |
群馬県太田市堀口町 |
部屋番号 |
201号室 |
間取り |
2LDK(洋6・洋6・LDK10) |
専有面積 |
53.76㎡ |
築年数 |
2007年12月(築19年) |
階数 |
2階部分(地上2階建) |
方位・位置 |
南 / 角部屋 |
物件種別 |
賃貸アパート |
構造 |
軽量鉄骨 |
駐車場 |
1,100円 |
小学校学区 |
尾島小学校 |
中学校学区 |
尾島中学校 |
他の空き部屋 |
ー |
- 学区データについて
- ※学区データは必ずしも正確とは限りません。詳細に関しては最寄店舗または各自治体の教育委員会に必ずご確認ください。
メルヴェイユ B 201号室の特徴
契約条件
この物件は、2人入居もご契約できます。 ペットの飼育もご相談ください。 また、ご契約時に保証人は不要です。 敷金が無料なため、初期費用が比較的安くなる傾向にあります。
セキュリティ
来客時には居室内のテレビモニターにて訪問者の顔を確認することができます。
室内設備
お風呂とトイレは別です。お風呂には、追い焚き機能が備わっています。 トイレは、温水洗浄便座機能付きになります。 女性に嬉しい設備のシャワーの付いている洗面化粧台があります。 洗濯に便利な設備として、室内洗濯機置場があります。
居室状況
お部屋の床は、フローリングとなっており、エアコンが設置されています。 インターネットも無料で入居後すぐ生活が始められます。 収納スペースとして、基本的な居室にクローゼットを設置、玄関にはシューズボックスがあります。
建物設備共用部分
居室外の専有スペースとして、洗濯物を干すなどの用途として利用できるバルコニーがあります。 平面駐車場があります。駐輪場が利用できます。
周辺施設
この物件の学区は、尾島小学校区・尾島中学校区です。
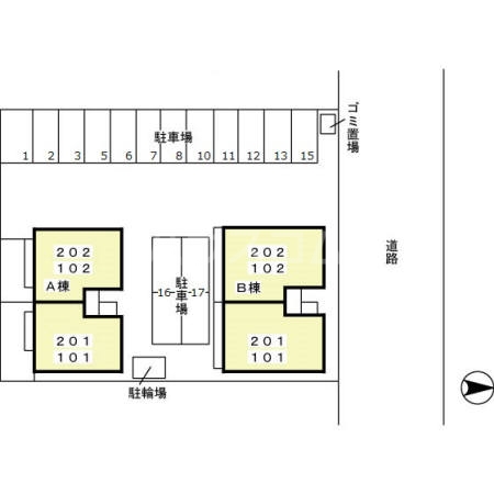
メルヴェイユ B 201号室の間取り
間取り:2LDK
間取詳細:2LDK(洋6・洋6・LDK10)
専有面積:53.76㎡
方位:南
部屋位置:角部屋
メルヴェイユ B 201号室の設備
バス・トイレ
バス・トイレ別
追い焚き
温水洗浄便座
独立洗面台
シャワー付洗面化粧台
玄関
TVモニタ付インターホン
収納
クローゼット
シューズボックス
バルコニー
バルコニー
ルーフバルコニー
室内設備
エアコン
フローリング
室内洗濯機置場
位置・立地
2階以上
最上階
角部屋
南向き
インフラ
インターネット可
プロパンガス
建物設備
駐車場
平面駐車場
駐輪場
入居条件
ペット可・相談
2人入居可
オンライン相談可
オンライン内見可
保証人不要
ライフステージ
一人暮らしに人気の設備
カップルに人気の設備
家族に人気の設備
夫婦に人気の設備
三世代で人気の設備
こだわり
日当たり重視
外で子どもと遊びたい
雨の日でも洗濯したい
洋室で暮らしたい
趣味
ガーデニングが好き
お得な条件
インターネット無料
メルヴェイユ B 201号室の賃貸契約情報
毎月支払う |
家賃6.3万円/月共益費4,000円/月 |
|---|---|
初期費用 |
敷金-礼金1ヶ月 (6.3万円)保証金-敷引き償却金- |
更新料 |
63,000円 |
鍵交換費用 |
16,500円 |
室内清掃費用 |
77,000円 |
その他費用契約金 |
16,500円 |
駐車場料金 |
1,100円 |
損保・ |
借家賠付きの火災保険にご加入いただきます。 |
保証会社 |
加入要 保証会社利用料:契約時保証料:35000円 月額保証料:賃料等総額の1%+800円 または月額保証料:賃料等総額の3.4%+800円 |
契約期間 |
2年 |
入居可能日 |
2026年02月中旬 |
フリーレント期間 |
- |
取引形態 |
一般媒介 |
備考 |
ペット飼育時:敷金追加預託 |
メルヴェイユ B 201号室の建物情報
建物名称 |
メルヴェイユ B |
|---|---|
最寄駅 |
|
所在地 |
群馬県太田市堀口町 |
階層 |
2階部分(地上2階建) |
構造 |
軽量鉄骨 |
築年数 |
2007年12月(築19年) |
駐車場 |
1,100円 |
小学校学区 |
尾島小学校 |
中学校学区 |
尾島中学校 |
- 学区データについて
- ※学区データは必ずしも正確とは限りません。詳細に関しては最寄店舗または各自治体の教育委員会に必ずご確認ください。
無料この物件に問い合わせ
- メルヴェイユ B 201号室

-
6.3万円
(共益費
4,000円)
- 敷
- -
- 礼
- 1ヶ月
- 保
- -
- 償
- -
メルヴェイユ B 201号室の物件のお問い合わせ先・取り扱い店舗
ハウスコム 熊谷店
- アクセス
-
高崎線「熊谷駅」北口徒歩1分
- 住所
- 〒360-0037 埼玉県熊谷市筑波2丁目52 新井屋本店ビル 2階
- 営業時間
- 10:00~18:00
- 定休日
- なし
- 営業エリア
- 埼玉県熊谷市、行田市、深谷市、本庄市、東松山市、秩父市、比企郡、、児玉郡、群馬県南部
- 取引態様
- 賃貸仲介業


























