パークアクシス名古屋山王一丁目 603号室(6階/1K)の賃貸物件(賃貸マンション)
愛知県名古屋市中川区にあるパークアクシス名古屋山王一丁目 603号室はバス・トイレ別、ルーフバルコニー、フローリング、南向き、CATVなどが特徴です。最寄り駅の名鉄名古屋本線山王駅から徒歩5分です。パークアクシス名古屋山王一丁目 603号室の詳細はハウスコム 金山店までお気軽にお問い合わせください!
情報更新日:
次回更新予定日:
※次回更新予定日について:お店側では順次空室確認を行っていますが、次回更新予定日までに空室確認が行えない場合には、この物件情報は自動的に削除されます。
パークアクシス名古屋山王一丁目 603号室の賃貸物件部屋概要
家賃 |
6.4万円
初期費用を |
|---|---|
共益費 |
8,000円
入居可能時期 |
敷金/礼金 |
1ヶ月 / 1ヶ月 |
保証金/ |
- / - |
最寄駅 |
|
所在地 |
愛知県名古屋市中川区山王 |
部屋番号 |
603号室 |
間取り |
1K(洋9.2・K0) |
専有面積 |
28.02㎡ |
築年数 |
2023年7月(築3年) |
階数 |
6階部分(地上14階建) |
方位・位置 |
南 / その他 |
物件種別 |
賃貸マンション |
構造 |
RC |
駐車場 |
無 |
小学校学区 |
露橋小学校 |
中学校学区 |
山王中学校 |
他の空き部屋 |
1105号室 1202号室 |
- 学区データについて
- ※学区データは必ずしも正確とは限りません。詳細に関しては最寄店舗または各自治体の教育委員会に必ずご確認ください。
パークアクシス名古屋山王一丁目 603号室の特徴
-
一人暮らしに人気の設備

-
カップルに人気の設備

-
家族に人気の設備

-
夫婦に人気の設備

-
三世代で人気の設備

-
外で子どもと遊びたい

-
雨の日でも洗濯したい

-
洋室で暮らしたい

-
オークション・通販が好き

-
ガーデニングが好き

契約条件
保証会社との契約が必要となる場合があります。
セキュリティ
この物件の建物には、オートロックや宅配ボックスが設置されております。
室内設備
システムキッチンが備え付けられています。 女性に嬉しい設備の独立した洗面化粧台があります。 洗濯に便利な設備として、室内洗濯機置場があります。浴室乾燥機も設置されているので、梅雨時の生乾き臭も比較的防ぐことができます。
居室状況
お部屋の床は、フローリングとなっており、エアコンが設置されています。 インターネットも無料で入居後すぐ生活が始められます。 収納スペースとして、基本的な居室にクローゼットを設置、玄関にはシューズボックスがあります。
建物設備共用部分
居室外の専有スペースとして、洗濯物を干すなどの用途として利用できるバルコニーがあります。 建物の共用スペースに、日々の出入に便利なエレベーターや、急な外出や不在がちのご家庭の荷物受け取りに便利な宅配ボックスが設置されています。 駐輪場、バイク置き場が利用できます。
周辺施設
この物件の学区は、露橋小学校区・山王中学校区です。
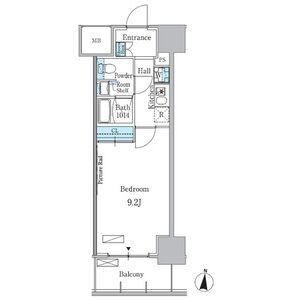
パークアクシス名古屋山王一丁目 603号室の間取り
間取り:1K
間取詳細:1K(洋9.2・K0)
専有面積:28.02㎡
方位:南
部屋位置:その他
パークアクシス名古屋山王一丁目 603号室の設備
キッチン
システムキッチン
バス・トイレ
バス・トイレ別
浴室乾燥機
独立洗面台
玄関
オートロック
宅配ボックス
収納
クローゼット
シューズボックス
バルコニー
バルコニー
ルーフバルコニー
室内設備
エアコン
フローリング
室内洗濯機置場
位置・立地
2階以上
南向き
インフラ
CATV
建物設備
エレベーター
駐輪場
バイク置き場
入居条件
オンライン相談可
保証会社利用可
ライフステージ
一人暮らしに人気の設備
カップルに人気の設備
家族に人気の設備
夫婦に人気の設備
三世代で人気の設備
こだわり
外で子どもと遊びたい
雨の日でも洗濯したい
洋室で暮らしたい
趣味
オークション・通販が好き
ガーデニングが好き
お得な条件
インターネット無料
パークアクシス名古屋山王一丁目 603号室の賃貸契約情報
毎月支払う |
家賃6.4万円/月共益費8,000円/月 |
|---|---|
初期費用 |
敷金1ヶ月 (6.4万円)礼金1ヶ月 (6.4万円)保証金-敷引き償却金- |
更新料 |
- |
鍵交換費用 |
- |
室内清掃費用 |
41,800円 |
室内清掃費 |
41,800円 |
駐車場料金 |
無 |
損保・ |
借家賠付きの火災保険にご加入いただきます。 |
保証会社 |
利用可 保証会社:オリコフォレントインシュア 保証会社利用料:初回保証料:総賃料50% 年更新料:1万円 |
契約期間 |
2年 |
入居可能日 |
即入居可 |
フリーレント期間 |
- |
取引形態 |
一般媒介 |
備考 |
保証会社利用時:敷金1カ月 駐輪場:ステッカー発行代2200円(契約時) 更新事務手数料(2年毎・更新時)11000円 |
パークアクシス名古屋山王一丁目 603号室の建物情報
建物名称 |
パークアクシス名古屋山王一丁目 |
|---|---|
最寄駅 |
|
所在地 |
愛知県名古屋市中川区山王 |
階層 |
6階部分(地上14階建) |
構造 |
RC |
築年数 |
2023年7月(築3年) |
駐車場 |
無 |
小学校学区 |
露橋小学校 |
中学校学区 |
山王中学校 |
- 学区データについて
- ※学区データは必ずしも正確とは限りません。詳細に関しては最寄店舗または各自治体の教育委員会に必ずご確認ください。
無料この物件に問い合わせ
- パークアクシス名古屋山王一丁目 603号室

-
6.4万円
(共益費
8,000円)
- 敷
- 1ヶ月
- 礼
- 1ヶ月
- 保
- -
- 償
- -
パークアクシス名古屋山王一丁目 603号室の物件のお問い合わせ先・取り扱い店舗
ハウスコム 金山店
- アクセス
-
東海道本線(JR東海)「金山駅」南口徒歩3分
- 住所
- 〒456-0002 愛知県名古屋市熱田区金山町1-7-20 SH SQUARE Kanayama1階
- 営業時間
- 10:00~18:00
- 定休日
- なし(年末年始(12月25日~1月3日))
- 営業エリア
- 熱田区、中区、昭和区、瑞穂区、中川区、港区、南区
- 取引態様
- 賃貸仲介業





























