中岡崎町の完工年月(2026年3月)築の賃貸アパート ***号室(2階/1LDK)の賃貸物件(賃貸アパート)
愛知県岡崎市にある中岡崎町の完工年月(2026年3月)築の賃貸アパート ***号室はガスコンロ、ガスコンロ二口以上、独立洗面台、オートロック、オンライン相談可などが特徴です。最寄り駅の名鉄名古屋本線岡崎公園前駅から徒歩3分です。中岡崎町の完工年月(2026年3月)築の賃貸アパート ***号室の詳細はハウスコム 岡崎店までお気軽にお問い合わせください!
情報更新日:
次回更新予定日:
※次回更新予定日について:お店側では順次空室確認を行っていますが、次回更新予定日までに空室確認が行えない場合には、この物件情報は自動的に削除されます。
中岡崎町の完工年月(2026年3月)築の賃貸アパート ***号室の賃貸物件部屋概要
家賃 |
6.55万円
初期費用を |
|---|---|
共益費 |
7,000円
入居可能時期 |
敷金/礼金 |
- / - |
保証金/ |
- / - |
最寄駅 |
|
所在地 |
愛知県岡崎市中岡崎町 |
部屋番号 |
***号室 |
間取り |
1LDK(洋4.2・LDK9.4) |
専有面積 |
30.01㎡ |
築年数 |
新築 |
階数 |
2階部分(地上3階建) |
方位・位置 |
ー / その他 |
物件種別 |
賃貸アパート |
構造 |
木造 |
駐車場 |
6,600円 |
小学校学区 |
連尺小学校 |
中学校学区 |
城北中学校 |
他の空き部屋 |
***号室 ***号室 ***号室 ***号室 ***号室 ***号室 ***号室 ***号室 |
- 学区データについて
- ※学区データは必ずしも正確とは限りません。詳細に関しては最寄店舗または各自治体の教育委員会に必ずご確認ください。
中岡崎町の完工年月(2026年3月)築の賃貸アパート ***号室の特徴
-
一人暮らしに人気の設備

-
カップルに人気の設備

-
家族に人気の設備

-
夫婦に人気の設備

-
三世代で人気の設備

-
外で子どもと遊びたい

-
雨の日でも洗濯したい

-
洋室で暮らしたい

-
寝るためだけの部屋

-
オークション・通販が好き

-
ガーデニングが好き

契約条件
この物件は、外国籍の方もご相談の上、ご契約できます。 ペットの飼育もご相談ください。 敷金と礼金が無料なため、初期費用が比較的安くなる傾向にあります。
セキュリティ
この物件の建物には、オートロックや宅配ボックスが設置されており、来客時には居室内のテレビモニターにて訪問者の顔を確認することができます。
室内設備
システムキッチンには、2つ以上のガスコンロが備え付けられています。 トイレは、温水洗浄便座機能付きになります。 女性に嬉しい設備のシャワーの付いている洗面化粧台があります。 洗濯に便利な設備として、室内洗濯機置場があります。浴室乾燥機も設置されているので、梅雨時の生乾き臭も比較的防ぐことができます。
居室状況
お部屋の床は、フローリングとなっており、エアコンが設置されています。 インターネットも無料で入居後すぐ生活が始められます。 収納スペースとして、玄関にはシューズボックスがあります。
建物設備共用部分
居室外の専有スペースとして、洗濯物を干すなどの用途として利用できるバルコニーがあります。 建物の共用スペースに、急な外出や不在がちのご家庭の荷物受け取りに便利な宅配ボックスが設置されています。 平面駐車場があります。駐輪場が利用できます。
周辺施設
この物件の学区は、連尺小学校区・城北中学校区です。
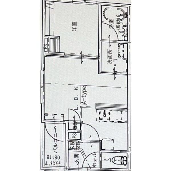
中岡崎町の完工年月(2026年3月)築の賃貸アパート ***号室の間取り
間取り:1LDK
間取詳細:1LDK(洋4.2・LDK9.4)
専有面積:30.01㎡
方位:ー
部屋位置:その他
中岡崎町の完工年月(2026年3月)築の賃貸アパート ***号室の設備
キッチン
システムキッチン
ガスコンロ
ガスコンロ二口以上
バス・トイレ
バス・トイレ別
浴室乾燥機
温水洗浄便座
独立洗面台
シャワー付洗面化粧台
玄関
TVモニタ付インターホン
オートロック
宅配ボックス
収納
シューズボックス
バルコニー
バルコニー
ルーフバルコニー
室内設備
エアコン
フローリング
室内洗濯機置場
位置・立地
2階以上
インフラ
都市ガス
建物設備
駐車場
平面駐車場
駐輪場
入居条件
ペット可・相談
外国人可・相談
オンライン相談可
ライフステージ
一人暮らしに人気の設備
カップルに人気の設備
家族に人気の設備
夫婦に人気の設備
三世代で人気の設備
こだわり
外で子どもと遊びたい
雨の日でも洗濯したい
洋室で暮らしたい
寝るためだけの部屋
趣味
オークション・通販が好き
ガーデニングが好き
お得な条件
インターネット無料
中岡崎町の完工年月(2026年3月)築の賃貸アパート ***号室の賃貸契約情報
毎月支払う |
家賃6.55万円/月共益費7,000円/月 |
|---|---|
初期費用 |
敷金-礼金-保証金-敷引き償却金- |
更新料 |
- |
鍵交換費用 |
- |
室内清掃費用 |
65,500円 |
駐車場料金 |
6,600円 |
損保・ |
借家賠付きの火災保険にご加入いただきます。 |
保証会社 |
加入要 保証会社:エポスカード 保証会社利用料:初回保証料:家賃総賃料の60%(月額保証料を含まない) 毎月1.5% |
契約期間 |
- |
入居可能日 |
2026年03月中旬 |
フリーレント期間 |
- |
取引形態 |
一般媒介 |
備考 |
駐車場空き2台/6600円(税込) 先着順 2台まで ZEH物件 短期解約違約金:1年未満の解約で家賃2ヶ月、1年以上2年未満の解約で家賃1ヶ月 駐輪場:有料 ペット飼育時敷金積み増し料金(償却)有り |
中岡崎町の完工年月(2026年3月)築の賃貸アパート ***号室の建物情報
建物名称 |
中岡崎町の完工年月(2026年3月)築の賃貸アパート |
|---|---|
最寄駅 |
|
所在地 |
愛知県岡崎市中岡崎町 |
階層 |
2階部分(地上3階建) |
構造 |
木造 |
築年数 |
新築 |
駐車場 |
6,600円 |
小学校学区 |
連尺小学校 |
中学校学区 |
城北中学校 |
- 学区データについて
- ※学区データは必ずしも正確とは限りません。詳細に関しては最寄店舗または各自治体の教育委員会に必ずご確認ください。
無料この物件に問い合わせ
- 中岡崎町の完工年月(2026年3月)築の賃貸アパート ***号室

-
6.55万円
(共益費
7,000円)
- 敷
- -
- 礼
- -
- 保
- -
- 償
- -
中岡崎町の完工年月(2026年3月)築の賃貸アパート ***号室の物件のお問い合わせ先・取り扱い店舗
ハウスコム 岡崎店
- アクセス
-
名鉄名古屋本線「東岡崎駅」北口徒歩8分
- 住所
- 〒444-0044 愛知県岡崎市康生通南2−32 Sビル 1階
- 営業時間
- 10:00~18:00
- 定休日
- なし
- 営業エリア
- 岡崎市、幸田町、豊川市、蒲郡市、安城市、西尾市
- 取引態様
- 賃貸仲介業











