クリークⅡ ***号室(2階/1R)の賃貸物件(賃貸アパート)
愛知県名古屋市南区にあるクリークⅡ ***号室は追い焚き、温水洗浄便座、シャワー付洗面化粧台、室内洗濯機置場、角部屋などが特徴です。最寄り駅の名鉄常滑線大江駅から徒歩9分です。クリークⅡ ***号室の詳細はハウスコム 東海通店までお気軽にお問い合わせください!
情報更新日:
次回更新予定日:
※次回更新予定日について:お店側では順次空室確認を行っていますが、次回更新予定日までに空室確認が行えない場合には、この物件情報は自動的に削除されます。
クリークⅡ ***号室の賃貸物件部屋概要
家賃 |
6.3万円
初期費用を |
|---|---|
共益費 |
5,500円
入居可能時期 |
敷金/礼金 |
- / 1ヶ月 |
保証金/ |
- / - |
最寄駅 |
|
所在地 |
愛知県名古屋市南区豊田 |
部屋番号 |
***号室 |
間取り |
1R(洋11.2) |
専有面積 |
33.62㎡ |
築年数 |
2008年8月(築18年) |
階数 |
2階部分(地上3階建) |
方位・位置 |
南 / 角部屋 |
物件種別 |
賃貸アパート |
構造 |
軽量鉄骨 |
駐車場 |
8,800円 |
小学校学区 |
ー |
中学校学区 |
ー |
他の空き部屋 |
ー |
- 学区データについて
- ※学区データは必ずしも正確とは限りません。詳細に関しては最寄店舗または各自治体の教育委員会に必ずご確認ください。
クリークⅡ ***号室の特徴
-
一人暮らしに人気の設備

-
カップルに人気の設備

-
家族に人気の設備

-
夫婦に人気の設備

-
三世代で人気の設備

-
外で子どもと遊びたい

-
雨の日でも洗濯したい

-
洋室で暮らしたい

-
服やおしゃれが好き

-
オークション・通販が好き

-
ガーデニングが好き

契約条件
ご契約時に保証人は不要です。 敷金が無料なため、初期費用が比較的安くなる傾向にあります。
セキュリティ
この物件の建物には、オートロックや宅配ボックスが設置されており、来客時には居室内のテレビモニターにて訪問者の顔を確認することができます。
室内設備
システムキッチンには、2つ以上のガスコンロが備え付けられています。 お風呂とトイレは別です。お風呂には、追い焚き機能が備わっています。 トイレは、温水洗浄便座機能付きになります。 女性に嬉しい設備のシャワーの付いている洗面化粧台があります。 洗濯に便利な設備として、室内洗濯機置場があります。
居室状況
お部屋の床は、フローリングとなっており、エアコンが設置されています。 インターネットも無料で入居後すぐ生活が始められます。 収納スペースとして、基本的な居室にクローゼットを設置、通常よりも収納力の高いウォークインクローゼット、玄関にはシューズボックスがあります。
建物設備共用部分
居室外の専有スペースとして、洗濯物を干すなどの用途として利用できるバルコニーがあります。 建物の共用スペースに、急な外出や不在がちのご家庭の荷物受け取りに便利な宅配ボックスが設置されています。 駐輪場が利用できます。
周辺施設
近くには、徒歩8分(588m)でアピタ名古屋南店があります。
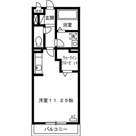
クリークⅡ ***号室の間取り
間取り:1R
間取詳細:1R(洋11.2)
専有面積:33.62㎡
方位:南
部屋位置:角部屋
クリークⅡ ***号室の設備
キッチン
システムキッチン
ガスコンロ
ガスコンロ二口以上
バス・トイレ
バス・トイレ別
追い焚き
温水洗浄便座
独立洗面台
シャワー付洗面化粧台
玄関
TVモニタ付インターホン
オートロック
宅配ボックス
収納
クローゼット
ウォークインクローゼット
シューズボックス
バルコニー
バルコニー
ルーフバルコニー
室内設備
エアコン
フローリング
室内洗濯機置場
位置・立地
2階以上
角部屋
南向き
インフラ
インターネット可
CATV
都市ガス
建物設備
駐輪場
入居条件
オンライン相談可
オンライン内見可
保証人不要
ライフステージ
一人暮らしに人気の設備
カップルに人気の設備
家族に人気の設備
夫婦に人気の設備
三世代で人気の設備
こだわり
外で子どもと遊びたい
雨の日でも洗濯したい
洋室で暮らしたい
趣味
服やおしゃれが好き
オークション・通販が好き
ガーデニングが好き
お得な条件
インターネット無料
クリークⅡ ***号室の賃貸契約情報
毎月支払う |
家賃6.3万円/月共益費5,500円/月 |
|---|---|
初期費用 |
敷金-礼金1ヶ月 (6.3万円)保証金-敷引き償却金- |
更新料 |
63,000円 |
鍵交換費用 |
- |
室内清掃費用 |
49,500円 |
駐車場料金 |
8,800円 |
損保・ |
借家賠付きの火災保険にご加入いただきます。 |
保証会社 |
加入要 保証会社利用料:初回保証料:35000円 月額保証料:月額総賃料の1%+800円 |
契約期間 |
- |
入居可能日 |
2026年02月 |
フリーレント期間 |
- |
取引形態 |
一般媒介 |
備考 |
- |
クリークⅡ ***号室の建物情報
建物名称 |
クリークⅡ |
|---|---|
最寄駅 |
|
所在地 |
愛知県名古屋市南区豊田 |
階層 |
2階部分(地上3階建) |
構造 |
軽量鉄骨 |
築年数 |
2008年8月(築18年) |
駐車場 |
8,800円 |
小学校学区 |
ー |
中学校学区 |
ー |
- 学区データについて
- ※学区データは必ずしも正確とは限りません。詳細に関しては最寄店舗または各自治体の教育委員会に必ずご確認ください。
無料この物件に問い合わせ
- クリークⅡ ***号室

-
6.3万円
(共益費
5,500円)
- 敷
- -
- 礼
- 1ヶ月
- 保
- -
- 償
- -
クリークⅡ ***号室の物件のお問い合わせ先・取り扱い店舗
ハウスコム 東海通店
- アクセス
-
名古屋市営地下鉄 名港線「東海通駅」4番出口徒歩2分
- 住所
- 〒455-0002 愛知県名古屋市港区東海通4丁目15−2 メゾン・ド・トウカイ 1階
- 営業時間
- 10:00~18:00
- 定休日
- 火曜日・水曜日
- 営業エリア
- 港区、中川区、熱田区、南区、東海市、海部郡蟹江町、弥富市
- 取引態様
- 賃貸仲介業























