CREATIF南品川 202号室(1階/2LDK)の賃貸物件(賃貸マンション)
東京都品川区にあるCREATIF南品川 202号室は温水洗浄便座、室内洗濯機置場、エレベーター、オンライン相談可、保証人不要などが特徴です。最寄り駅の京急本線新馬場駅から徒歩5分です。CREATIF南品川 202号室の詳細はハウスコム 大井町店までお気軽にお問い合わせください!
情報更新日:
次回更新予定日:
※次回更新予定日について:お店側では順次空室確認を行っていますが、次回更新予定日までに空室確認が行えない場合には、この物件情報は自動的に削除されます。
CREATIF南品川 202号室の賃貸物件部屋概要
家賃 |
19.8万円
初期費用を |
|---|---|
共益費 |
20,000円
入居可能時期 |
敷金/礼金 |
- / - |
保証金/ |
- / - |
最寄駅 |
|
所在地 |
東京都品川区南品川 |
部屋番号 |
202号室 |
間取り |
2LDK |
専有面積 |
37.71㎡ |
築年数 |
新築 |
階数 |
1階部分(地上5階地下1階建) |
方位・位置 |
北 / その他 |
物件種別 |
賃貸マンション |
構造 |
RC |
駐車場 |
- |
小学校学区 |
品川学園義務教育学校 |
中学校学区 |
品川学園義務教育学校 |
他の空き部屋 |
102号室 201号室 204号室 301号室 302号室 304号室 401号室 403号室 501号室 502号室 601号室 |
- 学区データについて
- ※学区データは必ずしも正確とは限りません。詳細に関しては最寄店舗または各自治体の教育委員会に必ずご確認ください。
CREATIF南品川 202号室の特徴
契約条件
この物件は、2人入居もご契約できます。 ペットの飼育もご相談ください。 また、ご契約時に保証人は不要です。 敷金と礼金が無料なため、初期費用が比較的安くなる傾向にあります。
セキュリティ
この物件の建物には、オートロックや防犯カメラや宅配ボックスが設置されており、来客時には居室内のテレビモニターにて訪問者の顔を確認することができます。
室内設備
システムキッチンには、2つ以上のガスコンロが備え付けられています。 トイレは、温水洗浄便座機能付きになります。 女性に嬉しい設備の独立した洗面化粧台があります。 洗濯に便利な設備として、室内洗濯機置場があります。
居室状況
お部屋の床は、フローリングとなっており、エアコンが設置されています。 収納スペースとして、基本的な居室にクローゼットがあります。
建物設備共用部分
建物の共用スペースに、日々の出入に便利なエレベーターや、いざという時の防犯カメラや、急な外出や不在がちのご家庭の荷物受け取りに便利な宅配ボックスが設置されています。
周辺施設
この物件の学区は、品川学園義務教育学校区・品川学園義務教育学校区です。
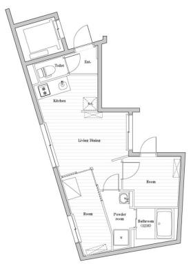
CREATIF南品川 202号室の間取り
間取り:2LDK
間取詳細:2LDK
専有面積:37.71㎡
方位:北
部屋位置:その他
CREATIF南品川 202号室の設備
キッチン
システムキッチン
ガスコンロ
ガスコンロ二口以上
バス・トイレ
バス・トイレ別
温水洗浄便座
独立洗面台
玄関
TVモニタ付インターホン
オートロック
宅配ボックス
収納
クローゼット
室内設備
エアコン
フローリング
室内洗濯機置場
位置・立地
1階
インフラ
インターネット可
BS
CS
建物設備
エレベーター
防犯カメラ
入居条件
ペット可・相談
2人入居可
オンライン相談可
オンライン内見可
保証人不要
即入居可
ライフステージ
一人暮らしに人気の設備
カップルに人気の設備
家族に人気の設備
夫婦に人気の設備
三世代で人気の設備
こだわり
雨の日でも洗濯したい
洋室で暮らしたい
CREATIF南品川 202号室の賃貸契約情報
毎月支払う |
家賃19.8万円/月共益費20,000円/月 |
|---|---|
初期費用 |
敷金-礼金-保証金-敷引き償却金- |
更新料 |
198,000円 |
鍵交換費用 |
- |
室内清掃費用 |
- |
駐車場料金 |
- |
損保・ |
借家賠付きの火災保険にご加入いただきます。 |
保証会社 |
加入要 保証会社利用料:管理会社指定 |
契約期間 |
2年 |
入居可能日 |
即入居可 |
フリーレント期間 |
- |
取引形態 |
一般媒介 |
備考 |
FR1ヶ月(共益費含む) 短期解約違約金あり退去時清掃費用30平米以上~40平米未満:60500円(税込) ペット飼育時敷金積み増し料金(償却)有り |
CREATIF南品川 202号室の建物情報
建物名称 |
CREATIF南品川 |
|---|---|
最寄駅 |
|
所在地 |
東京都品川区南品川 |
階層 |
1階部分(地上5階地下1階建) |
構造 |
RC |
築年数 |
新築 |
駐車場 |
- |
小学校学区 |
品川学園義務教育学校 |
中学校学区 |
品川学園義務教育学校 |
- 学区データについて
- ※学区データは必ずしも正確とは限りません。詳細に関しては最寄店舗または各自治体の教育委員会に必ずご確認ください。
無料この物件に問い合わせ
- CREATIF南品川 202号室

-
19.8万円
(共益費
20,000円)
- 敷
- -
- 礼
- -
- 保
- -
- 償
- -
CREATIF南品川 202号室の物件のお問い合わせ先・取り扱い店舗
ハウスコム 大井町店
- アクセス
-
京浜東北・根岸線「大井町駅」徒歩1分
- 住所
- 〒140-0014 東京都品川区大井1-2-19
- 営業時間
- 10:00~18:00
- 定休日
- 水曜日
- 営業エリア
- 品川区、大田区 港区
- 取引態様
- 賃貸仲介業
























