パークキューブ大井町 ***号室(12階/1K)の賃貸物件(賃貸マンション)
東京都品川区にあるパークキューブ大井町 ***号室は宅配ボックス、クローゼット、ペット可・相談、楽器可・相談、保証会社利用可などが特徴です。最寄り駅の京浜東北・根岸線大井町駅から徒歩5分です。パークキューブ大井町 ***号室の詳細はハウスコム 事業戦略室までお気軽にお問い合わせください!
情報更新日:
次回更新予定日:
※次回更新予定日について:お店側では順次空室確認を行っていますが、次回更新予定日までに空室確認が行えない場合には、この物件情報は自動的に削除されます。
パークキューブ大井町 ***号室の賃貸物件部屋概要
家賃 |
12.4万円
初期費用を |
|---|---|
共益費 |
10,000円
入居可能時期 |
敷金/礼金 |
1ヶ月 / 1ヶ月 |
保証金/ |
- / - |
最寄駅 |
|
所在地 |
東京都品川区大井 |
部屋番号 |
***号室 |
間取り |
1K |
専有面積 |
20.49㎡ |
築年数 |
2008年3月(築18年) |
階数 |
12階部分(地上14階建) |
方位・位置 |
東 / その他 |
物件種別 |
賃貸マンション |
構造 |
RC |
駐車場 |
無 |
小学校学区 |
山中小学校 |
中学校学区 |
伊藤学園義務教育学校 |
他の空き部屋 |
ー |
- 学区データについて
- ※学区データは必ずしも正確とは限りません。詳細に関しては最寄店舗または各自治体の教育委員会に必ずご確認ください。
パークキューブ大井町 ***号室の特徴
契約条件
ペットの飼育や楽器演奏もご相談ください。 また、保証会社との契約が必要となる場合があります。
セキュリティ
この物件の建物には、オートロックや宅配ボックスが設置されております。
室内設備
システムキッチンが備え付けられています。 洗濯に便利な設備として、室内洗濯機置場があります。
居室状況
エアコンが設置されています。 収納スペースとして、基本的な居室にクローゼットを設置、玄関にはシューズボックスがあります。
建物設備共用部分
居室外の専有スペースとして、洗濯物を干すなどの用途として利用できるバルコニーがあります。 建物の共用スペースに、日々の出入に便利なエレベーターや、急な外出や不在がちのご家庭の荷物受け取りに便利な宅配ボックスが設置されています。 バイク置き場が利用できます。
周辺施設
この物件の学区は、山中小学校区・伊藤学園義務教育学校区です。
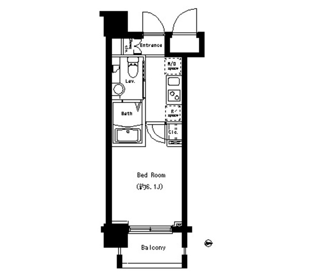
パークキューブ大井町 ***号室の間取り
間取り:1K
間取詳細:1K
専有面積:20.49㎡
方位:東
部屋位置:その他
パークキューブ大井町 ***号室の設備
キッチン
システムキッチン
バス・トイレ
バス・トイレ別
玄関
オートロック
宅配ボックス
収納
クローゼット
シューズボックス
バルコニー
バルコニー
ルーフバルコニー
室内設備
エアコン
室内洗濯機置場
位置・立地
2階以上
インフラ
インターネット可
BS
CS
建物設備
エレベーター
バイク置き場
入居条件
ペット可・相談
楽器可・相談
保証会社利用可
ライフステージ
一人暮らしに人気の設備
カップルに人気の設備
家族に人気の設備
夫婦に人気の設備
三世代で人気の設備
こだわり
外で子どもと遊びたい
雨の日でも洗濯したい
趣味
ガーデニングが好き
パークキューブ大井町 ***号室の賃貸契約情報
毎月支払う |
家賃12.4万円/月共益費10,000円/月 |
|---|---|
初期費用 |
敷金1ヶ月 (12.4万円)礼金1ヶ月 (12.4万円)保証金-敷引き償却金- |
更新料 |
124,000円 |
鍵交換費用 |
- |
室内清掃費用 |
- |
室内清掃費 |
55,000円 |
鍵交換費 |
16,500円 |
駐車場料金 |
無 |
損保・ |
借家賠付きの火災保険にご加入いただきます。 |
保証会社 |
利用可 保証会社利用料:初回保証委託料(最低20000円):月額賃料等の50%、 2年目以降:9600円/年 |
契約期間 |
2年 |
入居可能日 |
即入居可 |
フリーレント期間 |
- |
取引形態 |
一般媒介 |
備考 |
- |
パークキューブ大井町 ***号室の建物情報
建物名称 |
パークキューブ大井町 |
|---|---|
最寄駅 |
|
所在地 |
東京都品川区大井 |
階層 |
12階部分(地上14階建) |
構造 |
RC |
築年数 |
2008年3月(築18年) |
駐車場 |
無 |
小学校学区 |
山中小学校 |
中学校学区 |
伊藤学園義務教育学校 |
- 学区データについて
- ※学区データは必ずしも正確とは限りません。詳細に関しては最寄店舗または各自治体の教育委員会に必ずご確認ください。
無料この物件に問い合わせ
- パークキューブ大井町 ***号室

-
12.4万円
(共益費
10,000円)
- 敷
- 1ヶ月
- 礼
- 1ヶ月
- 保
- -
- 償
- -
パークキューブ大井町 ***号室の物件のお問い合わせ先・取り扱い店舗
ハウスコム 事業戦略室
- アクセス
-
山手線「品川駅」港南口徒歩3分
- 住所
- 〒108-0075 東京都港区港南2-16-1 品川イーストワンタワー9階
- 営業時間
- 10:00~17:00
- 定休日
- 土曜日・日曜日(祝日定休)
- 営業エリア
- 北区、荒川区、豊島区、文京区、台東区、中央区、新宿区、千代田区、渋谷区、港区、品川区
- 取引態様
- 賃貸仲介業



















