レディアス調布国領 101号室(1階/1K)の賃貸物件(賃貸マンション)
東京都調布市にあるレディアス調布国領 101号室はシステムキッチン、ガスコンロ二口以上、バルコニー、南向き、エレベーターなどが特徴です。最寄り駅の京王線国領駅から徒歩4分です。レディアス調布国領 101号室の詳細はハウスコム 調布店までお気軽にお問い合わせください!
情報更新日:
次回更新予定日:
※次回更新予定日について:お店側では順次空室確認を行っていますが、次回更新予定日までに空室確認が行えない場合には、この物件情報は自動的に削除されます。
レディアス調布国領 101号室の賃貸物件部屋概要
家賃 |
7.1万円
初期費用を |
|---|---|
共益費 |
10,000円
入居可能時期 |
敷金/礼金 |
- / - |
保証金/ |
- / - |
最寄駅 |
|
所在地 |
東京都調布市国領町 |
部屋番号 |
101号室 |
間取り |
1K |
専有面積 |
25.06㎡ |
築年数 |
2008年3月(築18年) |
階数 |
1階部分(地上6階建) |
方位・位置 |
南 / その他 |
物件種別 |
賃貸マンション |
構造 |
RC |
駐車場 |
空無し |
小学校学区 |
第二小学校 |
中学校学区 |
第三中学校 |
他の空き部屋 |
307号室 410号室 |
- 学区データについて
- ※学区データは必ずしも正確とは限りません。詳細に関しては最寄店舗または各自治体の教育委員会に必ずご確認ください。
レディアス調布国領 101号室の特徴
契約条件
敷金と礼金が無料なため、初期費用が比較的安くなる傾向にあります。
セキュリティ
この物件の建物には、オートロックや防犯カメラや宅配ボックスが設置されており、来客時には居室内のテレビモニターにて訪問者の顔を確認することができます。
室内設備
システムキッチンには、2つ以上のガスコンロが備え付けられています。 女性に嬉しい設備の独立した洗面化粧台があります。 洗濯に便利な設備として、室内洗濯機置場があります。
居室状況
エアコンが設置されています。 収納スペースとして、通常よりも収納力の高いウォークインクローゼット、玄関にはシューズボックスがあります。
建物設備共用部分
居室外の専有スペースとして、洗濯物を干すなどの用途として利用できるバルコニーがあります。 建物の共用スペースに、日々の出入に便利なエレベーターや、いざという時の防犯カメラや、急な外出や不在がちのご家庭の荷物受け取りに便利な宅配ボックスが設置されています。 駐輪場、バイク置き場が利用できます。
周辺施設
この物件の学区は、第二小学校区・第三中学校区です。
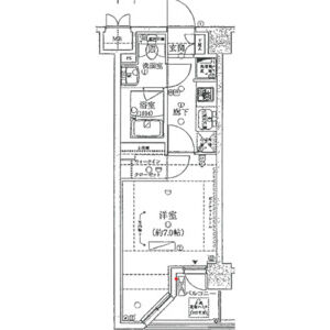
レディアス調布国領 101号室の間取り
間取り:1K
間取詳細:1K
専有面積:25.06㎡
方位:南
部屋位置:その他
レディアス調布国領 101号室の設備
キッチン
システムキッチン
ガスコンロ
ガスコンロ二口以上
バス・トイレ
バス・トイレ別
独立洗面台
玄関
TVモニタ付インターホン
オートロック
宅配ボックス
収納
ウォークインクローゼット
シューズボックス
バルコニー
バルコニー
ルーフバルコニー
室内設備
エアコン
室内洗濯機置場
位置・立地
1階
南向き
インフラ
インターネット可
CATV
BS
CS
建物設備
エレベーター
防犯カメラ
駐輪場
バイク置き場
ライフステージ
一人暮らしに人気の設備
カップルに人気の設備
家族に人気の設備
夫婦に人気の設備
三世代で人気の設備
こだわり
外で子どもと遊びたい
雨の日でも洗濯したい
趣味
服やおしゃれが好き
ガーデニングが好き
レディアス調布国領 101号室の賃貸契約情報
毎月支払う |
家賃7.1万円/月共益費10,000円/月 |
|---|---|
初期費用 |
敷金-礼金-保証金-敷引き償却金- |
更新料 |
71,000円 |
鍵交換費用 |
44,000円 |
室内清掃費用 |
- |
24時間安心サポート |
16,500円 |
基本クリーニング費用 |
60,500円 |
エアコンクリーニング費 |
16,500円 |
駐車場料金 |
空無し |
損保・ |
借家賠付きの火災保険にご加入いただきます。 |
保証会社 |
加入要 保証会社:エポスカード 保証会社利用料:初回保証料50% 月額保証料1% |
契約期間 |
- |
入居可能日 |
2026年01月下旬 |
フリーレント期間 |
- |
取引形態 |
一般媒介 |
備考 |
- |
レディアス調布国領 101号室の建物情報
建物名称 |
レディアス調布国領 |
|---|---|
最寄駅 |
|
所在地 |
東京都調布市国領町 |
階層 |
1階部分(地上6階建) |
構造 |
RC |
築年数 |
2008年3月(築18年) |
駐車場 |
空無し |
小学校学区 |
第二小学校 |
中学校学区 |
第三中学校 |
- 学区データについて
- ※学区データは必ずしも正確とは限りません。詳細に関しては最寄店舗または各自治体の教育委員会に必ずご確認ください。
無料この物件に問い合わせ
- レディアス調布国領 101号室

-
7.1万円
(共益費
10,000円)
- 敷
- -
- 礼
- -
- 保
- -
- 償
- -
レディアス調布国領 101号室の物件のお問い合わせ先・取り扱い店舗
ハウスコム 調布店
- アクセス
-
京王線「調布駅」徒歩2分
- 住所
- 〒182-0024 東京都調布市布田4丁目17−10 セントラルレジデンス調布 1階
- 営業時間
- 10:00~18:00
- 定休日
- 水曜日(年末年始(12月25日~1月3日))
- 営業エリア
- 調布市、府中市、稲城市、川崎市多摩区、世田谷区
- 取引態様
- 賃貸仲介業










