レオパレスグリーンステージ大宮 ***号室(2階/1K)の賃貸物件(賃貸アパート)
埼玉県さいたま市北区にあるレオパレスグリーンステージ大宮 ***号室はバス・トイレ別、TVモニタ付インターホン、宅配ボックス、エアコン、2階以上などが特徴です。最寄り駅のニューシャトル(埼玉新都市交通伊奈線)鉄道博物館(大成)駅から徒歩9分です。レオパレスグリーンステージ大宮 ***号室の詳細はハウスコム 大宮東口店までお気軽にお問い合わせください!
情報更新日:
次回更新予定日:
※次回更新予定日について:お店側では順次空室確認を行っていますが、次回更新予定日までに空室確認が行えない場合には、この物件情報は自動的に削除されます。
レオパレスグリーンステージ大宮 ***号室の賃貸物件部屋概要
家賃 |
6.7万円
初期費用を |
|---|---|
共益費 |
5,000円
入居可能時期 |
敷金/礼金 |
- / 67,000円 |
保証金/ |
- / - |
最寄駅 |
|
所在地 |
埼玉県さいたま市北区大成町 |
部屋番号 |
***号室 |
間取り |
1K |
専有面積 |
19.96㎡ |
築年数 |
2007年1月(築20年) |
階数 |
2階部分(地上2階建) |
方位・位置 |
ー / その他 |
物件種別 |
賃貸アパート |
構造 |
軽量鉄骨 |
駐車場 |
無 |
小学校学区 |
日進小学校 |
中学校学区 |
日進中学校 |
他の空き部屋 |
ー |
- 学区データについて
- ※学区データは必ずしも正確とは限りません。詳細に関しては最寄店舗または各自治体の教育委員会に必ずご確認ください。
レオパレスグリーンステージ大宮 ***号室の特徴
契約条件
敷金が無料なため、初期費用が比較的安くなる傾向にあります。
セキュリティ
この物件の建物には、宅配ボックスが設置されており、来客時には居室内のテレビモニターにて訪問者の顔を確認することができます。
室内設備
電気コンロが備え付けられています。 トイレは、温水洗浄便座機能付きになります。 洗濯に便利な設備として、室内洗濯機置場があります。
居室状況
居室には、ロフトが設置されており大規模な収納スペースやセパレートされた寝室として活用できます。 エアコンが設置されています。
建物設備共用部分
建物の共用スペースに、急な外出や不在がちのご家庭の荷物受け取りに便利な宅配ボックスが設置されています。
周辺施設
この物件の学区は、日進小学校区・日進中学校区です。
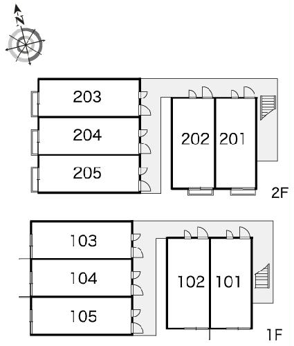
レオパレスグリーンステージ大宮 ***号室の間取り
間取り:1K
間取詳細:1K
専有面積:19.96㎡
方位:ー
部屋位置:その他
レオパレスグリーンステージ大宮 ***号室の設備
キッチン
電気コンロ
バス・トイレ
バス・トイレ別
温水洗浄便座
玄関
TVモニタ付インターホン
宅配ボックス
室内設備
エアコン
室内洗濯機置場
ロフト付
位置・立地
2階以上
最上階
インフラ
インターネット可
CATV
ライフステージ
一人暮らしに人気の設備
カップルに人気の設備
家族に人気の設備
夫婦に人気の設備
三世代で人気の設備
トレンド
ミニマリスト
こだわり
雨の日でも洗濯したい
寝るためだけの部屋
レオパレスグリーンステージ大宮 ***号室の賃貸契約情報
毎月支払う |
家賃6.7万円/月共益費5,000円/月 |
|---|---|
初期費用 |
敷金-礼金67,000円保証金-敷引き償却金- |
更新料 |
- |
鍵交換費用 |
16,500円 |
室内清掃費用 |
41,800円 |
抗菌施工(任意) |
23,760円 |
駐車場料金 |
無 |
損保・ |
借家賠付きの火災保険にご加入いただきます。 |
保証会社 |
加入要 保証会社利用料:保証料:86990円(契約内容により100~120%で変動有)※記載金額は120%の場合 |
契約期間 |
- |
入居可能日 |
2026年06月中旬 |
フリーレント期間 |
- |
取引形態 |
一般媒介 |
備考 |
- |
レオパレスグリーンステージ大宮 ***号室の建物情報
建物名称 |
レオパレスグリーンステージ大宮 |
|---|---|
最寄駅 |
|
所在地 |
埼玉県さいたま市北区大成町 |
階層 |
2階部分(地上2階建) |
構造 |
軽量鉄骨 |
築年数 |
2007年1月(築20年) |
駐車場 |
無 |
小学校学区 |
日進小学校 |
中学校学区 |
日進中学校 |
- 学区データについて
- ※学区データは必ずしも正確とは限りません。詳細に関しては最寄店舗または各自治体の教育委員会に必ずご確認ください。
無料この物件に問い合わせ
- レオパレスグリーンステージ大宮 ***号室

-
6.7万円
(共益費
5,000円)
- 敷
- -
- 礼
- 67,000円
- 保
- -
- 償
- -
レオパレスグリーンステージ大宮 ***号室の物件のお問い合わせ先・取り扱い店舗
ハウスコム 大宮東口店
- アクセス
-
京浜東北・根岸線「大宮駅」東口(北)徒歩1分
- 住所
- 〒330-0846 埼玉県さいたま市大宮区大門町1丁目92−7 ハイカラ堂ビル 2階
- 営業時間
- 10:00~18:00
- 定休日
- 水曜日
- 営業エリア
- さいたま市大宮区、中央区、北区、西区、見沼区、西区、浦和区、岩槻区、上尾市、蓮田市、白岡市、伊奈町 etc.
- 取引態様
- 賃貸仲介業































