ソフィアン C号室(3LDK)の賃貸物件(賃貸一戸建て)
東京都小平市にあるソフィアン C号室は追い焚き、独立洗面台、TVモニタ付インターホン、ルーフバルコニー、照明器具付などが特徴です。最寄り駅の武蔵野線新小平駅から徒歩9分です。ソフィアン C号室の詳細はハウスコム 武蔵小金井店までお気軽にお問い合わせください!
情報更新日:
次回更新予定日:
※次回更新予定日について:お店側では順次空室確認を行っていますが、次回更新予定日までに空室確認が行えない場合には、この物件情報は自動的に削除されます。
ソフィアン C号室の賃貸物件部屋概要
家賃 |
16万円
初期費用を |
|---|---|
共益費 |
-
入居可能時期 |
敷金/礼金 |
1ヶ月 / 1ヶ月 |
保証金/ |
- / - |
最寄駅 |
|
所在地 |
東京都小平市小川町 |
部屋番号 |
C号室 |
間取り |
3LDK |
専有面積 |
87.57㎡ |
築年数 |
新築 |
階数 |
地上2階建 |
方位・位置 |
南 / その他 |
物件種別 |
賃貸一戸建て |
構造 |
木造 |
駐車場 |
空有 賃料に含む |
小学校学区 |
小平第十五小学校 |
中学校学区 |
小平第二中学校 |
他の空き部屋 |
A号室 B号室 D号室 |
- 学区データについて
- ※学区データは必ずしも正確とは限りません。詳細に関しては最寄店舗または各自治体の教育委員会に必ずご確認ください。
ソフィアン C号室の特徴
-
一人暮らしに人気の設備

-
カップルに人気の設備

-
家族に人気の設備

-
夫婦に人気の設備

-
三世代で人気の設備

-
外で子どもと遊びたい

-
雨の日でも洗濯したい

-
料理が好き

-
推し活グッズを飾りたい

-
ガーデニングが好き

契約条件
ペットの飼育、法人契約・事務所のご利用もご相談ください。
セキュリティ
来客時には居室内のテレビモニターにて訪問者の顔を確認することができます。
室内設備
システムキッチンには、IHコンロが備え付けられています。 お風呂とトイレは別です。お風呂には、追い焚き機能が備わっています。 トイレは、温水洗浄便座機能付きになります。 女性に嬉しい設備のシャワーの付いている洗面化粧台があります。 洗濯に便利な設備として、室内洗濯機置場があります。浴室乾燥機も設置されているので、梅雨時の生乾き臭も比較的防ぐことができます。
居室状況
エアコンが設置されています。 照明器具が備え付けられており、入居後すぐ生活が始められます。 収納スペースとして、基本的な居室にクローゼットを設置、玄関にはシューズボックスがあります。
建物設備共用部分
居室外の専有スペースとして、洗濯物を干すなどの用途として利用できるバルコニーがあります。 駐車場があり、無料で利用することができます。駐輪場が利用できます。
周辺施設
この物件の学区は、小平第十五小学校区・小平第二中学校区です。
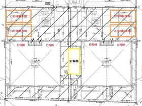
ソフィアン C号室の間取り
間取り:3LDK
間取詳細:3LDK
専有面積:87.57㎡
方位:南
部屋位置:その他
ソフィアン C号室の設備
キッチン
システムキッチン
カウンターキッチン
IHコンロ
バス・トイレ
バス・トイレ別
追い焚き
浴室乾燥機
温水洗浄便座
独立洗面台
シャワー付洗面化粧台
玄関
TVモニタ付インターホン
収納
クローゼット
シューズボックス
バルコニー
バルコニー
ルーフバルコニー
室内設備
エアコン
室内洗濯機置場
照明器具付
位置・立地
南向き
インフラ
都市ガス
建物設備
駐輪場
入居条件
ペット可・相談
事務所可・相談
ライフステージ
一人暮らしに人気の設備
カップルに人気の設備
家族に人気の設備
夫婦に人気の設備
三世代で人気の設備
こだわり
外で子どもと遊びたい
雨の日でも洗濯したい
趣味
料理が好き
推し活グッズを飾りたい
ガーデニングが好き
お得な条件
駐車場無料
ソフィアン C号室の賃貸契約情報
毎月支払う |
家賃16万円/月共益費- |
|---|---|
初期費用 |
敷金1ヶ月 (16万円)礼金1ヶ月 (16万円)保証金-敷引き償却金- |
更新料 |
160,000円 |
鍵交換費用 |
- |
室内清掃費用 |
- |
ホームマイスター24 |
16,500円 |
駐車場料金 |
空有 賃料に含む |
損保・ |
借家賠付きの火災保険にご加入いただきます。 |
保証会社 |
加入要 保証会社利用料:期間:2年 初回保証料:総賃料の100%、継続保証料:1年毎に総賃料の15% |
契約期間 |
2年 |
入居可能日 |
2026年04月上旬 |
フリーレント期間 |
- |
取引形態 |
一般媒介 |
備考 |
短期解約違約金あり(1年未満/1ヶ月分賃料)、ペット飼育時:敷金1ヶ月積み増し(頭数・種類は要相談)諸条件の変更の可能性あり、退去時クリーニング費用105,000円(税別)、町会費発生時、入居者加入と負担。 |
ソフィアン C号室の建物情報
建物名称 |
ソフィアン |
|---|---|
最寄駅 |
|
所在地 |
東京都小平市小川町 |
階層 |
地上2階建 |
構造 |
木造 |
築年数 |
新築 |
駐車場 |
空有 賃料に含む |
小学校学区 |
小平第十五小学校 |
中学校学区 |
小平第二中学校 |
- 学区データについて
- ※学区データは必ずしも正確とは限りません。詳細に関しては最寄店舗または各自治体の教育委員会に必ずご確認ください。
無料この物件に問い合わせ
- ソフィアン C号室

-
16万円
(共益費
-)
- 敷
- 1ヶ月
- 礼
- 1ヶ月
- 保
- -
- 償
- -
ソフィアン C号室の物件のお問い合わせ先・取り扱い店舗
ハウスコム 武蔵小金井店
- アクセス
-
中央本線(JR東日本)「武蔵小金井駅」南口徒歩1分
- 住所
- 〒184-0004 東京都小金井市本町6丁目14−45 OSビル 1階
- 営業時間
- 10:00~18:00
- 定休日
- なし
- 営業エリア
- 小金井市、国分寺市、小平市、武蔵野市、三鷹市、府中市、西東京市、国立市
- 取引態様
- 賃貸仲介業


