ビレッジハウス西端1号棟 0508号室(5階/1LDK)の賃貸物件(賃貸マンション)
愛知県碧南市にあるビレッジハウス西端1号棟 0508号室は温水洗浄便座、バルコニー、ルーフバルコニー、最上階、角部屋などが特徴です。最寄り駅の東海道本線(JR東海)三河安城駅からバスで20分、榎前から徒歩15分です。ビレッジハウス西端1号棟 0508号室の詳細はハウスコム 新安城店までお気軽にお問い合わせください!
情報更新日:
次回更新予定日:
※次回更新予定日について:お店側では順次空室確認を行っていますが、次回更新予定日までに空室確認が行えない場合には、この物件情報は自動的に削除されます。
ビレッジハウス西端1号棟 0508号室の賃貸物件部屋概要
家賃 |
3.82万円
初期費用を |
|---|---|
共益費 |
-
入居可能時期 |
敷金/礼金 |
- / - |
保証金/ |
- / - |
最寄駅 |
|
所在地 |
愛知県碧南市平山町 |
部屋番号 |
0508号室 |
間取り |
1LDK |
専有面積 |
33.09㎡ |
築年数 |
1971年3月(築55年) |
階数 |
5階部分(地上5階建) |
方位・位置 |
南 / 角部屋 |
物件種別 |
賃貸マンション |
構造 |
RC |
駐車場 |
3,300円 |
小学校学区 |
西端小学校 |
中学校学区 |
西端中学校 |
他の空き部屋 |
ー |
- 学区データについて
- ※学区データは必ずしも正確とは限りません。詳細に関しては最寄店舗または各自治体の教育委員会に必ずご確認ください。
ビレッジハウス西端1号棟 0508号室の特徴
契約条件
この物件は、2人入居もご契約できます。 敷金と礼金が無料なため、初期費用が比較的安くなる傾向にあります。
室内設備
トイレは、温水洗浄便座機能付きになります。
居室状況
エアコンが設置されています。
建物設備共用部分
居室外の専有スペースとして、洗濯物を干すなどの用途として利用できるバルコニーがあります。
周辺施設
この物件の学区は、西端小学校区・西端中学校区です。
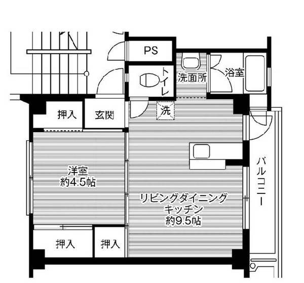
ビレッジハウス西端1号棟 0508号室の間取り
間取り:1LDK
間取詳細:1LDK
専有面積:33.09㎡
方位:南
部屋位置:角部屋
ビレッジハウス西端1号棟 0508号室の設備
バス・トイレ
バス・トイレ別
温水洗浄便座
バルコニー
バルコニー
ルーフバルコニー
室内設備
エアコン
位置・立地
2階以上
最上階
角部屋
南向き
インフラ
インターネット可
プロパンガス
入居条件
2人入居可
即入居可
ライフステージ
一人暮らしに人気の設備
カップルに人気の設備
家族に人気の設備
夫婦に人気の設備
三世代で人気の設備
こだわり
日当たり重視
外で子どもと遊びたい
寝るためだけの部屋
趣味
ガーデニングが好き
ビレッジハウス西端1号棟 0508号室の賃貸契約情報
毎月支払う |
家賃3.82万円/月共益費- |
|---|---|
初期費用 |
敷金-礼金-保証金-敷引き償却金- |
更新料 |
- |
鍵交換費用 |
- |
室内清掃費用 |
- |
退去時クリーニング費用 |
40,038円 |
駐車場料金 |
3,300円 |
損保・ |
借家賠付きの火災保険にご加入いただきます。 |
保証会社 |
|
契約期間 |
2年 |
入居可能日 |
即入居可 |
フリーレント期間 |
- |
取引形態 |
一般媒介 |
備考 |
- |
ビレッジハウス西端1号棟 0508号室の建物情報
建物名称 |
ビレッジハウス西端1号棟 |
|---|---|
最寄駅 |
|
所在地 |
愛知県碧南市平山町 |
階層 |
5階部分(地上5階建) |
構造 |
RC |
築年数 |
1971年3月(築55年) |
駐車場 |
3,300円 |
小学校学区 |
西端小学校 |
中学校学区 |
西端中学校 |
1/3 外観
- 学区データについて
- ※学区データは必ずしも正確とは限りません。詳細に関しては最寄店舗または各自治体の教育委員会に必ずご確認ください。
無料この物件に問い合わせ
- ビレッジハウス西端1号棟 0508号室

-
3.82万円
(共益費
-)
- 敷
- -
- 礼
- -
- 保
- -
- 償
- -
ビレッジハウス西端1号棟 0508号室の物件のお問い合わせ先・取り扱い店舗
ハウスコム 新安城店
駅徒歩1分以内
駅徒歩3分以内
駅徒歩5分以内
- アクセス
-
名鉄名古屋本線「新安城駅」徒歩1分
- 住所
- 〒446-0071 愛知県安城市今池町1丁目2−13 LーKLASSE1階
- 営業時間
- 10:00~18:00
- 定休日
- なし
- 営業エリア
- 安城市・西尾市・岡崎市・刈谷市・知立市その他
- 取引態様
- 賃貸仲介業
お問い合わせNo. HC5-3740170-0508-0146
























