コンフォリア・リヴ永福町 404号室(4階/2LDK)の賃貸物件(賃貸マンション)
東京都杉並区にあるコンフォリア・リヴ永福町 404号室はTVモニタ付インターホン、バルコニー、フローリング、2階以上、オンライン内見可などが特徴です。最寄り駅の京王井の頭線永福町駅から徒歩12分です。コンフォリア・リヴ永福町 404号室の詳細はハウスコム 明大前店までお気軽にお問い合わせください!
情報更新日:
次回更新予定日:
※次回更新予定日について:お店側では順次空室確認を行っていますが、次回更新予定日までに空室確認が行えない場合には、この物件情報は自動的に削除されます。
コンフォリア・リヴ永福町 404号室の賃貸物件部屋概要
家賃 |
27.2万円
初期費用を |
|---|---|
共益費 |
15,000円
入居可能時期 |
敷金/礼金 |
1ヶ月 / - |
保証金/ |
- / - |
最寄駅 |
|
所在地 |
東京都杉並区大宮 |
部屋番号 |
404号室 |
間取り |
2LDK(LDK13.4・洋6.2・洋4) |
専有面積 |
55.64㎡ |
築年数 |
新築 |
階数 |
4階部分(地上6階建) |
方位・位置 |
西 / その他 |
物件種別 |
賃貸マンション |
構造 |
RC |
駐車場 |
- |
小学校学区 |
大宮小学校 |
中学校学区 |
大宮中学校 |
他の空き部屋 |
101号室 102号室 103号室 104号室 105号室 106号室 301号室 303号室 304号室 305号室 306号室 308号室 309号室 310号室 401号室 402号室 403号室 405号室 406号室 504号室 602号室 |
- 学区データについて
- ※学区データは必ずしも正確とは限りません。詳細に関しては最寄店舗または各自治体の教育委員会に必ずご確認ください。
コンフォリア・リヴ永福町 404号室の特徴
-
一人暮らしに人気の設備

-
カップルに人気の設備

-
家族に人気の設備

-
夫婦に人気の設備

-
三世代で人気の設備

-
外で子どもと遊びたい

-
雨の日でも洗濯したい

-
洋室で暮らしたい

-
料理が好き

-
服やおしゃれが好き

-
靴やスニーカーが好き

-
推し活グッズを飾りたい

-
オークション・通販が好き

-
ガーデニングが好き

契約条件
この物件は、2人入居もご契約できます。 ペットの飼育もご相談ください。 礼金が無料なため、初期費用が比較的安くなる傾向にあります。
セキュリティ
この物件の建物には、オートロックや宅配ボックスが設置されており、来客時には居室内のテレビモニターにて訪問者の顔を確認することができます。
室内設備
システムキッチンが備え付けられています。 お風呂とトイレは別です。お風呂には、追い焚き機能が備わっています。 トイレは、温水洗浄便座機能付きになります。 女性に嬉しい設備のシャワーの付いている洗面化粧台があります。 洗濯に便利な設備として、室内洗濯機置場があります。浴室乾燥機も設置されているので、梅雨時の生乾き臭も比較的防ぐことができます。
居室状況
お部屋の床は、フローリングとなっており、エアコンが設置されています。 インターネットも無料で入居後すぐ生活が始められます。 収納スペースとして、基本的な居室にクローゼットを設置、通常よりも収納力の高いウォークインクローゼット、玄関にはシューズインクローゼットがあります。
建物設備共用部分
居室外の専有スペースとして、洗濯物を干すなどの用途として利用できるバルコニーがあります。 建物の共用スペースに、日々の出入に便利なエレベーターや、急な外出や不在がちのご家庭の荷物受け取りに便利な宅配ボックスが設置されています。
周辺施設
この物件の学区は、大宮小学校区・大宮中学校区です。
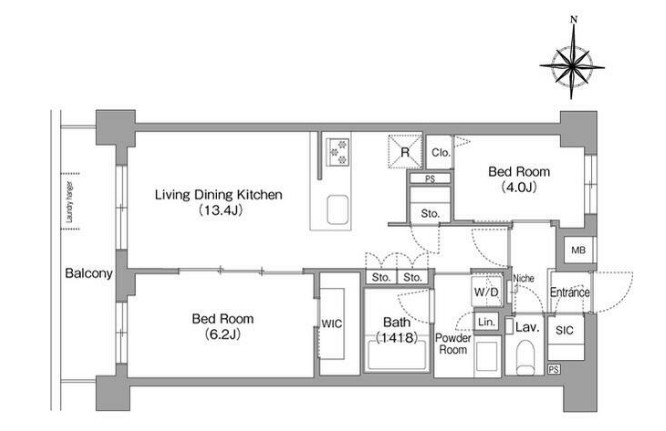
コンフォリア・リヴ永福町 404号室の間取り
間取り:2LDK
間取詳細:2LDK(LDK13.4・洋6.2・洋4)
専有面積:55.64㎡
方位:西
部屋位置:その他
コンフォリア・リヴ永福町 404号室の設備
キッチン
システムキッチン
カウンターキッチン
バス・トイレ
バス・トイレ別
追い焚き
浴室乾燥機
温水洗浄便座
独立洗面台
シャワー付洗面化粧台
玄関
TVモニタ付インターホン
オートロック
宅配ボックス
収納
クローゼット
ウォークインクローゼット
シューズインクローゼット
シューズボックス
バルコニー
バルコニー
ルーフバルコニー
室内設備
エアコン
フローリング
室内洗濯機置場
位置・立地
2階以上
インフラ
インターネット可
CATV
BS
CS
建物設備
エレベーター
入居条件
ペット可・相談
2人入居可
オンライン相談可
オンライン内見可
ライフステージ
一人暮らしに人気の設備
カップルに人気の設備
家族に人気の設備
夫婦に人気の設備
三世代で人気の設備
こだわり
外で子どもと遊びたい
雨の日でも洗濯したい
洋室で暮らしたい
趣味
料理が好き
服やおしゃれが好き
靴やスニーカーが好き
推し活グッズを飾りたい
オークション・通販が好き
ガーデニングが好き
お得な条件
インターネット無料
コンフォリア・リヴ永福町 404号室の賃貸契約情報
毎月支払う |
家賃27.2万円/月共益費15,000円/月 |
|---|---|
初期費用 |
敷金1ヶ月 (27.2万円)礼金-保証金-敷引き償却金- |
更新料 |
272,000円 |
鍵交換費用 |
- |
室内清掃費用 |
58,850円 |
駐車場料金 |
- |
損保・ |
借家賠付きの火災保険にご加入いただきます。 |
保証会社 |
加入要 保証会社利用料:保証料:賃料等の50%(最低2万)、月額保証料:賃料等の1%(更新料無) |
契約期間 |
2年 |
入居可能日 |
2026年03月上旬 |
フリーレント期間 |
- |
取引形態 |
一般媒介 |
備考 |
エアコン清掃費:22000円 ペット飼育時敷金積み増し料金(償却)有り |
コンフォリア・リヴ永福町 404号室の建物情報
建物名称 |
コンフォリア・リヴ永福町 |
|---|---|
最寄駅 |
|
所在地 |
東京都杉並区大宮 |
階層 |
4階部分(地上6階建) |
構造 |
RC |
築年数 |
新築 |
駐車場 |
- |
小学校学区 |
大宮小学校 |
中学校学区 |
大宮中学校 |
- 学区データについて
- ※学区データは必ずしも正確とは限りません。詳細に関しては最寄店舗または各自治体の教育委員会に必ずご確認ください。
無料この物件に問い合わせ
- コンフォリア・リヴ永福町 404号室

-
27.2万円
(共益費
15,000円)
- 敷
- 1ヶ月
- 礼
- -
- 保
- -
- 償
- -
コンフォリア・リヴ永福町 404号室の物件のお問い合わせ先・取り扱い店舗
ハウスコム 明大前店
- アクセス
-
京王線「明大前駅」中央口徒歩1分
京王井の頭線「明大前駅」中央口徒歩1分
- 住所
- 〒156-0043 東京都世田谷区松原2丁目44−1 グランシーン明大前 1階
- 営業時間
- 10:00~18:00
- 定休日
- なし
- 営業エリア
- 世田谷区・杉並区・渋谷区・中野区・新宿区・三鷹市・調布市
- 取引態様
- 賃貸仲介業





