サンビレッジ 202号室(2階/2LDK)の賃貸物件(賃貸アパート)
愛知県高浜市にあるサンビレッジ 202号室はバス・トイレ別、TVモニタ付インターホン、最上階、オンライン内見可、保証人不要などが特徴です。最寄り駅の名鉄三河線吉浜駅から徒歩17分です。サンビレッジ 202号室の詳細はハウスコム 刈谷店までお気軽にお問い合わせください!
情報更新日:
次回更新予定日:
※次回更新予定日について:お店側では順次空室確認を行っていますが、次回更新予定日までに空室確認が行えない場合には、この物件情報は自動的に削除されます。
サンビレッジ 202号室の賃貸物件部屋概要
家賃 |
6.5万円
初期費用を |
|---|---|
共益費 |
5,500円
入居可能時期 |
敷金/礼金 |
- / 70,000円 |
保証金/ |
- / - |
最寄駅 |
|
所在地 |
愛知県高浜市神明町 |
部屋番号 |
202号室 |
間取り |
2LDK(LDK13・洋6・洋6) |
専有面積 |
55.44㎡ |
築年数 |
2002年7月(築24年) |
階数 |
2階部分(地上2階建) |
方位・位置 |
南東 / 角部屋 |
物件種別 |
賃貸アパート |
構造 |
軽量鉄骨 |
駐車場 |
3,300円 |
小学校学区 |
翼小学校 |
中学校学区 |
高浜中学校 |
他の空き部屋 |
ー |
- 学区データについて
- ※学区データは必ずしも正確とは限りません。詳細に関しては最寄店舗または各自治体の教育委員会に必ずご確認ください。
サンビレッジ 202号室の特徴
-
一人暮らしに人気の設備

-
カップルに人気の設備

-
家族に人気の設備

-
夫婦に人気の設備

-
三世代で人気の設備

-
収納重視

-
外で子どもと遊びたい

-
雨の日でも洗濯したい

-
洋室で暮らしたい

-
持ち物をスッキリ隠す収納部屋

-
ガーデニングが好き

契約条件
この物件は、2人入居もご契約できます。 また、ご契約時に保証人は不要です。 敷金が無料なため、初期費用が比較的安くなる傾向にあります。
セキュリティ
来客時には居室内のテレビモニターにて訪問者の顔を確認することができます。
室内設備
お風呂とトイレは別です。お風呂には、追い焚き機能が備わっています。 トイレは、温水洗浄便座機能付きになります。 女性に嬉しい設備のシャワーの付いている洗面化粧台があります。 洗濯に便利な設備として、室内洗濯機置場があります。
居室状況
お部屋の床は、フローリングとなっており、エアコンが設置されています。 照明器具が備え付けられており、インターネットも無料で入居後すぐ生活が始められます。 収納スペースとして、基本的な居室にクローゼットを設置、玄関にはシューズボックス、また、床下収納といったあれば嬉しい用途別収納があります。
建物設備共用部分
居室外の専有スペースとして、洗濯物を干すなどの用途として利用できるバルコニーがあります。 平面駐車場があります。駐輪場が利用できます。
周辺施設
この物件の学区は、翼小学校区・高浜中学校区です。
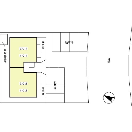
サンビレッジ 202号室の間取り
間取り:2LDK
間取詳細:2LDK(LDK13・洋6・洋6)
専有面積:55.44㎡
方位:南東
部屋位置:角部屋
サンビレッジ 202号室の設備
バス・トイレ
バス・トイレ別
追い焚き
温水洗浄便座
独立洗面台
シャワー付洗面化粧台
玄関
TVモニタ付インターホン
収納
クローゼット
シューズボックス
床下収納
全居室収納
バルコニー
バルコニー
ルーフバルコニー
室内設備
エアコン
フローリング
室内洗濯機置場
照明器具付
位置・立地
2階以上
最上階
角部屋
インフラ
CATV
プロパンガス
建物設備
駐車場
平面駐車場
駐輪場
入居条件
2人入居可
オンライン相談可
オンライン内見可
保証人不要
ライフステージ
一人暮らしに人気の設備
カップルに人気の設備
家族に人気の設備
夫婦に人気の設備
三世代で人気の設備
こだわり
収納重視
外で子どもと遊びたい
雨の日でも洗濯したい
洋室で暮らしたい
持ち物をスッキリ隠す収納部屋
趣味
ガーデニングが好き
お得な条件
インターネット無料
サンビレッジ 202号室の賃貸契約情報
毎月支払う |
家賃6.5万円/月共益費5,500円/月 |
|---|---|
初期費用 |
敷金-礼金70,000円保証金-敷引き償却金- |
更新料 |
- |
鍵交換費用 |
- |
室内清掃費用 |
77,000円 |
駐車場料金 |
3,300円 |
損保・ |
借家賠付きの火災保険にご加入いただきます。 |
保証会社 |
加入要 保証会社利用料:初回保証料35000円、月額1%+800円 |
契約期間 |
2年 |
入居可能日 |
2026年04月 |
フリーレント期間 |
- |
取引形態 |
一般媒介 |
備考 |
- |
サンビレッジ 202号室の建物情報
建物名称 |
サンビレッジ |
|---|---|
最寄駅 |
|
所在地 |
愛知県高浜市神明町 |
階層 |
2階部分(地上2階建) |
構造 |
軽量鉄骨 |
築年数 |
2002年7月(築24年) |
駐車場 |
3,300円 |
小学校学区 |
翼小学校 |
中学校学区 |
高浜中学校 |
- 学区データについて
- ※学区データは必ずしも正確とは限りません。詳細に関しては最寄店舗または各自治体の教育委員会に必ずご確認ください。
無料この物件に問い合わせ
- サンビレッジ 202号室

-
6.5万円
(共益費
5,500円)
- 敷
- -
- 礼
- 70,000円
- 保
- -
- 償
- -
サンビレッジ 202号室の物件のお問い合わせ先・取り扱い店舗
ハウスコム 刈谷店
- アクセス
-
名鉄三河線「刈谷駅」徒歩2分
東海道本線(JR東海)「刈谷駅」徒歩3分
- 住所
- 〒448-0858 愛知県刈谷市若松町1−6 オカベビル 1階
- 営業時間
- 10:00~18:00
- 定休日
- なし
- 営業エリア
- 刈谷市・大府市・高浜市・碧南市・豊明市・東浦町・知立市・東海市・名古屋市緑区・半田市・安城市・西尾市
- 取引態様
- 賃貸仲介業





























