アークリード洛北 404号室(4階/1K)の賃貸物件(賃貸アパート)
京都府京都市左京区にあるアークリード洛北 404号室はバス・トイレ別、独立洗面台、角部屋、都市ガス、防犯カメラなどが特徴です。最寄り駅の叡山電車茶山・京都芸術大学駅から徒歩3分です。アークリード洛北 404号室の詳細はハウスコム 太秦天神川店までお気軽にお問い合わせください!
情報更新日:
次回更新予定日:
※次回更新予定日について:お店側では順次空室確認を行っていますが、次回更新予定日までに空室確認が行えない場合には、この物件情報は自動的に削除されます。
アークリード洛北 404号室の賃貸物件部屋概要
家賃 |
6.9万円
初期費用を |
|---|---|
共益費 |
6,000円
入居可能時期 |
敷金/礼金 |
- / 100,000円 |
保証金/ |
- / - |
最寄駅 |
|
所在地 |
京都府京都市左京区田中大久保町 |
部屋番号 |
404号室 |
間取り |
1K |
専有面積 |
22.68㎡ |
築年数 |
2016年1月(築10年) |
階数 |
4階部分(地上4階建) |
方位・位置 |
南 / 角部屋 |
物件種別 |
賃貸アパート |
構造 |
鉄骨造 |
駐車場 |
空無し |
小学校学区 |
養徳小学校 |
中学校学区 |
高野中学校 |
他の空き部屋 |
***号室 207号室 ***号室 304号室 ***号室 |
- 学区データについて
- ※学区データは必ずしも正確とは限りません。詳細に関しては最寄店舗または各自治体の教育委員会に必ずご確認ください。
アークリード洛北 404号室の特徴
-
一人暮らしに人気の設備

-
カップルに人気の設備

-
家族に人気の設備

-
夫婦に人気の設備

-
三世代で人気の設備

-
日当たり重視

-
セキュリティ対策重視

-
外で子どもと遊びたい

-
雨の日でも洗濯したい

-
洋室で暮らしたい

-
寝るためだけの部屋

-
ガーデニングが好き

契約条件
敷金が無料なため、初期費用が比較的安くなる傾向にあります。
セキュリティ
この物件の建物には、オートロックや防犯カメラや宅配ボックスが設置されており、来客時には居室内のテレビモニターにて訪問者の顔を確認することができます。
室内設備
システムキッチンには、2つ以上のガスコンロが備え付けられています。 トイレは、温水洗浄便座機能付きになります。 女性に嬉しい設備の独立した洗面化粧台があります。 洗濯に便利な設備として、室内洗濯機置場があります。浴室乾燥機も設置されているので、梅雨時の生乾き臭も比較的防ぐことができます。
居室状況
お部屋の床は、フローリングとなっており、エアコンが設置されています。
建物設備共用部分
居室外の専有スペースとして、洗濯物を干すなどの用途として利用できるバルコニーがあります。 建物の共用スペースに、日々の出入に便利なエレベーターや、いざという時の防犯カメラや、急な外出や不在がちのご家庭の荷物受け取りに便利な宅配ボックスが設置されています。 駐輪場が利用できます。
周辺施設
この物件の学区は、養徳小学校区・高野中学校区です。
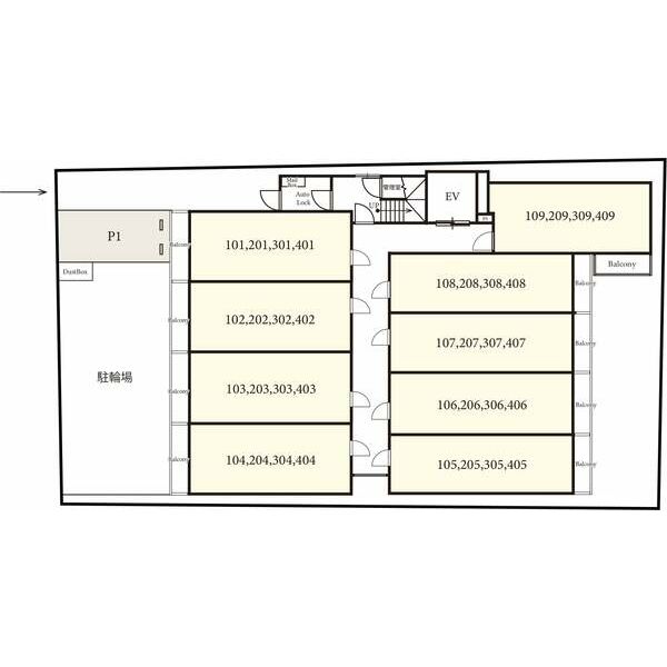
アークリード洛北 404号室の間取り
間取り:1K
間取詳細:1K
専有面積:22.68㎡
方位:南
部屋位置:角部屋
アークリード洛北 404号室の設備
キッチン
システムキッチン
ガスコンロ
ガスコンロ二口以上
バス・トイレ
バス・トイレ別
浴室乾燥機
温水洗浄便座
独立洗面台
玄関
TVモニタ付インターホン
オートロック
宅配ボックス
バルコニー
バルコニー
ルーフバルコニー
室内設備
エアコン
フローリング
室内洗濯機置場
位置・立地
2階以上
最上階
角部屋
南向き
インフラ
インターネット可
BS
都市ガス
建物設備
エレベーター
防犯カメラ
駐輪場
ライフステージ
一人暮らしに人気の設備
カップルに人気の設備
家族に人気の設備
夫婦に人気の設備
三世代で人気の設備
こだわり
日当たり重視
セキュリティ対策重視
外で子どもと遊びたい
雨の日でも洗濯したい
洋室で暮らしたい
寝るためだけの部屋
趣味
ガーデニングが好き
アークリード洛北 404号室の賃貸契約情報
毎月支払う |
家賃6.9万円/月共益費6,000円/月 |
|---|---|
初期費用 |
敷金-礼金100,000円保証金-敷引き償却金- |
更新料 |
22,000円 |
鍵交換費用 |
24,200円 |
室内清掃費用 |
- |
初期費用:リブリクラブ会員費、室内消毒代 |
24,200円 |
ランニング費用:定額水道代(月額)、町内会費(月額) |
2,300円 |
その他費用:退去時クリーニング費(解約時) |
35,200円 |
駐車場料金 |
空無し |
損保・ |
借家賠付きの火災保険にご加入いただきます。 |
保証会社 |
加入要 保証会社利用料:株式会社スマートクレジット(プランP) 基本料:月額支払合計の100% 、月額料:月額支払合計の1.1%、口振手数料:330円(税込)/月 |
契約期間 |
2年 |
入居可能日 |
2026年03月中旬 |
フリーレント期間 |
- |
取引形態 |
一般媒介 |
備考 |
- |
アークリード洛北 404号室の建物情報
建物名称 |
アークリード洛北 |
|---|---|
最寄駅 |
|
所在地 |
京都府京都市左京区田中大久保町 |
階層 |
4階部分(地上4階建) |
構造 |
鉄骨造 |
築年数 |
2016年1月(築10年) |
駐車場 |
空無し |
小学校学区 |
養徳小学校 |
中学校学区 |
高野中学校 |
- 学区データについて
- ※学区データは必ずしも正確とは限りません。詳細に関しては最寄店舗または各自治体の教育委員会に必ずご確認ください。
無料この物件に問い合わせ
- アークリード洛北 404号室

-
6.9万円
(共益費
6,000円)
- 敷
- -
- 礼
- 100,000円
- 保
- -
- 償
- -
アークリード洛北 404号室の物件のお問い合わせ先・取り扱い店舗
ハウスコム 太秦天神川店
- アクセス
-
京都市営地下鉄 東西線「太秦天神川駅」徒歩1分
嵐電(京福電鉄)嵐山本線「嵐電天神川駅」徒歩1分
- 住所
- 〒616-8104 京都府京都市右京区太秦下刑部町12 サンサ右京 1階
- 営業時間
- 10:00~18:00
- 定休日
- 水曜日(年末年始休み12月25日から1月3日まで)
- 営業エリア
- 右京区、中京区、西京区、北区、上京区、下京区、南区、左京区、東山区
- 取引態様
- 賃貸仲介業

















