ARKMARK国分寺 202号室(2階/1K)の賃貸物件(賃貸マンション)
東京都国分寺市にあるARKMARK国分寺 202号室はシステムキッチン、宅配ボックス、エアコン、2階以上、角部屋などが特徴です。最寄り駅の中央本線(JR東日本)国分寺駅から徒歩3分です。ARKMARK国分寺 202号室の詳細はハウスコム 国分寺店までお気軽にお問い合わせください!
情報更新日:
次回更新予定日:
※次回更新予定日について:お店側では順次空室確認を行っていますが、次回更新予定日までに空室確認が行えない場合には、この物件情報は自動的に削除されます。
ARKMARK国分寺 202号室の賃貸物件部屋概要
家賃 |
10万円
初期費用を |
|---|---|
共益費 |
8,000円
入居可能時期 |
敷金/礼金 |
1ヶ月 / 1ヶ月 |
保証金/ |
- / - |
最寄駅 |
|
所在地 |
東京都国分寺市本町 |
部屋番号 |
202号室 |
間取り |
1K(洋7.3) |
専有面積 |
25.12㎡ |
築年数 |
2023年6月(築3年) |
階数 |
2階部分(地上13階建) |
方位・位置 |
北 / 角部屋 |
物件種別 |
賃貸マンション |
構造 |
RC |
駐車場 |
- |
小学校学区 |
第七小学校 |
中学校学区 |
第二中学校 |
他の空き部屋 |
ー |
- 学区データについて
- ※学区データは必ずしも正確とは限りません。詳細に関しては最寄店舗または各自治体の教育委員会に必ずご確認ください。
この物件にお問い合わせ
ARKMARK国分寺 202号室の特徴
契約条件
ペットの飼育もご相談ください。
セキュリティ
この物件の建物には、オートロックや防犯カメラや宅配ボックスが設置されており、来客時には居室内のテレビモニターにて訪問者の顔を確認することができます。
室内設備
システムキッチンが備え付けられています。 トイレは、温水洗浄便座機能付きになります。 女性に嬉しい設備の独立した洗面化粧台があります。 洗濯に便利な設備として、浴室乾燥機も設置されているので、梅雨時の生乾き臭も比較的防ぐことができます。
居室状況
お部屋の床は、フローリングとなっており、エアコンが設置されています。 収納スペースとして、基本的な居室にクローゼットを設置、玄関にはシューズボックスがあります。
建物設備共用部分
建物の共用スペースに、日々の出入に便利なエレベーターや、いざという時の防犯カメラや、急な外出や不在がちのご家庭の荷物受け取りに便利な宅配ボックスが設置されています。
周辺施設
この物件の学区は、第七小学校区・第二中学校区です。
この物件にお問い合わせ
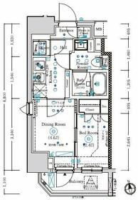
ARKMARK国分寺 202号室の間取り
間取り:1K
間取詳細:1K(洋7.3)
専有面積:25.12㎡
方位:北
部屋位置:角部屋
ARKMARK国分寺 202号室の設備
キッチン
システムキッチン
バス・トイレ
バス・トイレ別
浴室乾燥機
温水洗浄便座
独立洗面台
玄関
TVモニタ付インターホン
オートロック
宅配ボックス
収納
クローゼット
シューズボックス
室内設備
エアコン
フローリング
位置・立地
2階以上
角部屋
インフラ
都市ガス
建物設備
エレベーター
防犯カメラ
入居条件
ペット可・相談
ライフステージ
一人暮らしに人気の設備
カップルに人気の設備
家族に人気の設備
夫婦に人気の設備
三世代で人気の設備
こだわり
セキュリティ対策重視
雨の日でも洗濯したい
洋室で暮らしたい
この物件にお問い合わせ
ARKMARK国分寺 202号室の賃貸契約情報
毎月支払う |
家賃10万円/月共益費8,000円/月 |
|---|---|
初期費用 |
敷金1ヶ月 (10万円)礼金1ヶ月 (10万円)保証金-敷引き償却金- |
更新料 |
100,000円 |
鍵交換費用 |
28,600円 |
室内清掃費用 |
- |
事務管理手数料 |
11,000円 |
駐車場料金 |
- |
損保・ |
借家賠付きの火災保険にご加入いただきます。 |
保証会社 |
加入要 保証会社利用料:JACCS JACCS 初回保証料/総賃料の50% 年間保証料/10,000円 口座振替手数料/350円 |
契約期間 |
2年 |
入居可能日 |
2026年03月下旬 |
フリーレント期間 |
- |
取引形態 |
一般媒介 |
備考 |
- |
ARKMARK国分寺 202号室の建物情報
建物名称 |
ARKMARK国分寺 |
|---|---|
最寄駅 |
|
所在地 |
東京都国分寺市本町 |
階層 |
2階部分(地上13階建) |
構造 |
RC |
築年数 |
2023年6月(築3年) |
駐車場 |
- |
小学校学区 |
第七小学校 |
中学校学区 |
第二中学校 |
- 学区データについて
- ※学区データは必ずしも正確とは限りません。詳細に関しては最寄店舗または各自治体の教育委員会に必ずご確認ください。
無料この物件に問い合わせ
- ARKMARK国分寺 202号室

-
10万円
(共益費
8,000円)
- 敷
- 1ヶ月
- 礼
- 1ヶ月
- 保
- -
- 償
- -
ARKMARK国分寺 202号室の物件のお問い合わせ先・取り扱い店舗
ハウスコム 国分寺店
- アクセス
-
中央本線(JR東日本)「国分寺駅」南口徒歩1分
- 住所
- 〒185-0021 東京都国分寺市南町3丁目18−17 樋野ビル 2階
- 営業時間
- 10:00~18:00
- 定休日
- なし(2025年12月25日~2026年1月3日まで年末年始休業)
- 営業エリア
- 国分寺市、小平市、府中市、小金井市、国立市、東大和市
- 取引態様
- 賃貸仲介業









