エヌステージジェイアール新白岡駅前 0509号室(5階/1K)の賃貸物件(賃貸マンション)
埼玉県白岡市にあるエヌステージジェイアール新白岡駅前 0509号室はガスコンロ、温水洗浄便座、独立洗面台、インターネット可、バイク置き場などが特徴です。最寄り駅の東北本線新白岡駅から徒歩1分です。エヌステージジェイアール新白岡駅前 0509号室の詳細はハウスコム 久喜店までお気軽にお問い合わせください!
情報更新日:
次回更新予定日:
※次回更新予定日について:お店側では順次空室確認を行っていますが、次回更新予定日までに空室確認が行えない場合には、この物件情報は自動的に削除されます。
エヌステージジェイアール新白岡駅前 0509号室の賃貸物件部屋概要
家賃 |
5.53万円
初期費用を |
|---|---|
共益費 |
18,000円
入居可能時期 |
敷金/礼金 |
- / - |
保証金/ |
- / - |
最寄駅 |
|
所在地 |
埼玉県白岡市新白岡 |
部屋番号 |
0509号室 |
間取り |
1K(洋6.8・K2) |
専有面積 |
22.48㎡ |
築年数 |
新築 |
階数 |
5階部分(地上9階建) |
方位・位置 |
南 / その他 |
物件種別 |
賃貸マンション |
構造 |
RC |
駐車場 |
- |
小学校学区 |
篠津小学校 |
中学校学区 |
篠津中学校 |
他の空き部屋 |
***号室 0202号室 ***号室 0204号室 ***号室 0205号室 ***号室 0207号室 ***号室 0210号室 0302号室 0303号室 0304号室 0305号室 0306号室 0307号室 0308号室 0309号室 0310号室 0403号室 0404号室 0405号室 0407号室 0408号室 0409号室 0410号室 0411号室 0502号室 0504号室 0505号室 0506号室 0507号室 0508号室 0510号室 0511号室 0601号室 0602号室 0603号室 0604号室 0605号室 0606号室 0607号室 0608号室 0609号室 0610号室 0611号室 0702号室 ***号室 ***号室 0703号室 ***号室 0704号室 ***号室 0705号室 ***号室 0707号室 ***号室 0708号室 ***号室 0709号室 ***号室 0711号室 ***号室 0803号室 ***号室 0804号室 ***号室 0805号室 0806号室 ***号室 ***号室 0808号室 ***号室 0810号室 ***号室 0901号室 ***号室 0902号室 ***号室 0903号室 ***号室 0904号室 ***号室 0905号室 ***号室 0906号室 ***号室 0908号室 ***号室 0909号室 |
- 学区データについて
- ※学区データは必ずしも正確とは限りません。詳細に関しては最寄店舗または各自治体の教育委員会に必ずご確認ください。
エヌステージジェイアール新白岡駅前 0509号室の特徴
契約条件
敷金と礼金が無料なため、初期費用が比較的安くなる傾向にあります。
セキュリティ
この物件の建物には、オートロックや宅配ボックスが設置されております。
室内設備
システムキッチンには、2つ以上のガスコンロが備え付けられています。 トイレは、温水洗浄便座機能付きになります。 女性に嬉しい設備の独立した洗面化粧台があります。 洗濯に便利な設備として、浴室乾燥機も設置されているので、梅雨時の生乾き臭も比較的防ぐことができます。
居室状況
お部屋の床は、フローリングとなっており、エアコンが設置されています。 収納スペースとして、基本的な居室にクローゼットを設置、玄関にはシューズボックスがあります。
建物設備共用部分
建物の共用スペースに、日々の出入に便利なエレベーターや、急な外出や不在がちのご家庭の荷物受け取りに便利な宅配ボックスが設置されています。 駐輪場、バイク置き場が利用できます。
周辺施設
この物件の学区は、篠津小学校区・篠津中学校区です。
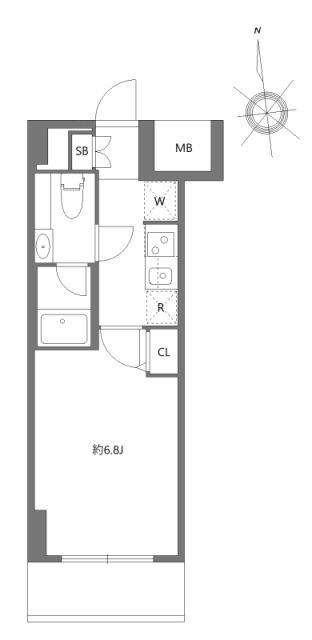
エヌステージジェイアール新白岡駅前 0509号室の間取り
間取り:1K
間取詳細:1K(洋6.8・K2)
専有面積:22.48㎡
方位:南
部屋位置:その他
エヌステージジェイアール新白岡駅前 0509号室の設備
キッチン
システムキッチン
ガスコンロ
ガスコンロ二口以上
バス・トイレ
バス・トイレ別
浴室乾燥機
温水洗浄便座
独立洗面台
玄関
オートロック
宅配ボックス
収納
クローゼット
シューズボックス
室内設備
エアコン
フローリング
位置・立地
2階以上
南向き
インフラ
インターネット可
BS
CS
都市ガス
建物設備
エレベーター
駐輪場
バイク置き場
ライフステージ
一人暮らしに人気の設備
カップルに人気の設備
家族に人気の設備
夫婦に人気の設備
三世代で人気の設備
こだわり
雨の日でも洗濯したい
洋室で暮らしたい
寝るためだけの部屋
エヌステージジェイアール新白岡駅前 0509号室の賃貸契約情報
毎月支払う |
家賃5.53万円/月共益費18,000円/月 |
|---|---|
初期費用 |
敷金-礼金-保証金-敷引き償却金- |
更新料 |
55,300円 |
鍵交換費用 |
- |
室内清掃費用 |
- |
プレミアデスク(2年/税込) |
22,000円 |
契約時ルームクリーニング費用(税込) |
60,500円 |
駐車場料金 |
- |
損保・ |
借家賠付きの火災保険にご加入いただきます。 |
保証会社 |
加入要 保証会社利用料:【ルームID】月額総賃料の50%/月次保証料、月額総賃料の1.5%/1年毎10,000円 【オリコフォレントインシュア】→月額総賃料の50%~ /年間保証料 |
契約期間 |
2年 |
入居可能日 |
即入居可 |
フリーレント期間 |
- |
取引形態 |
一般媒介 |
備考 |
短期解約違約金:1年未満2カ月 解約予告:2カ月前 プレミアデスク代の中に登録料4400円(税込)を含みます。 プレミアデスク(2年/税込):16500円 契約時ルームクリーニング費用(税込):55000円 |
エヌステージジェイアール新白岡駅前 0509号室の建物情報
建物名称 |
エヌステージジェイアール新白岡駅前 |
|---|---|
最寄駅 |
|
所在地 |
埼玉県白岡市新白岡 |
階層 |
5階部分(地上9階建) |
構造 |
RC |
築年数 |
新築 |
駐車場 |
- |
小学校学区 |
篠津小学校 |
中学校学区 |
篠津中学校 |
- 学区データについて
- ※学区データは必ずしも正確とは限りません。詳細に関しては最寄店舗または各自治体の教育委員会に必ずご確認ください。
無料この物件に問い合わせ
- エヌステージジェイアール新白岡駅前 0509号室

-
5.53万円
(共益費
18,000円)
- 敷
- -
- 礼
- -
- 保
- -
- 償
- -
エヌステージジェイアール新白岡駅前 0509号室の物件のお問い合わせ先・取り扱い店舗
ハウスコム 久喜店
- アクセス
-
東北本線「久喜駅」徒歩2分
- 住所
- 〒346-0003 埼玉県久喜市久喜中央2丁目2−6 YAORIビル 1階
- 営業時間
- 10:00~18:00
- 定休日
- なし
- 営業エリア
- 久喜市内はもちろんのこと、埼玉県東部全域・茨城県南西部・群馬県南部など、お任せ下さい!
- 取引態様
- 賃貸仲介業





































