ルフォンプログレ上野御徒町 901号室(9階/1LDK)の賃貸物件(賃貸マンション)
東京都台東区にあるルフォンプログレ上野御徒町 901号室はTVモニタ付インターホン、クローゼット、エアコン、室内洗濯機置場、防犯カメラなどが特徴です。最寄り駅の都営大江戸線新御徒町駅から徒歩6分です。ルフォンプログレ上野御徒町 901号室の詳細はハウスコム 日暮里店までお気軽にお問い合わせください!
情報更新日:
次回更新予定日:
※次回更新予定日について:お店側では順次空室確認を行っていますが、次回更新予定日までに空室確認が行えない場合には、この物件情報は自動的に削除されます。
ルフォンプログレ上野御徒町 901号室の賃貸物件部屋概要
家賃 |
18.6万円
初期費用を |
|---|---|
共益費 |
20,000円
入居可能時期 |
敷金/礼金 |
1ヶ月 / - |
保証金/ |
- / - |
最寄駅 |
|
所在地 |
東京都台東区台東 |
部屋番号 |
901号室 |
間取り |
1LDK(洋3.8・DK9.1) |
専有面積 |
32.75㎡ |
築年数 |
新築 |
階数 |
9階部分(地上15階建) |
方位・位置 |
西 / 角部屋 |
物件種別 |
賃貸マンション |
構造 |
RC |
駐車場 |
空無し |
小学校学区 |
平成小学校 |
中学校学区 |
御徒町台東中学校 |
他の空き部屋 |
0302号室 0303号室 0702号室 0704号室 1003号室 1101号室 1103号室 1401号室 201号室 203号室 501号室 503号室 504号室 |
- 学区データについて
- ※学区データは必ずしも正確とは限りません。詳細に関しては最寄店舗または各自治体の教育委員会に必ずご確認ください。
ルフォンプログレ上野御徒町 901号室の特徴
-
一人暮らしに人気の設備

-
カップルに人気の設備

-
家族に人気の設備

-
夫婦に人気の設備

-
三世代で人気の設備

-
セキュリティ対策重視

-
外で子どもと遊びたい

-
雨の日でも洗濯したい

-
洋室で暮らしたい

-
ガーデニングが好き

契約条件
ペットの飼育もご相談ください。 礼金が無料なため、初期費用が比較的安くなる傾向にあります。
セキュリティ
この物件の建物には、オートロックや防犯カメラや宅配ボックスが設置されており、来客時には居室内のテレビモニターにて訪問者の顔を確認することができます。
室内設備
システムキッチンには、ガスコンロが備え付けられています。 トイレは、温水洗浄便座機能付きになります。 女性に嬉しい設備の独立した洗面化粧台があります。 洗濯に便利な設備として、室内洗濯機置場があります。浴室乾燥機も設置されているので、梅雨時の生乾き臭も比較的防ぐことができます。
居室状況
お部屋の床は、フローリングとなっており、エアコンが設置されています。 収納スペースとして、基本的な居室にクローゼットを設置、玄関にはシューズボックスがあります。
建物設備共用部分
居室外の専有スペースとして、洗濯物を干すなどの用途として利用できるバルコニーがあります。 建物の共用スペースに、日々の出入に便利なエレベーターや、いざという時の防犯カメラや、急な外出や不在がちのご家庭の荷物受け取りに便利な宅配ボックスが設置されています。 駐輪場、バイク置き場が利用できます。
周辺施設
この物件の学区は、平成小学校区・御徒町台東中学校区です。
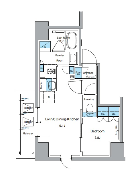
ルフォンプログレ上野御徒町 901号室の間取り
間取り:1LDK
間取詳細:1LDK(洋3.8・DK9.1)
専有面積:32.75㎡
方位:西
部屋位置:角部屋
ルフォンプログレ上野御徒町 901号室の設備
キッチン
システムキッチン
ガスコンロ
バス・トイレ
バス・トイレ別
浴室乾燥機
温水洗浄便座
独立洗面台
玄関
TVモニタ付インターホン
オートロック
宅配ボックス
収納
クローゼット
シューズボックス
バルコニー
バルコニー
ルーフバルコニー
室内設備
エアコン
フローリング
室内洗濯機置場
位置・立地
2階以上
角部屋
インフラ
インターネット可
CATV
BS
CS
建物設備
エレベーター
防犯カメラ
駐輪場
バイク置き場
入居条件
ペット可・相談
オンライン相談可
オンライン内見可
即入居可
ライフステージ
一人暮らしに人気の設備
カップルに人気の設備
家族に人気の設備
夫婦に人気の設備
三世代で人気の設備
こだわり
セキュリティ対策重視
外で子どもと遊びたい
雨の日でも洗濯したい
洋室で暮らしたい
趣味
ガーデニングが好き
ルフォンプログレ上野御徒町 901号室の賃貸契約情報
毎月支払う |
家賃18.6万円/月共益費20,000円/月 |
|---|---|
初期費用 |
敷金1ヶ月 (18.6万円)礼金-保証金-敷引き償却金- |
更新料 |
186,000円 |
鍵交換費用 |
- |
室内清掃費用 |
- |
駐車場料金 |
空無し |
損保・ |
借家賠付きの火災保険にご加入いただきます。 |
保証会社 |
加入要 保証会社利用料:初回保証料賃料共益費等20%、以後1年毎20% 月々口振事務手数料220円 利用設備(駐車場・バイク置き場)利用料も保証料算出賃料に含まれます。 |
契約期間 |
2年 |
入居可能日 |
即入居可 |
フリーレント期間 |
- |
取引形態 |
一般媒介 |
備考 |
駐輪場:有料 4400円 清掃代:39600円20平米超1375円/平米 民泊利用不可 1年未満の短期違約あり ペット飼育時敷金積み増し(償却)有り |
ルフォンプログレ上野御徒町 901号室の建物情報
建物名称 |
ルフォンプログレ上野御徒町 |
|---|---|
最寄駅 |
|
所在地 |
東京都台東区台東 |
階層 |
9階部分(地上15階建) |
構造 |
RC |
築年数 |
新築 |
駐車場 |
空無し |
小学校学区 |
平成小学校 |
中学校学区 |
御徒町台東中学校 |
- 学区データについて
- ※学区データは必ずしも正確とは限りません。詳細に関しては最寄店舗または各自治体の教育委員会に必ずご確認ください。
無料この物件に問い合わせ
- ルフォンプログレ上野御徒町 901号室

-
18.6万円
(共益費
20,000円)
- 敷
- 1ヶ月
- 礼
- -
- 保
- -
- 償
- -
ルフォンプログレ上野御徒町 901号室の物件のお問い合わせ先・取り扱い店舗
ハウスコム 日暮里店
- アクセス
-
山手線「日暮里駅」東口徒歩1分
- 住所
- 〒116-0013 東京都荒川区西日暮里2丁目25−1 ステーションガーデンタワー 1階
- 営業時間
- 10:00~18:00
- 定休日
- なし
- 営業エリア
- 荒川区、台東区、文京区、足立区、葛飾区、墨田区、江東区、江戸川区、北区、豊島区
- 取引態様
- 賃貸仲介業





















