ミランダSouth ViewⅡ 201号室(2階/1R)の賃貸物件(賃貸アパート)
大阪府和泉市にあるミランダSouth ViewⅡ 201号室はクローゼット、エアコン、駐車場、平面駐車場、駐輪場などが特徴です。最寄り駅の南海泉北線和泉中央駅から徒歩14分です。ミランダSouth ViewⅡ 201号室の詳細はハウスコム 和泉府中店までお気軽にお問い合わせください!
情報更新日:
次回更新予定日:
※次回更新予定日について:お店側では順次空室確認を行っていますが、次回更新予定日までに空室確認が行えない場合には、この物件情報は自動的に削除されます。
ミランダSouth ViewⅡ 201号室の賃貸物件部屋概要
家賃 |
7万円
初期費用を |
|---|---|
共益費 |
5,000円
入居可能時期 |
敷金/礼金 |
- / 70,000円 |
保証金/ |
- / - |
最寄駅 |
|
所在地 |
大阪府和泉市唐国町 |
部屋番号 |
201号室 |
間取り |
1R |
専有面積 |
26.50㎡ |
築年数 |
2019年7月(築7年) |
階数 |
2階部分(地上2階建) |
方位・位置 |
南東 / その他 |
物件種別 |
賃貸アパート |
構造 |
木造 |
駐車場 |
9,350円 |
小学校学区 |
北松尾小学校 |
中学校学区 |
石尾中学校 |
他の空き部屋 |
105号室 |
- 学区データについて
- ※学区データは必ずしも正確とは限りません。詳細に関しては最寄店舗または各自治体の教育委員会に必ずご確認ください。
ミランダSouth ViewⅡ 201号室の特徴
契約条件
敷金が無料なため、初期費用が比較的安くなる傾向にあります。
セキュリティ
来客時には居室内のテレビモニターにて訪問者の顔を確認することができます。
室内設備
電気コンロが備え付けられています。 トイレは、温水洗浄便座機能付きになります。 洗濯に便利な設備として、室内洗濯機置場があります。
居室状況
エアコンが設置されています。 収納スペースとして、基本的な居室にクローゼットがあります。
建物設備共用部分
居室外の専有スペースとして、洗濯物を干すなどの用途として利用できるバルコニーがあります。 平面駐車場があります。駐輪場が利用できます。
周辺施設
この物件の学区は、北松尾小学校区・石尾中学校区です。
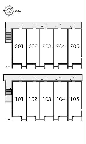
ミランダSouth ViewⅡ 201号室の間取り
間取り:1R
間取詳細:1R
専有面積:26.50㎡
方位:南東
部屋位置:その他
ミランダSouth ViewⅡ 201号室の設備
キッチン
電気コンロ
バス・トイレ
バス・トイレ別
温水洗浄便座
玄関
TVモニタ付インターホン
収納
クローゼット
バルコニー
バルコニー
ルーフバルコニー
室内設備
エアコン
室内洗濯機置場
位置・立地
2階以上
最上階
インフラ
インターネット可
建物設備
駐車場
平面駐車場
駐輪場
ライフステージ
一人暮らしに人気の設備
カップルに人気の設備
家族に人気の設備
夫婦に人気の設備
三世代で人気の設備
こだわり
外で子どもと遊びたい
雨の日でも洗濯したい
趣味
ガーデニングが好き
ミランダSouth ViewⅡ 201号室の賃貸契約情報
毎月支払う |
家賃7万円/月共益費5,000円/月 |
|---|---|
初期費用 |
敷金-礼金70,000円保証金-敷引き償却金- |
更新料 |
- |
鍵交換費用 |
16,500円 |
室内清掃費用 |
41,800円 |
抗菌施工(任意) |
23,760円 |
駐車場料金 |
9,350円 |
損保・ |
借家賠付きの火災保険にご加入いただきます。 |
保証会社 |
加入要 保証会社利用料:保証料:84590円(契約内容により100~120%で変動有)※記載金額は120%の場合 |
契約期間 |
- |
入居可能日 |
2026年03月下旬 |
フリーレント期間 |
- |
取引形態 |
一般媒介 |
備考 |
保証料:71990円(契約内容により100~120%で変動有)記載金額は120%の場合 |
ミランダSouth ViewⅡ 201号室の建物情報
建物名称 |
ミランダSouth ViewⅡ |
|---|---|
最寄駅 |
|
所在地 |
大阪府和泉市唐国町 |
階層 |
2階部分(地上2階建) |
構造 |
木造 |
築年数 |
2019年7月(築7年) |
駐車場 |
9,350円 |
小学校学区 |
北松尾小学校 |
中学校学区 |
石尾中学校 |
- 学区データについて
- ※学区データは必ずしも正確とは限りません。詳細に関しては最寄店舗または各自治体の教育委員会に必ずご確認ください。
無料この物件に問い合わせ
- ミランダSouth ViewⅡ 201号室

-
7万円
(共益費
5,000円)
- 敷
- -
- 礼
- 70,000円
- 保
- -
- 償
- -
ミランダSouth ViewⅡ 201号室の物件のお問い合わせ先・取り扱い店舗
ハウスコム 和泉府中店
- アクセス
-
阪和線「和泉府中駅」徒歩1分
- 住所
- 〒594-0071 大阪府和泉市府中町1丁目1−8 露口ビル 1階
- 営業時間
- 10:00~18:00
- 定休日
- なし(年末年始は休業(12月25日から1月3日まで))
- 営業エリア
- 和泉市、泉大津市、岸和田市、堺市南区、堺市西区、泉北郡忠岡町、忠岡町、貝塚市、泉佐野市
- 取引態様
- 賃貸仲介業



















