MFPRコート蒲田 809号室(8階/1R)の賃貸物件(賃貸マンション)
東京都大田区にあるMFPRコート蒲田 809号室はフローリング、BS、CS、エレベーター、駐輪場などが特徴です。最寄り駅の京急本線京急蒲田駅から徒歩8分です。MFPRコート蒲田 809号室の詳細はハウスコム 蒲田店までお気軽にお問い合わせください!
情報更新日:
次回更新予定日:
※次回更新予定日について:お店側では順次空室確認を行っていますが、次回更新予定日までに空室確認が行えない場合には、この物件情報は自動的に削除されます。
MFPRコート蒲田 809号室の賃貸物件部屋概要
家賃 |
12.4万円
初期費用を |
|---|---|
共益費 |
8,000円
入居可能時期 |
敷金/礼金 |
1ヶ月 / 1ヶ月 |
保証金/ |
- / - |
最寄駅 |
|
所在地 |
東京都大田区蒲田 |
部屋番号 |
809号室 |
間取り |
1R(洋6.9) |
専有面積 |
22.24㎡ |
築年数 |
2006年9月(築20年) |
階数 |
8階部分(地上10階建) |
方位・位置 |
東 / その他 |
物件種別 |
賃貸マンション |
構造 |
RC |
駐車場 |
無 |
小学校学区 |
新宿小学校 |
中学校学区 |
蒲田中学校 |
他の空き部屋 |
***号室 201号室 206号室 210号室 303号室 ***号室 504号室 509号室 706号室 710号室 ***号室 |
- 学区データについて
- ※学区データは必ずしも正確とは限りません。詳細に関しては最寄店舗または各自治体の教育委員会に必ずご確認ください。
MFPRコート蒲田 809号室の特徴
契約条件
ペットの飼育もご相談ください。
セキュリティ
この物件の建物には、オートロックや宅配ボックスが設置されております。
室内設備
女性に嬉しい設備の独立した洗面化粧台があります。 洗濯に便利な設備として、室内洗濯機置場があります。
居室状況
お部屋の床は、フローリングとなっており、エアコンが設置されています。
建物設備共用部分
居室外の専有スペースとして、洗濯物を干すなどの用途として利用できるバルコニーがあります。 建物の共用スペースに、日々の出入に便利なエレベーターや、急な外出や不在がちのご家庭の荷物受け取りに便利な宅配ボックスが設置されています。 駐輪場が利用できます。
周辺施設
この物件の学区は、新宿小学校区・蒲田中学校区です。
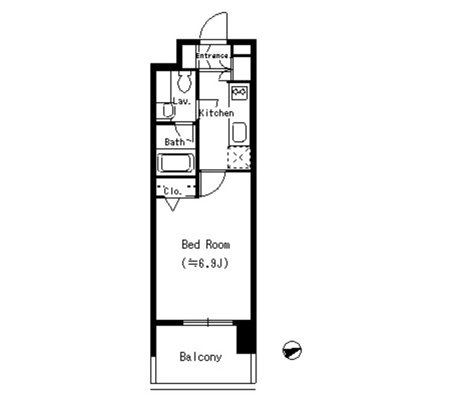
MFPRコート蒲田 809号室の間取り
間取り:1R
間取詳細:1R(洋6.9)
専有面積:22.24㎡
方位:東
部屋位置:その他
MFPRコート蒲田 809号室の設備
バス・トイレ
バス・トイレ別
独立洗面台
玄関
オートロック
宅配ボックス
バルコニー
バルコニー
ルーフバルコニー
室内設備
エアコン
フローリング
室内洗濯機置場
位置・立地
2階以上
インフラ
インターネット可
CATV
BS
CS
建物設備
エレベーター
駐輪場
入居条件
ペット可・相談
ライフステージ
一人暮らしに人気の設備
カップルに人気の設備
家族に人気の設備
夫婦に人気の設備
三世代で人気の設備
こだわり
外で子どもと遊びたい
雨の日でも洗濯したい
洋室で暮らしたい
趣味
ガーデニングが好き
MFPRコート蒲田 809号室の賃貸契約情報
毎月支払う |
家賃12.4万円/月共益費8,000円/月 |
|---|---|
初期費用 |
敷金1ヶ月 (12.4万円)礼金1ヶ月 (12.4万円)保証金-敷引き償却金- |
更新料 |
124,000円 |
鍵交換費用 |
- |
室内清掃費用 |
- |
室内清掃費 |
55,000円 |
鍵交換費 |
22,000円 |
駐車場料金 |
無 |
損保・ |
借家賠付きの火災保険にご加入いただきます。 |
保証会社 |
加入要 保証会社利用料:保証会社名:レジデントアシスタンス株式会社/初回保証委託料(最低20000円):月額賃料等の50%、 2年目以降:9600円/年 |
契約期間 |
2年 |
入居可能日 |
即入居可 |
フリーレント期間 |
- |
取引形態 |
一般媒介 |
備考 |
小型犬1匹迄敷1 保証会社必須:法人未加入時敷1 駐輪場1住戸1台(区画指定有) |
MFPRコート蒲田 809号室の建物情報
建物名称 |
MFPRコート蒲田 |
|---|---|
最寄駅 |
|
所在地 |
東京都大田区蒲田 |
階層 |
8階部分(地上10階建) |
構造 |
RC |
築年数 |
2006年9月(築20年) |
駐車場 |
無 |
小学校学区 |
新宿小学校 |
中学校学区 |
蒲田中学校 |
- 学区データについて
- ※学区データは必ずしも正確とは限りません。詳細に関しては最寄店舗または各自治体の教育委員会に必ずご確認ください。
無料この物件に問い合わせ
- MFPRコート蒲田 809号室

-
12.4万円
(共益費
8,000円)
- 敷
- 1ヶ月
- 礼
- 1ヶ月
- 保
- -
- 償
- -
MFPRコート蒲田 809号室の物件のお問い合わせ先・取り扱い店舗
ハウスコム 蒲田店
- アクセス
-
京浜東北・根岸線「蒲田駅」西口徒歩1分
- 住所
- 〒144-0051 東京都大田区西蒲田7丁目5−8 コパンビル 1階
- 営業時間
- 10:00~18:00
- 定休日
- なし
- 営業エリア
- 大田区、品川区、川崎市
- 取引態様
- 賃貸仲介業






































