中根の完工年月(2002年4月)築の賃貸マンション ***号室(9階/2LDK)の賃貸物件(賃貸マンション)
東京都目黒区にある中根の完工年月(2002年4月)築の賃貸マンション ***号室はシステムキッチン、バス・トイレ別、クローゼット、2階以上、駐輪場などが特徴です。最寄り駅の東急東横線自由が丘駅から徒歩12分です。中根の完工年月(2002年4月)築の賃貸マンション ***号室の詳細はハウスコム 事業戦略室までお気軽にお問い合わせください!
情報更新日:
次回更新予定日:
※次回更新予定日について:お店側では順次空室確認を行っていますが、次回更新予定日までに空室確認が行えない場合には、この物件情報は自動的に削除されます。
中根の完工年月(2002年4月)築の賃貸マンション ***号室の賃貸物件部屋概要
家賃 |
29万円
初期費用を |
|---|---|
共益費 |
25,000円
入居可能時期 |
敷金/礼金 |
1ヶ月 / 1ヶ月 |
保証金/ |
- / - |
最寄駅 |
|
所在地 |
東京都目黒区中根 |
部屋番号 |
***号室 |
間取り |
2LDK |
専有面積 |
54.80㎡ |
築年数 |
2002年4月(築24年) |
階数 |
9階部分(地上10階地下1階建) |
方位・位置 |
南 / その他 |
物件種別 |
賃貸マンション |
構造 |
SRC |
駐車場 |
- |
小学校学区 |
宮前小学校 |
中学校学区 |
第十中学校 |
他の空き部屋 |
***号室 ***号室 ***号室 |
- 学区データについて
- ※学区データは必ずしも正確とは限りません。詳細に関しては最寄店舗または各自治体の教育委員会に必ずご確認ください。
中根の完工年月(2002年4月)築の賃貸マンション ***号室の特徴
セキュリティ
この物件の建物には、オートロックや防犯カメラや宅配ボックスが設置されており、来客時には居室内のテレビモニターにて訪問者の顔を確認することができます。
室内設備
システムキッチンが備え付けられています。 お風呂とトイレは別です。お風呂には、追い焚き機能が備わっています。 トイレは、温水洗浄便座機能付きになります。 洗濯に便利な設備として、浴室乾燥機も設置されているので、梅雨時の生乾き臭も比較的防ぐことができます。
居室状況
お部屋の床は、フローリングとなっており、エアコンが設置されています。 収納スペースとして、基本的な居室にクローゼットがあります。
建物設備共用部分
建物の共用スペースに、日々の出入に便利なエレベーターや、いざという時の防犯カメラや、急な外出や不在がちのご家庭の荷物受け取りに便利な宅配ボックスが設置されています。 駐輪場が利用できます。
周辺施設
この物件の学区は、宮前小学校区・第十中学校区です。
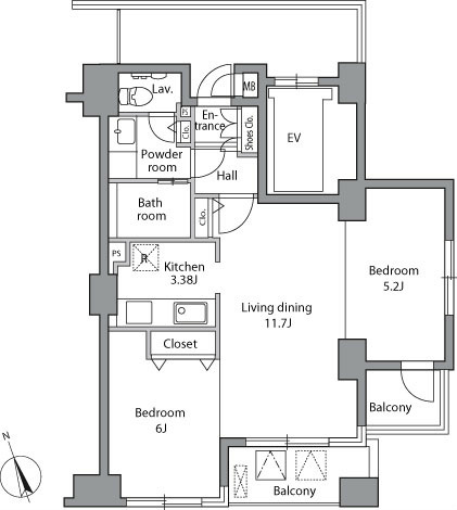
中根の完工年月(2002年4月)築の賃貸マンション ***号室の間取り
間取り:2LDK
間取詳細:2LDK
専有面積:54.80㎡
方位:南
部屋位置:その他
中根の完工年月(2002年4月)築の賃貸マンション ***号室の設備
キッチン
システムキッチン
バス・トイレ
バス・トイレ別
追い焚き
浴室乾燥機
温水洗浄便座
玄関
TVモニタ付インターホン
オートロック
宅配ボックス
収納
クローゼット
室内設備
エアコン
フローリング
位置・立地
2階以上
南向き
インフラ
CATV
BS
建物設備
エレベーター
防犯カメラ
駐輪場
ライフステージ
一人暮らしに人気の設備
カップルに人気の設備
家族に人気の設備
夫婦に人気の設備
三世代で人気の設備
こだわり
セキュリティ対策重視
雨の日でも洗濯したい
洋室で暮らしたい
中根の完工年月(2002年4月)築の賃貸マンション ***号室の賃貸契約情報
毎月支払う |
家賃29万円/月共益費25,000円/月 |
|---|---|
初期費用 |
敷金1ヶ月 (29万円)礼金1ヶ月 (29万円)保証金-敷引き償却金- |
更新料 |
290,000円 |
鍵交換費用 |
29,700円 |
室内清掃費用 |
- |
入居者限定会員サービス会費/2年 |
11,000円 |
駐車場料金 |
- |
損保・ |
借家賠付きの火災保険にご加入いただきます。 |
保証会社 |
加入要 保証会社利用料:【IRS③】IUCレジデンシャルサポート |
契約期間 |
2年 |
入居可能日 |
2026年03月下旬 |
フリーレント期間 |
- |
取引形態 |
一般媒介 |
備考 |
- |
中根の完工年月(2002年4月)築の賃貸マンション ***号室の建物情報
建物名称 |
中根の完工年月(2002年4月)築の賃貸マンション |
|---|---|
最寄駅 |
|
所在地 |
東京都目黒区中根 |
階層 |
9階部分(地上10階地下1階建) |
構造 |
SRC |
築年数 |
2002年4月(築24年) |
駐車場 |
- |
小学校学区 |
宮前小学校 |
中学校学区 |
第十中学校 |
- 学区データについて
- ※学区データは必ずしも正確とは限りません。詳細に関しては最寄店舗または各自治体の教育委員会に必ずご確認ください。
無料この物件に問い合わせ
- 中根の完工年月(2002年4月)築の賃貸マンション ***号室

-
29万円
(共益費
25,000円)
- 敷
- 1ヶ月
- 礼
- 1ヶ月
- 保
- -
- 償
- -
中根の完工年月(2002年4月)築の賃貸マンション ***号室の物件のお問い合わせ先・取り扱い店舗
ハウスコム 事業戦略室
- アクセス
-
山手線「品川駅」港南口徒歩3分
- 住所
- 〒108-0075 東京都港区港南2-16-1 品川イーストワンタワー9階
- 営業時間
- 10:00~17:00
- 定休日
- 土曜日・日曜日(祝日定休)
- 営業エリア
- 北区、荒川区、豊島区、文京区、台東区、中央区、新宿区、千代田区、渋谷区、港区、品川区
- 取引態様
- 賃貸仲介業
































