Ludens戸越公園Ⅱ 402号室(1階/1R)の賃貸物件(賃貸マンション)
東京都品川区にあるLudens戸越公園Ⅱ 402号室はバス・トイレ別、デザイナーズ、1階、角部屋、都市ガスなどが特徴です。最寄り駅の東急大井町線戸越公園駅から徒歩3分です。Ludens戸越公園Ⅱ 402号室の詳細はハウスコム 五反田店までお気軽にお問い合わせください!
情報更新日:
次回更新予定日:
※次回更新予定日について:お店側では順次空室確認を行っていますが、次回更新予定日までに空室確認が行えない場合には、この物件情報は自動的に削除されます。
Ludens戸越公園Ⅱ 402号室の賃貸物件部屋概要
家賃 |
9.1万円
初期費用を |
|---|---|
共益費 |
10,000円
入居可能時期 |
敷金/礼金 |
91,000円 / 91,000円 |
保証金/ |
- / - |
最寄駅 |
|
所在地 |
東京都品川区豊町 |
部屋番号 |
402号室 |
間取り |
1R(洋6.9) |
専有面積 |
20.00㎡ |
築年数 |
2019年2月(築7年) |
階数 |
1階部分(地上4階建) |
方位・位置 |
ー / 角部屋 |
物件種別 |
賃貸マンション |
構造 |
RC |
駐車場 |
無 |
小学校学区 |
豊葉の杜学園義務教育学校 |
中学校学区 |
豊葉の杜学園義務教育学校 |
他の空き部屋 |
ー |
- 学区データについて
- ※学区データは必ずしも正確とは限りません。詳細に関しては最寄店舗または各自治体の教育委員会に必ずご確認ください。
Ludens戸越公園Ⅱ 402号室の特徴
セキュリティ
この物件の建物には、オートロックや防犯カメラや宅配ボックスが設置されており、来客時には居室内のテレビモニターにて訪問者の顔を確認することができます。
室内設備
システムキッチンが備え付けられています。 トイレは、温水洗浄便座機能付きになります。 洗濯に便利な設備として、室内洗濯機置場があります。浴室乾燥機も設置されているので、梅雨時の生乾き臭も比較的防ぐことができます。
居室状況
インターネットも無料で入居後すぐ生活が始められます。
建物設備共用部分
建物の共用スペースに、いざという時の防犯カメラや、急な外出や不在がちのご家庭の荷物受け取りに便利な宅配ボックスが設置されています。
周辺施設
この物件の学区は、豊葉の杜学園義務教育学校区・豊葉の杜学園義務教育学校区です。
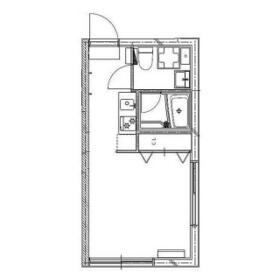
Ludens戸越公園Ⅱ 402号室の間取り
間取り:1R
間取詳細:1R(洋6.9)
専有面積:20.00㎡
方位:ー
部屋位置:角部屋
Ludens戸越公園Ⅱ 402号室の設備
キッチン
システムキッチン
バス・トイレ
バス・トイレ別
浴室乾燥機
温水洗浄便座
玄関
TVモニタ付インターホン
オートロック
宅配ボックス
室内設備
室内洗濯機置場
デザイナーズ
位置・立地
1階
角部屋
インフラ
都市ガス
建物設備
防犯カメラ
ライフステージ
一人暮らしに人気の設備
カップルに人気の設備
家族に人気の設備
夫婦に人気の設備
三世代で人気の設備
こだわり
雨の日でも洗濯したい
趣味
オークション・通販が好き
お得な条件
インターネット無料
Ludens戸越公園Ⅱ 402号室の賃貸契約情報
毎月支払う |
家賃9.1万円/月共益費10,000円/月 |
|---|---|
初期費用 |
敷金91,000円礼金91,000円保証金-敷引き償却金- |
更新料 |
91,000円 |
鍵交換費用 |
- |
室内清掃費用 |
- |
カギ交換代 |
22,000円 |
駐車場料金 |
無 |
損保・ |
借家賠付きの火災保険にご加入いただきます。 |
保証会社 |
加入要 保証会社利用料:株式会社JACCS 初回:月支払総額×50% 月々:月支払総額×1% 継続:年毎10500円 |
契約期間 |
2年 |
入居可能日 |
2026年03月 |
フリーレント期間 |
- |
取引形態 |
一般媒介 |
備考 |
・1年未満解約違約金有り(家賃1ヶ月)・解約時:室内清掃料49500円、エアコン清掃料16500円 |
Ludens戸越公園Ⅱ 402号室の建物情報
建物名称 |
Ludens戸越公園Ⅱ |
|---|---|
最寄駅 |
|
所在地 |
東京都品川区豊町 |
階層 |
1階部分(地上4階建) |
構造 |
RC |
築年数 |
2019年2月(築7年) |
駐車場 |
無 |
小学校学区 |
豊葉の杜学園義務教育学校 |
中学校学区 |
豊葉の杜学園義務教育学校 |
- 学区データについて
- ※学区データは必ずしも正確とは限りません。詳細に関しては最寄店舗または各自治体の教育委員会に必ずご確認ください。
無料この物件に問い合わせ
- Ludens戸越公園Ⅱ 402号室

-
9.1万円
(共益費
10,000円)
- 敷
- 91,000円
- 礼
- 91,000円
- 保
- -
- 償
- -
Ludens戸越公園Ⅱ 402号室の物件のお問い合わせ先・取り扱い店舗
ハウスコム 五反田店
- アクセス
-
山手線「五反田駅」東口徒歩1分
都営浅草線「五反田駅」A6出口より徒歩1分
- 住所
- 〒141-0022 東京都品川区東五反田1丁目12−12 落合ビル 2F
- 営業時間
- 10:00~18:00
- 定休日
- なし(年末年始は休業)
- 営業エリア
- 品川区,大田区,港区,目黒区
- 取引態様
- 賃貸仲介業





















