ルフォンプログレ元浅草マークス 704号室(7階/1DK)の賃貸物件(賃貸マンション)
東京都台東区にあるルフォンプログレ元浅草マークス 704号室はクローゼット、シューズボックス、エアコン、南向き、インターネット可などが特徴です。最寄り駅の東京メトロ 銀座線稲荷町駅から徒歩5分です。ルフォンプログレ元浅草マークス 704号室の詳細はハウスコム 日暮里店までお気軽にお問い合わせください!
情報更新日:
次回更新予定日:
※次回更新予定日について:お店側では順次空室確認を行っていますが、次回更新予定日までに空室確認が行えない場合には、この物件情報は自動的に削除されます。
ルフォンプログレ元浅草マークス 704号室の賃貸物件部屋概要
家賃 |
13.5万円
初期費用を |
|---|---|
共益費 |
15,000円
入居可能時期 |
敷金/礼金 |
135,000円 / - |
保証金/ |
- / - |
最寄駅 |
|
所在地 |
東京都台東区元浅草 |
部屋番号 |
704号室 |
間取り |
1DK(洋4.3・DK5.3) |
専有面積 |
25.41㎡ |
築年数 |
2022年5月(築4年) |
階数 |
7階部分(地上15階建) |
方位・位置 |
南 / その他 |
物件種別 |
賃貸マンション |
構造 |
RC |
駐車場 |
38,500円 |
小学校学区 |
上野小学校 |
中学校学区 |
駒形中学校 |
他の空き部屋 |
1003号室 1006号室 405号室 |
- 学区データについて
- ※学区データは必ずしも正確とは限りません。詳細に関しては最寄店舗または各自治体の教育委員会に必ずご確認ください。
ルフォンプログレ元浅草マークス 704号室の特徴
契約条件
ペットの飼育や楽器演奏もご相談ください。 礼金が無料なため、初期費用が比較的安くなる傾向にあります。
セキュリティ
この物件の建物には、オートロックや防犯カメラや宅配ボックスが設置されており、来客時には居室内のテレビモニターにて訪問者の顔を確認することができます。
室内設備
システムキッチンが備え付けられています。 トイレは、温水洗浄便座機能付きになります。 洗濯に便利な設備として、室内洗濯機置場があります。浴室乾燥機も設置されているので、梅雨時の生乾き臭も比較的防ぐことができます。
居室状況
エアコンが設置されています。 収納スペースとして、基本的な居室にクローゼットを設置、玄関にはシューズボックスがあります。
建物設備共用部分
建物の共用スペースに、日々の出入に便利なエレベーターや、いざという時の防犯カメラや、急な外出や不在がちのご家庭の荷物受け取りに便利な宅配ボックスが設置されています。
周辺施設
この物件の学区は、上野小学校区・駒形中学校区です。
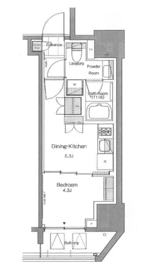
ルフォンプログレ元浅草マークス 704号室の間取り
間取り:1DK
間取詳細:1DK(洋4.3・DK5.3)
専有面積:25.41㎡
方位:南
部屋位置:その他
ルフォンプログレ元浅草マークス 704号室の設備
キッチン
システムキッチン
バス・トイレ
バス・トイレ別
浴室乾燥機
温水洗浄便座
玄関
TVモニタ付インターホン
オートロック
宅配ボックス
収納
クローゼット
シューズボックス
室内設備
エアコン
室内洗濯機置場
位置・立地
2階以上
南向き
インフラ
インターネット可
CATV
BS
CS
建物設備
エレベーター
防犯カメラ
入居条件
ペット可・相談
楽器可・相談
即入居可
ライフステージ
一人暮らしに人気の設備
カップルに人気の設備
家族に人気の設備
夫婦に人気の設備
三世代で人気の設備
こだわり
セキュリティ対策重視
雨の日でも洗濯したい
ルフォンプログレ元浅草マークス 704号室の賃貸契約情報
毎月支払う |
家賃13.5万円/月共益費15,000円/月 |
|---|---|
初期費用 |
敷金135,000円礼金-保証金-敷引き償却金- |
更新料 |
- |
鍵交換費用 |
- |
室内清掃費用 |
- |
駐車場料金 |
38,500円 |
損保・ |
借家賠付きの火災保険にご加入いただきます。 |
保証会社 |
加入要 保証会社利用料:日本セーフティー 初年度委託料:賃料等合計額の50%(最低保証料2万円)2年目以降:1年毎1万円 |
契約期間 |
- |
入居可能日 |
即入居可 |
フリーレント期間 |
- |
取引形態 |
一般媒介 |
備考 |
- |
ルフォンプログレ元浅草マークス 704号室の建物情報
建物名称 |
ルフォンプログレ元浅草マークス |
|---|---|
最寄駅 |
|
所在地 |
東京都台東区元浅草 |
階層 |
7階部分(地上15階建) |
構造 |
RC |
築年数 |
2022年5月(築4年) |
駐車場 |
38,500円 |
小学校学区 |
上野小学校 |
中学校学区 |
駒形中学校 |
- 学区データについて
- ※学区データは必ずしも正確とは限りません。詳細に関しては最寄店舗または各自治体の教育委員会に必ずご確認ください。
無料この物件に問い合わせ
- ルフォンプログレ元浅草マークス 704号室

-
13.5万円
(共益費
15,000円)
- 敷
- 135,000円
- 礼
- -
- 保
- -
- 償
- -
ルフォンプログレ元浅草マークス 704号室の物件のお問い合わせ先・取り扱い店舗
ハウスコム 日暮里店
- アクセス
-
山手線「日暮里駅」東口徒歩1分
- 住所
- 〒116-0013 東京都荒川区西日暮里2丁目25−1 ステーションガーデンタワー 1階
- 営業時間
- 10:00~18:00
- 定休日
- なし
- 営業エリア
- 荒川区、台東区、文京区、足立区、葛飾区、墨田区、江東区、江戸川区、北区、豊島区
- 取引態様
- 賃貸仲介業




































