プライマル小石川 401号室(4階/1LDK)の賃貸物件(賃貸マンション)
東京都文京区にあるプライマル小石川 401号室はオートロック、インターネット可、エレベーター、ペット可・相談、2人入居可などが特徴です。最寄り駅の都営大江戸線飯田橋駅から徒歩9分です。プライマル小石川 401号室の詳細はハウスコム 事業戦略室までお気軽にお問い合わせください!
情報更新日:
次回更新予定日:
※次回更新予定日について:お店側では順次空室確認を行っていますが、次回更新予定日までに空室確認が行えない場合には、この物件情報は自動的に削除されます。
プライマル小石川 401号室の賃貸物件部屋概要
家賃 |
19.9万円
初期費用を |
|---|---|
共益費 |
10,000円
入居可能時期 |
敷金/礼金 |
1ヶ月 / 1ヶ月 |
保証金/ |
- / - |
最寄駅 |
|
所在地 |
東京都文京区水道 |
部屋番号 |
401号室 |
間取り |
1LDK |
専有面積 |
45.09㎡ |
築年数 |
2006年11月(築20年) |
階数 |
4階部分(地上7階地下1階建) |
方位・位置 |
北東 / その他 |
物件種別 |
賃貸マンション |
構造 |
RC |
駐車場 |
無 |
小学校学区 |
金富小学校 |
中学校学区 |
第三中学校 |
他の空き部屋 |
310号室 |
- 学区データについて
- ※学区データは必ずしも正確とは限りません。詳細に関しては最寄店舗または各自治体の教育委員会に必ずご確認ください。
プライマル小石川 401号室の特徴
契約条件
この物件は、2人入居もご契約できます。 ペットの飼育もご相談ください。
セキュリティ
この物件の建物には、オートロックや宅配ボックスが設置されております。
室内設備
システムキッチンには、ガスコンロが備え付けられています。
居室状況
お部屋の床は、フローリングとなっており、エアコンが設置されています。
建物設備共用部分
建物の共用スペースに、日々の出入に便利なエレベーターや、急な外出や不在がちのご家庭の荷物受け取りに便利な宅配ボックスが設置されています。
周辺施設
この物件の学区は、金富小学校区・第三中学校区です。
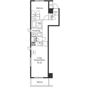
プライマル小石川 401号室の間取り
間取り:1LDK
間取詳細:1LDK
専有面積:45.09㎡
方位:北東
部屋位置:その他
プライマル小石川 401号室の設備
キッチン
システムキッチン
ガスコンロ
バス・トイレ
バス・トイレ別
玄関
オートロック
宅配ボックス
室内設備
エアコン
フローリング
位置・立地
2階以上
インフラ
インターネット可
CATV
BS
CS
都市ガス
建物設備
エレベーター
入居条件
ペット可・相談
2人入居可
ライフステージ
一人暮らしに人気の設備
カップルに人気の設備
家族に人気の設備
夫婦に人気の設備
三世代で人気の設備
こだわり
洋室で暮らしたい
プライマル小石川 401号室の賃貸契約情報
毎月支払う |
家賃19.9万円/月共益費10,000円/月 |
|---|---|
初期費用 |
敷金1ヶ月 (19.9万円)礼金1ヶ月 (19.9万円)保証金-敷引き償却金- |
更新料 |
199,000円 |
鍵交換費用 |
- |
室内清掃費用 |
- |
駐車場料金 |
無 |
損保・ |
借家賠付きの火災保険にご加入いただきます。 |
保証会社 |
加入要 保証会社利用料:貸主指定保証会社 クレディセゾン保証 初回保証料:個人30%・法人40% 更新料:毎年1万円(賃料1 |
契約期間 |
2年 |
入居可能日 |
2026年02月 |
フリーレント期間 |
- |
取引形態 |
一般媒介 |
備考 |
- |
プライマル小石川 401号室の建物情報
建物名称 |
プライマル小石川 |
|---|---|
最寄駅 |
|
所在地 |
東京都文京区水道 |
階層 |
4階部分(地上7階地下1階建) |
構造 |
RC |
築年数 |
2006年11月(築20年) |
駐車場 |
無 |
小学校学区 |
金富小学校 |
中学校学区 |
第三中学校 |
- 学区データについて
- ※学区データは必ずしも正確とは限りません。詳細に関しては最寄店舗または各自治体の教育委員会に必ずご確認ください。
無料この物件に問い合わせ
- プライマル小石川 401号室

-
19.9万円
(共益費
10,000円)
- 敷
- 1ヶ月
- 礼
- 1ヶ月
- 保
- -
- 償
- -
プライマル小石川 401号室の物件のお問い合わせ先・取り扱い店舗
ハウスコム 事業戦略室
- アクセス
-
山手線「品川駅」港南口徒歩3分
- 住所
- 〒108-0075 東京都港区港南2-16-1 品川イーストワンタワー9階
- 営業時間
- 10:00~17:00
- 定休日
- 土曜日・日曜日(祝日定休)
- 営業エリア
- 北区、荒川区、豊島区、文京区、台東区、中央区、新宿区、千代田区、渋谷区、港区、品川区
- 取引態様
- 賃貸仲介業
お問い合わせNo. HC4-2973624-0401-1009





















