メインステージ船堀 101号室(1階/1K)の賃貸物件(賃貸マンション)
東京都江戸川区にあるメインステージ船堀 101号室はTVモニタ付インターホン、オートロック、クローゼット、シューズボックス、室内洗濯機置場などが特徴です。最寄り駅の都営新宿線船堀駅から徒歩8分です。メインステージ船堀 101号室の詳細はハウスコム 事業戦略室までお気軽にお問い合わせください!
情報更新日:
次回更新予定日:
※次回更新予定日について:お店側では順次空室確認を行っていますが、次回更新予定日までに空室確認が行えない場合には、この物件情報は自動的に削除されます。
メインステージ船堀 101号室の賃貸物件部屋概要
家賃 |
8.2万円
初期費用を |
|---|---|
共益費 |
20,000円
入居可能時期 |
敷金/礼金 |
- / - |
保証金/ |
- / - |
最寄駅 |
|
所在地 |
東京都江戸川区船堀 |
部屋番号 |
101号室 |
間取り |
1K |
専有面積 |
26.76㎡ |
築年数 |
2021年6月(築5年) |
階数 |
1階部分(地上10階建) |
方位・位置 |
南西 / その他 |
物件種別 |
賃貸マンション |
構造 |
RC |
駐車場 |
- |
小学校学区 |
船堀第二小学校 |
中学校学区 |
松江第一中学校 |
他の空き部屋 |
ー |
- 学区データについて
- ※学区データは必ずしも正確とは限りません。詳細に関しては最寄店舗または各自治体の教育委員会に必ずご確認ください。
メインステージ船堀 101号室の特徴
契約条件
この物件は、2人入居もご契約できます。 ペットの飼育もご相談ください。 敷金と礼金が無料なため、初期費用が比較的安くなる傾向にあります。
セキュリティ
この物件の建物には、オートロックや防犯カメラや宅配ボックスが設置されており、来客時には居室内のテレビモニターにて訪問者の顔を確認することができます。
室内設備
2つ以上のガスコンロが備え付けられています。 洗濯に便利な設備として、室内洗濯機置場があります。
居室状況
エアコンが設置されています。 照明器具が備え付けられており、インターネットも無料で入居後すぐ生活が始められます。 収納スペースとして、基本的な居室にクローゼットを設置、玄関にはシューズボックスがあります。
建物設備共用部分
建物の共用スペースに、日々の出入に便利なエレベーターや、いざという時の防犯カメラや、急な外出や不在がちのご家庭の荷物受け取りに便利な宅配ボックスや、居室内を常に清潔に保てる24時間利用可能なゴミ捨て置き場が設置されています。
周辺施設
この物件の学区は、船堀第二小学校区・松江第一中学校区です。
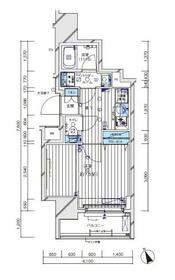
メインステージ船堀 101号室の間取り
間取り:1K
間取詳細:1K
専有面積:26.76㎡
方位:南西
部屋位置:その他
メインステージ船堀 101号室の設備
キッチン
ガスコンロ
ガスコンロ二口以上
バス・トイレ
バス・トイレ別
玄関
TVモニタ付インターホン
オートロック
宅配ボックス
収納
クローゼット
シューズボックス
室内設備
エアコン
室内洗濯機置場
照明器具付
位置・立地
1階
インフラ
BS
CS
都市ガス
建物設備
エレベーター
防犯カメラ
24時間ゴミ出しOK
入居条件
ペット可・相談
2人入居可
ライフステージ
一人暮らしに人気の設備
カップルに人気の設備
家族に人気の設備
夫婦に人気の設備
三世代で人気の設備
こだわり
雨の日でも洗濯したい
趣味
オークション・通販が好き
お得な条件
インターネット無料
メインステージ船堀 101号室の賃貸契約情報
毎月支払う |
家賃8.2万円/月共益費20,000円/月 |
|---|---|
初期費用 |
敷金-礼金-保証金-敷引き償却金- |
更新料 |
123,000円 |
鍵交換費用 |
- |
室内清掃費用 |
- |
退去時鍵交換費用(契約時支払い) |
29,700円 |
AMLクラブサポート費用(契約時支払い) |
16,500円 |
ハウスクリーニング費用(退去時支払い) |
49,500円 |
駐車場料金 |
- |
損保・ |
借家賠付きの火災保険にご加入いただきます。 |
保証会社 |
加入要 保証会社利用料:賃料と管理費の50%~ |
契約期間 |
2年 |
入居可能日 |
2026年03月中旬 |
フリーレント期間 |
- |
取引形態 |
一般媒介 |
備考 |
- |
メインステージ船堀 101号室の建物情報
建物名称 |
メインステージ船堀 |
|---|---|
最寄駅 |
|
所在地 |
東京都江戸川区船堀 |
階層 |
1階部分(地上10階建) |
構造 |
RC |
築年数 |
2021年6月(築5年) |
駐車場 |
- |
小学校学区 |
船堀第二小学校 |
中学校学区 |
松江第一中学校 |
- 学区データについて
- ※学区データは必ずしも正確とは限りません。詳細に関しては最寄店舗または各自治体の教育委員会に必ずご確認ください。
無料この物件に問い合わせ
- メインステージ船堀 101号室

-
8.2万円
(共益費
20,000円)
- 敷
- -
- 礼
- -
- 保
- -
- 償
- -
メインステージ船堀 101号室の物件のお問い合わせ先・取り扱い店舗
ハウスコム 事業戦略室
- アクセス
-
山手線「品川駅」港南口徒歩3分
- 住所
- 〒108-0075 東京都港区港南2-16-1 品川イーストワンタワー9階
- 営業時間
- 10:00~17:00
- 定休日
- 土曜日・日曜日(祝日定休)
- 営業エリア
- 北区、荒川区、豊島区、文京区、台東区、中央区、新宿区、千代田区、渋谷区、港区、品川区
- 取引態様
- 賃貸仲介業






















