CREST TAPP黒川 202号室(2階/1K)の賃貸物件(賃貸マンション)
愛知県名古屋市北区にあるCREST TAPP黒川 202号室は宅配ボックス、エアコン、都市ガス、エレベーター、ペット可・相談などが特徴です。最寄り駅の名古屋市営地下鉄 名城線志賀本通駅から徒歩8分です。CREST TAPP黒川 202号室の詳細はハウスコム 大曽根店までお気軽にお問い合わせください!
情報更新日:
次回更新予定日:
※次回更新予定日について:お店側では順次空室確認を行っていますが、次回更新予定日までに空室確認が行えない場合には、この物件情報は自動的に削除されます。
CREST TAPP黒川 202号室の賃貸物件部屋概要
家賃 |
6.33万円
初期費用を |
|---|---|
共益費 |
10,000円
入居可能時期 |
敷金/礼金 |
- / - |
保証金/ |
- / - |
最寄駅 |
|
所在地 |
愛知県名古屋市北区稚児宮通 |
部屋番号 |
202号室 |
間取り |
1K |
専有面積 |
25.50㎡ |
築年数 |
2025年1月 |
階数 |
2階部分(地上15階建) |
方位・位置 |
北西 / その他 |
物件種別 |
賃貸マンション |
構造 |
RC |
駐車場 |
- |
小学校学区 |
東志賀小学校 |
中学校学区 |
北陵中学校 |
他の空き部屋 |
1102号室 1202号室 1302号室 201号室 |
- 学区データについて
- ※学区データは必ずしも正確とは限りません。詳細に関しては最寄店舗または各自治体の教育委員会に必ずご確認ください。
CREST TAPP黒川 202号室の特徴
-
一人暮らしに人気の設備

-
カップルに人気の設備

-
家族に人気の設備

-
夫婦に人気の設備

-
三世代で人気の設備

-
セキュリティ対策重視

-
外で子どもと遊びたい

-
雨の日でも洗濯したい

-
オークション・通販が好き

-
ガーデニングが好き

契約条件
ペットの飼育もご相談ください。 敷金と礼金が無料なため、初期費用が比較的安くなる傾向にあります。
セキュリティ
この物件の建物には、オートロックや防犯カメラや宅配ボックスが設置されており、来客時には居室内のテレビモニターにて訪問者の顔を確認することができます。
室内設備
2つ以上のガスコンロが備え付けられています。 トイレは、温水洗浄便座機能付きになります。 洗濯に便利な設備として、浴室乾燥機も設置されているので、梅雨時の生乾き臭も比較的防ぐことができます。
居室状況
エアコンが設置されています。 インターネットも無料で入居後すぐ生活が始められます。 収納スペースとして、玄関にはシューズボックスがあります。
建物設備共用部分
居室外の専有スペースとして、洗濯物を干すなどの用途として利用できるバルコニーがあります。 建物の共用スペースに、日々の出入に便利なエレベーターや、いざという時の防犯カメラや、急な外出や不在がちのご家庭の荷物受け取りに便利な宅配ボックスが設置されています。
周辺施設
この物件の学区は、東志賀小学校区・北陵中学校区です。
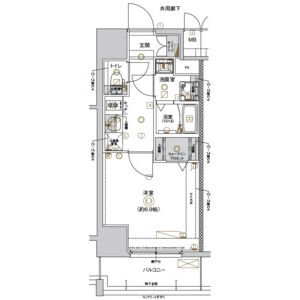
CREST TAPP黒川 202号室の間取り
間取り:1K
間取詳細:1K
専有面積:25.50㎡
方位:北西
部屋位置:その他
CREST TAPP黒川 202号室の設備
キッチン
ガスコンロ
ガスコンロ二口以上
バス・トイレ
バス・トイレ別
浴室乾燥機
温水洗浄便座
玄関
TVモニタ付インターホン
オートロック
宅配ボックス
収納
シューズボックス
バルコニー
バルコニー
ルーフバルコニー
室内設備
エアコン
位置・立地
2階以上
インフラ
インターネット可
CATV
BS
CS
都市ガス
建物設備
エレベーター
防犯カメラ
分譲賃貸
入居条件
ペット可・相談
ライフステージ
一人暮らしに人気の設備
カップルに人気の設備
家族に人気の設備
夫婦に人気の設備
三世代で人気の設備
こだわり
セキュリティ対策重視
外で子どもと遊びたい
雨の日でも洗濯したい
趣味
オークション・通販が好き
ガーデニングが好き
お得な条件
インターネット無料
CREST TAPP黒川 202号室の賃貸契約情報
毎月支払う |
家賃6.33万円/月共益費10,000円/月 |
|---|---|
初期費用 |
敷金-礼金-保証金-敷引き償却金- |
更新料 |
- |
鍵交換費用 |
- |
室内清掃費用 |
38,500円 |
初期費用:契約事務手数料 |
11,000円 |
ランニング費用:更新事務手数料(更新時)、24H駆けつけサービス(月額) |
11,990円 |
その他費用:エアコンクリーニング(退去時) |
16,500円 |
駐車場料金 |
- |
損保・ |
借家賠付きの火災保険にご加入いただきます。 |
保証会社 |
加入要 保証会社:クレディセゾン 保証会社利用料:初回保証料30% 更新保証料:1万円/年 |
契約期間 |
2年 |
入居可能日 |
2026年04月上旬 |
フリーレント期間 |
- |
取引形態 |
一般媒介 |
備考 |
室内清掃費用 退去時 38500円 エアコンクリーニング 退去時 16500円 1年未満の解約で総賃料2ヶ月 1年以上、2年未満の解約で総賃料1ヶ月 |
CREST TAPP黒川 202号室の建物情報
建物名称 |
CREST TAPP黒川 |
|---|---|
最寄駅 |
|
所在地 |
愛知県名古屋市北区稚児宮通 |
階層 |
2階部分(地上15階建) |
構造 |
RC |
築年数 |
2025年1月 |
駐車場 |
- |
小学校学区 |
東志賀小学校 |
中学校学区 |
北陵中学校 |
- 学区データについて
- ※学区データは必ずしも正確とは限りません。詳細に関しては最寄店舗または各自治体の教育委員会に必ずご確認ください。
無料この物件に問い合わせ
- CREST TAPP黒川 202号室

-
6.33万円
(共益費
10,000円)
- 敷
- -
- 礼
- -
- 保
- -
- 償
- -
CREST TAPP黒川 202号室の物件のお問い合わせ先・取り扱い店舗
ハウスコム 大曽根店
- アクセス
-
名古屋市営地下鉄 名城線「大曽根駅」徒歩2分
- 住所
- 〒462-0825 愛知県名古屋市北区大曽根3丁目5−6 Comfort大曽根 1階
- 営業時間
- 10:00~18:00
- 定休日
- なし(年末年始は休業)
- 営業エリア
- 名古屋市北区・東区・千種区・西区・守山区・春日井市
- 取引態様
- 賃貸仲介業


























