プレミアムハウスケイ 102号室(1階/1K)の賃貸物件(賃貸アパート)
愛知県名古屋市緑区にあるプレミアムハウスケイ 102号室はフローリング、1階、角部屋、南向き、オンライン内見可などが特徴です。最寄り駅の名鉄名古屋本線鳴海駅から徒歩5分です。プレミアムハウスケイ 102号室の詳細はハウスコム 野並店までお気軽にお問い合わせください!
情報更新日:
次回更新予定日:
※次回更新予定日について:お店側では順次空室確認を行っていますが、次回更新予定日までに空室確認が行えない場合には、この物件情報は自動的に削除されます。
プレミアムハウスケイ 102号室の賃貸物件部屋概要
家賃 |
5.45万円
初期費用を |
|---|---|
共益費 |
4,000円
入居可能時期 |
敷金/礼金 |
- / 1ヶ月 |
保証金/ |
- / - |
最寄駅 |
|
所在地 |
愛知県名古屋市緑区鳴海町 |
部屋番号 |
102号室 |
間取り |
1K(洋6.4・K2・他6.2) |
専有面積 |
21.52㎡ |
築年数 |
2018年10月(築8年) |
階数 |
1階部分(地上2階建) |
方位・位置 |
南 / 角部屋 |
物件種別 |
賃貸アパート |
構造 |
木造 |
駐車場 |
無 |
小学校学区 |
鳴海小学校 |
中学校学区 |
鳴海中学校 |
他の空き部屋 |
ー |
- 学区データについて
- ※学区データは必ずしも正確とは限りません。詳細に関しては最寄店舗または各自治体の教育委員会に必ずご確認ください。
プレミアムハウスケイ 102号室の特徴
契約条件
敷金が無料なため、初期費用が比較的安くなる傾向にあります。
セキュリティ
来客時には居室内のテレビモニターにて訪問者の顔を確認することができます。
室内設備
トイレは、温水洗浄便座機能付きになります。 女性に嬉しい設備の独立した洗面化粧台があります。 洗濯に便利な設備として、浴室乾燥機も設置されているので、梅雨時の生乾き臭も比較的防ぐことができます。
居室状況
居室には、ロフトが設置されており大規模な収納スペースやセパレートされた寝室として活用できます。 お部屋の床は、フローリングとなっており、エアコンが設置されています。 インターネットも無料で入居後すぐ生活が始められます。 収納スペースとして、基本的な居室にクローゼットがあります。
建物設備共用部分
居室外の専有スペースとして、洗濯物を干すなどの用途として利用できるバルコニーがあります。
周辺施設
この物件の学区は、鳴海小学校区・鳴海中学校区です。
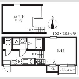
プレミアムハウスケイ 102号室の間取り
間取り:1K
間取詳細:1K(洋6.4・K2・他6.2)
専有面積:21.52㎡
方位:南
部屋位置:角部屋
プレミアムハウスケイ 102号室の設備
バス・トイレ
バス・トイレ別
浴室乾燥機
温水洗浄便座
独立洗面台
玄関
TVモニタ付インターホン
収納
クローゼット
バルコニー
バルコニー
ルーフバルコニー
室内設備
エアコン
フローリング
ロフト付
位置・立地
1階
角部屋
南向き
入居条件
オンライン相談可
オンライン内見可
ライフステージ
一人暮らしに人気の設備
カップルに人気の設備
家族に人気の設備
夫婦に人気の設備
三世代で人気の設備
こだわり
外で子どもと遊びたい
雨の日でも洗濯したい
洋室で暮らしたい
趣味
ガーデニングが好き
お得な条件
インターネット無料
プレミアムハウスケイ 102号室の賃貸契約情報
毎月支払う |
家賃5.45万円/月共益費4,000円/月 |
|---|---|
初期費用 |
敷金-礼金1ヶ月 (5.45万円)保証金-敷引き償却金- |
更新料 |
- |
鍵交換費用 |
13,200円 |
室内清掃費用 |
49,500円 |
プレミアデスク(税込/2年) |
22,000円 |
契約時ルームクリーニング費用(税込) |
49,500円 |
町会費/月額 |
300円 |
駐車場料金 |
無 |
損保・ |
借家賠付きの火災保険にご加入いただきます。 |
保証会社 |
加入要 保証会社利用料:月額総賃料の50%~(最低保証料5万円)/次年度以降15 000円~※引落とし手数料660円(税込) |
契約期間 |
2年 |
入居可能日 |
相談 |
フリーレント期間 |
- |
取引形態 |
一般媒介 |
備考 |
保険:保険要加入 住宅保険 2年契約 16000円 |
プレミアムハウスケイ 102号室の建物情報
建物名称 |
プレミアムハウスケイ |
|---|---|
最寄駅 |
|
所在地 |
愛知県名古屋市緑区鳴海町 |
階層 |
1階部分(地上2階建) |
構造 |
木造 |
築年数 |
2018年10月(築8年) |
駐車場 |
無 |
小学校学区 |
鳴海小学校 |
中学校学区 |
鳴海中学校 |
- 学区データについて
- ※学区データは必ずしも正確とは限りません。詳細に関しては最寄店舗または各自治体の教育委員会に必ずご確認ください。
無料この物件に問い合わせ
- プレミアムハウスケイ 102号室

-
5.45万円
(共益費
4,000円)
- 敷
- -
- 礼
- 1ヶ月
- 保
- -
- 償
- -
プレミアムハウスケイ 102号室の物件のお問い合わせ先・取り扱い店舗
ハウスコム 野並店
- アクセス
-
名古屋市営地下鉄 桜通線「野並駅」2番出口徒歩1分
- 住所
- 〒468-0045 愛知県名古屋市天白区野並3丁目225−1 サーナ野並 1F
- 営業時間
- 10:00~18:00
- 定休日
- なし
- 営業エリア
- 名古屋市天白区,名古屋市緑区,名古屋市南区,名古屋市瑞穂区,東海市,大府市,豊明市,知多市,東郷町,東浦町
- 取引態様
- 賃貸仲介業































