ウエストパークヒルズ 102号室(1階/3LDK)の賃貸物件(賃貸マンション)
神奈川県横浜市青葉区にあるウエストパークヒルズ 102号室は追い焚き、全居室収納、バルコニー、和室あり、バイク置き場などが特徴です。最寄り駅の東急田園都市線江田駅から徒歩14分です。ウエストパークヒルズ 102号室の詳細はハウスコム 鷺沼店までお気軽にお問い合わせください!
情報更新日:
次回更新予定日:
※次回更新予定日について:お店側では順次空室確認を行っていますが、次回更新予定日までに空室確認が行えない場合には、この物件情報は自動的に削除されます。
ウエストパークヒルズ 102号室の賃貸物件部屋概要
家賃 |
12.5万円
初期費用を |
|---|---|
共益費 |
7,000円
入居可能時期 |
敷金/礼金 |
- / - |
保証金/ |
- / - |
最寄駅 |
|
所在地 |
神奈川県横浜市青葉区荏田西 |
部屋番号 |
102号室 |
間取り |
3LDK(LDK11.8・洋4.5・洋5.6・和6) |
専有面積 |
65.76㎡ |
築年数 |
1996年3月(築30年) |
階数 |
1階部分(地上3階建) |
方位・位置 |
南 / その他 |
物件種別 |
賃貸マンション |
構造 |
RC |
駐車場 |
空無し |
小学校学区 |
荏田西小学校 |
中学校学区 |
市ケ尾中学校 |
他の空き部屋 |
ー |
- 学区データについて
- ※学区データは必ずしも正確とは限りません。詳細に関しては最寄店舗または各自治体の教育委員会に必ずご確認ください。
ウエストパークヒルズ 102号室の特徴
-
一人暮らしに人気の設備

-
カップルに人気の設備

-
家族に人気の設備

-
夫婦に人気の設備

-
三世代で人気の設備

-
収納重視

-
外で子どもと遊びたい

-
身だしなみに気をつかいたい

-
雨の日でも洗濯したい

-
洋室で暮らしたい

-
持ち物をスッキリ隠す収納部屋

-
推し活グッズを飾りたい

-
ガーデニングが好き

契約条件
この物件は、2人入居もご契約できます。 また、ご契約時に保証人は不要です。 敷金と礼金が無料なため、初期費用が比較的安くなる傾向にあります。
セキュリティ
来客時には居室内のテレビモニターにて訪問者の顔を確認することができます。
室内設備
システムキッチンには、ガスコンロが備え付けられています。 お風呂とトイレは別です。お風呂には、追い焚き機能が備わっています。 女性に嬉しい設備のシャワーの付いている洗面化粧台があります。 洗濯に便利な設備として、室内洗濯機置場があります。
居室状況
居室には、和室の居室もあり、子育てやリラックススペースとしての利用もできます。 お部屋の床は、フローリングとなっています。収納スペースとして、基本的な居室にクローゼットを設置、玄関にはシューズボックスがあります。
建物設備共用部分
居室外の専有スペースとして、洗濯物を干すなどの用途として利用できるバルコニーがあります。 平面駐車場があります。駐輪場、バイク置き場が利用できます。
周辺施設
この物件の学区は、荏田西小学校区・市ケ尾中学校区です。
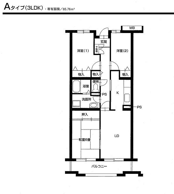
ウエストパークヒルズ 102号室の間取り
間取り:3LDK
間取詳細:3LDK(LDK11.8・洋4.5・洋5.6・和6)
専有面積:65.76㎡
方位:南
部屋位置:その他
ウエストパークヒルズ 102号室の設備
キッチン
システムキッチン
ガスコンロ
バス・トイレ
バス・トイレ別
追い焚き
独立洗面台
シャワー付洗面化粧台
玄関
TVモニタ付インターホン
収納
クローゼット
シューズボックス
全居室収納
バルコニー
バルコニー
ルーフバルコニー
室内設備
フローリング
室内洗濯機置場
和室あり
位置・立地
1階
南向き
インフラ
インターネット可
CATV
BS
都市ガス
建物設備
駐車場
平面駐車場
駐輪場
バイク置き場
分譲賃貸
入居条件
2人入居可
オンライン相談可
オンライン内見可
保証人不要
即入居可
ライフステージ
一人暮らしに人気の設備
カップルに人気の設備
家族に人気の設備
夫婦に人気の設備
三世代で人気の設備
こだわり
収納重視
外で子どもと遊びたい
身だしなみに気をつかいたい
雨の日でも洗濯したい
洋室で暮らしたい
持ち物をスッキリ隠す収納部屋
趣味
推し活グッズを飾りたい
ガーデニングが好き
ウエストパークヒルズ 102号室の賃貸契約情報
毎月支払う |
家賃12.5万円/月共益費7,000円/月 |
|---|---|
初期費用 |
敷金-礼金-保証金-敷引き償却金- |
更新料 |
125,000円 |
鍵交換費用 |
16,500円 |
室内清掃費用 |
- |
駐車場料金 |
空無し |
損保・ |
借家賠付きの火災保険にご加入いただきます。 |
保証会社 |
加入要 保証会社:エルズサポート 保証会社利用料:初回保証料:月額総賃料45% 25000円/2年毎 |
契約期間 |
2年 |
入居可能日 |
即入居可 |
フリーレント期間 |
- |
取引形態 |
一般媒介 |
備考 |
保証会社利用必須 初回保証料:月額総賃料45% |
ウエストパークヒルズ 102号室の建物情報
建物名称 |
ウエストパークヒルズ |
|---|---|
最寄駅 |
|
所在地 |
神奈川県横浜市青葉区荏田西 |
階層 |
1階部分(地上3階建) |
構造 |
RC |
築年数 |
1996年3月(築30年) |
駐車場 |
空無し |
小学校学区 |
荏田西小学校 |
中学校学区 |
市ケ尾中学校 |
- 学区データについて
- ※学区データは必ずしも正確とは限りません。詳細に関しては最寄店舗または各自治体の教育委員会に必ずご確認ください。
無料この物件に問い合わせ
- ウエストパークヒルズ 102号室

-
12.5万円
(共益費
7,000円)
- 敷
- -
- 礼
- -
- 保
- -
- 償
- -
ウエストパークヒルズ 102号室の物件のお問い合わせ先・取り扱い店舗
ハウスコム 鷺沼店
- アクセス
-
東急田園都市線「鷺沼駅」徒歩2分
- 住所
- 〒216-0004 神奈川県川崎市宮前区鷺沼3丁目1−26 増美屋ビル 1階
- 営業時間
- 10:00~18:00
- 定休日
- なし
- 営業エリア
- 川崎市宮前区,川崎市高津区,横浜市緑区,横浜市都筑区,横浜市青葉区
- 取引態様
- 賃貸仲介業





















